Maison neuve, 152 m² - Val d'Erdre-Auxence (49370)

365 500 €
Val d'Erdre-Auxence (49370)

Proposée par MAISONS BERNARD JAMBERT – 5 pièces - 4 chambres - terrain 358 m²

MAISONS BERNARD JAMBERT
MAISONS BERNARD JAMBERT
  • Demande d'information
MAISON À CONSTRUIRE : ceci est une annonce d'une maison neuve à construire.
Maison de 5 pièces (152 m²) à vendre à Villemoisan
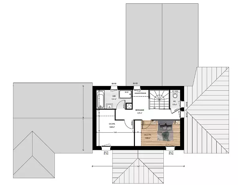
Idéalement située - Maison neuve 5 pièces en vente à Villemoisan (49370) avec 2 niveaux, une surface de 152 m² et de 358 m² de terrain. Son intérieur se divise en quatre chambres, une cuisine et deux salles de bains.
Proche gares (Champtocé-sur-Loire et Ingrandes-Le Fresne-sur-Loire), École Primaire Publique les Tilleuls, bassin de natation et bibliothèque. Autoroute A11 à 7 km. Angers à 25 km,
Le prix de vente de cette maison de 5 pièces est de 365 500 €.
. Donnez vie à vos projets immobiliers avec Maisons Bernard Jambert Angers.
Référence : MJ2342934_4
Terrain proposé par un partenaire foncier selon disponibilités et autorisation de publicité au prix de 54 800 €. Hors droit d'enregistrement et frais de notaire. Maison proposée, avec un contrat de construction de maison individuelle, dans le cadre de la loi du 19/12/1990, au prix de 310 700 € (Hors branchements et raccordements, papiers peints, peintures, revêtement de sol dans les chambres, qui sont chiffrés dans les travaux qui restent à charge du client. Tarif modifiable sans préavis). Étiquette énergie : A. Différents modèles disponibles pour ce terrain. Assurances et garanties du constructeur comprises (RC professionnelle, décennale, dommage ouvrage).

Les informations sur les risques auxquels ce bien est exposé sont disponibles sur le site Géorisques : www.georisques.gouv.fr


Prix
  • Prix total : 365 500 €
  • Prix du modèle de maison : 310 700 €
  • Prix du terrain : 54 800 €

Terrain
  • Surface : 358 m²

Maison
  • Surface : 152 m²
  • Pièces : 5
  • Chambres : 4
  • Garage : 1

  • Être rappelé par un conseiller
  • Demander plus d’infos
  • Demande d'information
Val d'Erdre-Auxence (49370)

Programmes à proximité

Les Confluences
Les Confluences
Chalonnes-sur-Loire (49290)

Appartements de 2 à 5 pièces
Livraison 4ème trimestre 2026

KENNEDY
KENNEDY
Avrillé (49240)

Appartements de 2 à 5 pièces et maisons de 4 à 5 pièces
Livraison 4ème trimestre 2026

Le Domaine des Tilleuls
Le Domaine des Tilleuls
Avrillé (49240)

Appartements de 2 à 4 pièces
Livraison 1er trimestre 2027

Le Floréa
Le Floréa
Avrillé (49240)

Appartements de 2 à 4 pièces
Livraison 4ème trimestre 2026

L'Ecrin
L'Ecrin
Bouchemaine (49080)

Appartements de 4 pièces
Livraison 4ème trimestre 2025

Studio 142
Studio 142
Angers (49000)

Appartements de 1 pièce
Livraison 3ème trimestre 2027

Contacter MAISONS BERNARD JAMBERT pour recevoir plus d'informations

Remplissez le formulaire ci-dessous, vos informations sont transmises directement au constructeur qui vous contactera par email ou par téléphone afin de traiter votre demande. En savoir plus.

Voir tous nos programmes immobiliers neufs à Val d'Erdre-Auxence