Maison neuve, 64 m² - Saint-Laurent-en-Gâtines (37380)

178 080 €
Saint-Laurent-en-Gâtines (37380)

Proposée par CONSTRUCTIONS IDEALE DEMEURE – 4 pièces - 2 chambres - terrain 466 m²

CONSTRUCTIONS IDEALE DEMEURE
CONSTRUCTIONS IDEALE DEMEURE
  • Demande d'information
MAISON À CONSTRUIRE : ceci est une annonce d'une maison neuve à construire.
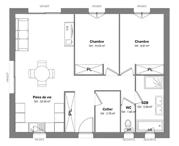
Venez faire construire cette belle maison de 64 m² offrant un espace de vie très lumineux grâce à une triple exposition.
Elle comprend deux belles chambres avec placards intégrés pour un rangement optimisé.
La salle de bains, spacieuse, peut accueillir à la fois une douche, une baignoire et une double vasque pour un confort maximal.
Je reste disponible pour toutes demandes de renseignements, n'hésitez pas me contacter : Stéphane Digneton : O6.64.92.89.69.
Référence : SD2319544_5
Terrain proposé par un partenaire foncier selon disponibilités et autorisation de publicité au prix de 56 480 €. Hors droit d'enregistrement et frais de notaire. Terrain + Maison proposés au prix de 121 600 € (Hors branchements et raccordements, papiers peints, peintures, revêtement de sol dans les chambres. Tarif modifiable sans préavis). Etiquette énergie : A. Différents modèles disponibles pour ce terrain. Assurances et garanties du constructeur (RC professionnelle, décennale, dommage ouvrage, garantie de remboursement de l'acompte, livraison à prix et délai convenu) : https://www.constructions-ideale-demeure.fr/mentions-legales/.

Les informations sur les risques auxquels ce bien est exposé sont disponibles sur le site Géorisques : www.georisques.gouv.fr


Prix
  • Prix total : 178 080 €
  • Prix du modèle de maison : 121 600 €
  • Prix du terrain : 56 480 €

Terrain
  • Surface : 466 m²

Maison
  • Surface : 64 m²
  • Pièces : 4
  • Chambres : 2
  • Garage : 1

  • Être rappelé par un conseiller
  • Demander plus d’infos
  • Demande d'information
Saint-Laurent-en-Gâtines (37380)

Programmes à proximité

PROCHAINEMENT A METTRAY
PROCHAINEMENT A METTRAY
Mettray (37390)

Appartements de 2 à 4 pièces
Livraison 4ème trimestre 2027

CARRE DES HALLES
CARRE DES HALLES
Vouvray (37210)

Appartements de 1 à 4 pièces
Livraison 3ème trimestre 2027

LOUISE DE BOURBON
LOUISE DE BOURBON
La Ville-aux-Dames (37700)

Appartements de 3 pièces
Livraison 2ème trimestre 2026

LES JARDINS DU LUXEMBOURG
LES JARDINS DU LUXEMBOURG
Tours (37100)

Appartements de 2 à 4 pièces
Livraison 4ème trimestre 2028

URBAN LODGES
URBAN LODGES
Tours (37100)

Appartements de 2 à 3 pièces
Livraison 4ème trimestre 2026

L'ECRIVAIN
L'ECRIVAIN
Tours (37100)

Appartements de 2 à 3 pièces
Livraison 1er trimestre 2027

Contacter CONSTRUCTIONS IDEALE DEMEURE pour recevoir plus d'informations

Remplissez le formulaire ci-dessous, vos informations sont transmises directement au constructeur qui vous contactera par email ou par téléphone afin de traiter votre demande. En savoir plus.

Voir tous nos programmes immobiliers neufs à Saint-Laurent-en-Gâtines