Maison neuve, 80 m² - Saint-Laurent-en-Gâtines (37380)

230 000 €
Saint-Laurent-en-Gâtines (37380)

Proposée par MAISONS FRANCE CONFORT – 4 pièces - 3 chambres - terrain 600 m²

MAISONS FRANCE CONFORT
MAISONS FRANCE CONFORT
  • Demande d'information
MAISON À CONSTRUIRE : ceci est une annonce d'une maison neuve à construire.
Saint-Laurent-en-Gâtines : maison de 4 pièces (80 m²) à vendre
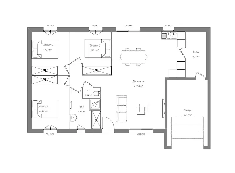
Proche de Tours - À Saint-Laurent-en-Gâtines (37380), maison neuve en vente de 4 pièces, 80 m² sur 600 m² de terrain. Elle dispose de trois chambres, d'une cuisine et d'une salle de bains.
À proximité : gares (Château-Renault et Monnaie), écoles, tennis et supérette. Autoroutes A10 et A28 accessibles à 14 km.
Le prix de vente de cette maison de 4 pièces est de 230 000 €.
Prenez contact avec Maxime TERNIER (°6 63 77 59 71) pour obtenir de plus amples renseignements sur la maison, sur les modalités de vente ou sur les démarches à suivre. Maisons France Confort Saint-Avertin vous accompagne dans tous vos projets immobiliers et à toutes les étapes de votre projet.
Référence : MT2380993_1
Terrain proposé par un partenaire foncier selon disponibilités et autorisation de publicité au prix de 64 000 €. Hors droit d'enregistrement et frais de notaire. Terrain + Maison proposés au prix de 230 000 € (Hors branchements et raccordements, papiers peints, peintures, revêtement de sol dans les chambres. Tarif modifiable sans préavis). Etiquette énergie : A. Différents modèles disponibles pour ce terrain. Assurances et garanties du constructeur (RC professionnelle, décennale, dommage ouvrage, garantie de remboursement de l'acompte, livraison à prix et délai convenu) : HEXAOM Services est enregistré auprès de l'ORIAS en tant que Courtier en financement, Niveau 1, sous le numéro 14001345.

Les informations sur les risques auxquels ce bien est exposé sont disponibles sur le site Géorisques : www.georisques.gouv.fr


Prix
  • Prix total : 230 000 €
  • Prix du modèle de maison : 166 000 €
  • Prix du terrain : 64 000 €

Terrain
  • Surface : 600 m²

Maison
  • Surface : 80 m²
  • Pièces : 4
  • Chambres : 3
  • Garage : 1

  • Être rappelé par un conseiller
  • Demander plus d’infos
  • Demande d'information
Saint-Laurent-en-Gâtines (37380)

Programmes à proximité

CARRE DES HALLES
CARRE DES HALLES
Vouvray (37210)

Appartements de 1 à 4 pièces
Livraison 4ème trimestre 2027

LOUISE DE BOURBON
LOUISE DE BOURBON
La Ville-aux-Dames (37700)

Appartements de 3 pièces
Livraison 2ème trimestre 2026

LES JARDINS DU LUXEMBOURG
LES JARDINS DU LUXEMBOURG
Tours (37100)

Appartements de 2 à 4 pièces
Livraison 4ème trimestre 2028

URBAN LODGES
URBAN LODGES
Tours (37100)

Appartements de 2 à 3 pièces
Livraison 4ème trimestre 2026

L'ECRIVAIN
L'ECRIVAIN
Tours (37100)

Appartements de 2 à 3 pièces
Livraison 1er trimestre 2027

TARGA
TARGA
Tours (37100)

Appartements de 2 à 4 pièces
Livraison 4ème trimestre 2026

Contacter MAISONS FRANCE CONFORT pour recevoir plus d'informations

Remplissez le formulaire ci-dessous, vos informations sont transmises directement au constructeur qui vous contactera par email ou par téléphone afin de traiter votre demande. En savoir plus.

Voir tous nos programmes immobiliers neufs à Saint-Laurent-en-Gâtines