Maison neuve, 90 m² - Saint-Hilaire-de-Riez (85270)
Proposée par LMP CONSTRUCTEUR – 4 pièces - 3 chambres - terrain 603 m²
|
|
| LMP CONSTRUCTEUR |
| (66 avis) |
- Demande d'information
- Prendre rendez-vous
VENTE d'une maison de 4 pièces (90 m²) à Saint-Hilaire-de-Riez
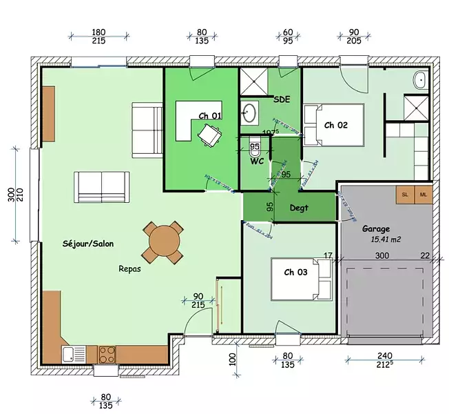
Idéalement située - À Saint-Hilaire-de-Riez (85270), maison neuve en vente de 4 pièces, 90 m² et 603 m² de terrain. Conçue de plain-pied, elle compte trois chambres, une cuisine et une salle de bains.
Proche gare (Saint-Hilaire-de-Riez), écoles, boulangeries, commerces, bureau de poste, épicerie et poissonnerie. Océan Atlantique à 5 km.
Cette maison de 4 pièces est à vendre pour la somme de 279 900 €.
. Faites de vos projets immobiliers une réalité avec LMP Constructeur Saint-Gilles-Croix-de-Vie.
*****SECTEUR DU PISSOT*******
Référence : NR2310879_4
Terrain proposé par un partenaire foncier selon disponibilités et autorisation de publicité au prix de 82 900 €. Hors droit d'enregistrement et frais de notaire. Maison proposée, avec un contrat de construction de maison individuelle, dans le cadre de la loi du 19/12/1990, au prix de 197 000 € (Hors branchements et raccordements, papiers peints, peintures, revêtement de sol dans les chambres, qui sont chiffrés dans les travaux qui restent à charge du client. Tarif modifiable sans préavis). Étiquette énergie : A. Différents modèles disponibles pour ce terrain. Assurances et garanties du constructeur comprises (RC professionnelle, décennale, dommage ouvrage).
Les informations sur les risques auxquels ce bien est exposé sont disponibles sur le site Géorisques : www.georisques.gouv.fr
- Prix
-
- Prix total : 279 900 €
- Prix du modèle de maison : 197 000 €
- Prix du terrain : 82 900 €
- Terrain
-
- Surface : 603 m²
- Maison
-
- Surface : 90 m²
- Pièces : 4
- Chambres : 3
- Garage : 1
- Être rappelé par un conseiller
- Demander plus d’infos
- Demande d'information
Maisons à proximité
Saint-Hilaire-de-Riez (85270)
Maisons de 3 à 5 pièces
Livraison 4ème trimestre 2025
Saint-Hilaire-de-Riez (85270)
Maison de 4 pièces
Saint-Hilaire-de-Riez (85270)
Maison de 4 pièces
Saint-Hilaire-de-Riez (85270)
Maison de 5 pièces
Saint-Hilaire-de-Riez (85270)
Maison de 3 pièces
Saint-Hilaire-de-Riez (85270)
Maison de 4 pièces
Programmes à proximité
Saint-Hilaire-de-Riez (85270)
Appartements de 2 à 3 pièces
Livraison 3ème trimestre 2027
Saint-Gilles-Croix-de-Vie (85800)
Appartements de 2 à 3 pièces
Livraison 1er trimestre 2027
Saint-Gilles-Croix-de-Vie (85800)
Appartements de 2 à 4 pièces
Livraison 4ème trimestre 2026
Le Fenouiller (85800)
Appartements de 1 à 4 pièces
Livraison 3ème trimestre 2028
Saint-Jean-de-Monts (85160)
Appartements de 1 à 4 pièces
Livraison 2ème trimestre 2028
Saint-Jean-de-Monts (85160)
Appartements de 2 à 4 pièces
Remplissez le formulaire ci-dessous, vos informations sont transmises directement au constructeur qui vous contactera par email ou par téléphone afin de traiter votre demande. En savoir plus.
Voir tous nos programmes immobiliers neufs à Saint-Hilaire-de-Riez