Maison neuve, 101 m² - Rouziers-de-Touraine (37360)

258 000 €
Rouziers-de-Touraine (37360)

Proposée par CONSTRUCTIONS IDEALE DEMEURE – 6 pièces - 4 chambres - terrain 1 249 m²

CONSTRUCTIONS IDEALE DEMEURE
CONSTRUCTIONS IDEALE DEMEURE
  • Demande d'information
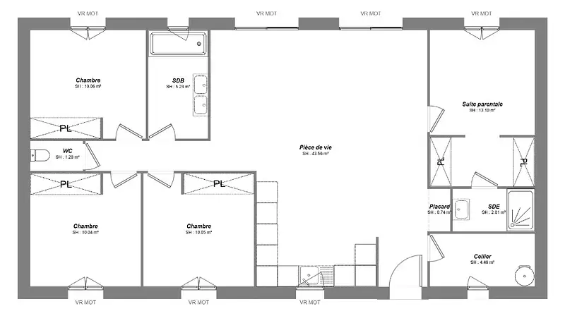
MAISON À CONSTRUIRE : ceci est une annonce d'une maison neuve à construire.
Voici une belle maison à construire de 101m², comprenant quatre chambres dont une suite parentale. Elle dispose de deux salles de bain pour plus de confort. La grande pièce de vie de plus de 40m² est lumineuse grâce à ses deux baies vitrées. Cette maison allie espace et fonctionnalité pour toute la famille.
Je reste disponible pour toutes demandes de renseignements, n'hésitez pas me contacter : Stéphane Digneton : O6.64.92.89.69.
Référence : SD2394266_3
Terrain proposé par un partenaire foncier selon disponibilités et autorisation de publicité au prix de 106 000 €. Hors droit d'enregistrement et frais de notaire. Terrain + Maison proposés au prix de 152 000 € (Hors branchements et raccordements, papiers peints, peintures, revêtement de sol dans les chambres. Tarif modifiable sans préavis). Etiquette énergie : A. Différents modèles disponibles pour ce terrain. Assurances et garanties du constructeur (RC professionnelle, décennale, dommage ouvrage, garantie de remboursement de l'acompte, livraison à prix et délai convenu) : https://www.constructions-ideale-demeure.fr/mentions-legales/.

Les informations sur les risques auxquels ce bien est exposé sont disponibles sur le site Géorisques : www.georisques.gouv.fr


Prix
  • Prix total : 258 000 €
  • Prix du modèle de maison : 152 000 €
  • Prix du terrain : 106 000 €

Terrain
  • Surface : 1 249 m²

Maison
  • Surface : 101 m²
  • Pièces : 6
  • Chambres : 4

  • Être rappelé par un conseiller
  • Demander plus d’infos
  • Demande d'information
Rouziers-de-Touraine (37360)

Programmes à proximité

PROCHAINEMENT A METTRAY
PROCHAINEMENT A METTRAY
Mettray (37390)

Appartements de 2 à 4 pièces
Livraison 4ème trimestre 2027

LE DOMAINE DES LYS
LE DOMAINE DES LYS
Saint-Cyr-sur-Loire (37540)

Appartements de 1 à 4 pièces
Livraison 4ème trimestre 2027

La Saint-Cyrienne
La Saint-Cyrienne
Saint-Cyr-sur-Loire (37540)

Appartements de 2 à 4 pièces
Livraison 4ème trimestre 2026

Les Jardins de Musset
Les Jardins de Musset
Fondettes (37230)

Appartements de 2 à 5 pièces
Livraison 2ème trimestre 2026

LES JARDINS DU LUXEMBOURG
LES JARDINS DU LUXEMBOURG
Tours (37100)

Appartements de 2 à 4 pièces
Livraison 4ème trimestre 2028

URBAN LODGES
URBAN LODGES
Tours (37100)

Appartements de 2 à 3 pièces
Livraison 4ème trimestre 2026

Contacter CONSTRUCTIONS IDEALE DEMEURE pour recevoir plus d'informations

Remplissez le formulaire ci-dessous, vos informations sont transmises directement au constructeur qui vous contactera par email ou par téléphone afin de traiter votre demande. En savoir plus.

Voir tous nos programmes immobiliers neufs à Rouziers-de-Touraine