Maison neuve, 100 m² - Narbonne (11100)

336 000 €
Narbonne (11100)

Proposée par MAISONS FRANCE CONFORT – 5 pièces - 3 chambres - terrain 324 m²

MAISONS FRANCE CONFORT
MAISONS FRANCE CONFORT
(46 avis)
  • Demande d'information
MAISON À CONSTRUIRE : ceci est une annonce d'une maison neuve à construire.
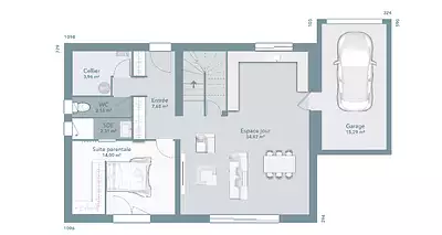
Narbonne : maison T5 (100 m²) en vente
Idéalement située - Maison neuve 5 pièces à vendre à Narbonne (11100) avec 2 niveaux, une surface de 100 m² sur un terrain de 324 m². Son intérieur comporte trois chambres, une cuisine et deux salles de bains.
Proche gare (Narbonne), établissements scolaires, crèche, bassin de natation, boulangeries, commerces, supermarchés, poissonneries et épiceries. Marché Cours et promenade le dimanche matin. Accès autoroute A9 à 3 km. Mer Méditerranée à 15 km.
Cette maison de 5 pièces est proposée à l'achat pour 336 000 €.
.
Référence : JE2348368_5
Terrain proposé par un partenaire foncier selon disponibilités et autorisation de publicité au prix de 114 900 €. Hors droit d'enregistrement et frais de notaire. Maison proposée, avec un contrat de construction de maison individuelle, dans le cadre de la loi du 19/12/1990, au prix de 221 100 € (Hors branchements et raccordements, papiers peints, peintures, revêtement de sol dans les chambres, qui sont chiffrés dans les travaux qui restent à charge du client. Tarif modifiable sans préavis). Étiquette énergie : A. Différents modèles disponibles pour ce terrain. Assurances et garanties du constructeur comprises (RC professionnelle, décennale, dommage ouvrage).

Les informations sur les risques auxquels ce bien est exposé sont disponibles sur le site Géorisques : www.georisques.gouv.fr


Prix
  • Prix total : 336 000 €
  • Prix du modèle de maison : 221 100 €
  • Prix du terrain : 114 900 €

Terrain
  • Surface : 324 m²

Maison
  • Surface : 100 m²
  • Pièces : 5
  • Chambres : 3
  • Garage : 1

  • Être rappelé par un conseiller
  • Demander plus d’infos
  • Demande d'information
Narbonne (11100)

Programmes à proximité

VILLA CONSTANCE
VILLA CONSTANCE
Narbonne (11100)

Appartements de 2 à 3 pièces
Livraison 4ème trimestre 2026

Arborea
Arborea
Sauvian (34410)

Appartement de 3 pièces
Livraison 3ème trimestre 2024

SERENE
SERENE
Sauvian (34410)

Appartements de 2 à 3 pièces
Livraison 3ème trimestre 2027

Naturea
Naturea
Sauvian (34410)

Appartements de 3 pièces et maisons de 3 à 4 pièces
Livraison 4ème trimestre 2025

AZUREA
AZUREA
Valras-Plage (34350)

Appartements de 2 à 4 pièces
Livraison 3ème trimestre 2027

Les Embruns
Les Embruns
Valras-Plage (34350)

Appartements de 1 à 3 pièces
Livraison 4ème trimestre 2027

Contacter MAISONS FRANCE CONFORT pour recevoir plus d'informations

Remplissez le formulaire ci-dessous, vos informations sont transmises directement au constructeur qui vous contactera par email ou par téléphone afin de traiter votre demande. En savoir plus.

Voir tous nos programmes immobiliers neufs à Narbonne