Maison neuve, 88 m² - Mouilleron-le-Captif (85000)

235 100 €
Mouilleron-le-Captif (85000)

Proposée par MAISONS NATUREA LA ROCHE SUR YON – 5 pièces - 3 chambres - terrain 462 m²

Maisons Naturea La Roche sur Yon
Maisons Naturea La Roche sur Yon
  • Demande d'information
MAISON À CONSTRUIRE : ceci est une annonce d'une maison neuve à construire.
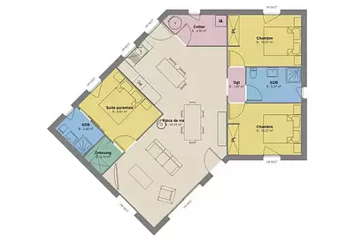
TERRAIN À BÂTIR – 462 m² à Mouilleron-le-Captif (85) Exclusivité - Emplacement idéal en Vendée ! À seulement quelques minutes de La Roche-sur-Yon, dans la dynamique commune de Mouilleron-le-Captif, découvrez ce beau terrain viabilisé de 462 m², prêt à accueillir votre future maison. ?? Les atouts du terrain : Parcelle bien exposée et facilement aménageable Située dans un environnement résidentiel calme et recherché À proximité immédiate des écoles, commerces, services, et accès routiers ?? Idéal pour une maison familiale ou un projet de plain-pied, ce terrain offre de nombreuses possibilités de construction. ?? Possibilité d’accompagnement pour votre projet de construction personnalisé en ossature bois, moderne et économe en énergie. ?? NOUVEAUTÉ – Maison contemporaine en ossature bois à construire Surface : 88 m² | Architecture originale en V | 3 chambres + suite parentale Laissez-vous séduire par cette maison à l’architecture moderne et audacieuse en forme de V, pensée pour allier confort, luminosité et fonctionnalité. ?? Espace de vie Dès l’entrée, découvrez une pièce de vie spacieuse de 41 m² avec une cuisine ouverte parfaitement intégrée. Trois zones distinctes structurent cet espace : coin salon, salle à manger, et cuisine, pour un quotidien fluide et convivial. Un cellier de 4,5 m² vient compléter cette zone, idéal pour le rangement et la buanderie. ?? Espace nuit Côté intimité, la maison propose deux zones séparées : • Une suite parentale avec dressing et salle d’eau privative, • Deux grandes chambres avec placards intégrés, • Une salle de bain familiale équipée d’une douche, meuble vasque et WC. ?? Confort et performance Chauffage économique et écologique grâce à un poêle à granulés, et production d’eau chaude assurée par un ballon thermodynamique. ? Conception éco-responsable, matériaux de qualité, et finitions soignées. Projet personnalisable selon vos envies ! ?? Contactez Maisons Naturéa dès aujourd’hui pour plus d’informations et donner vie à votre fut
Référence : VT-LA -2500059

Les informations sur les risques auxquels ce bien est exposé sont disponibles sur le site Géorisques : www.georisques.gouv.fr


Prix
  • Prix total : 235 100 €
  • Prix du modèle de maison : N.C.
  • Prix du terrain : N.C.

Terrain
  • Surface : 462 m²

Maison
  • Surface : 88 m²
  • Pièces : 5
  • Chambres : 3

  • Être rappelé par un conseiller
  • Demander plus d’infos
  • Demande d'information
Mouilleron-le-Captif (85000)

Programmes à proximité

143 ZOLA
143 ZOLA
La Roche-sur-Yon (85000)

Appartements de 1 à 3 pièces
Livraison 4ème trimestre 2027

LES JARDINS DE LA BROSSARDIERE
LES JARDINS DE LA BROSSARDIERE
La Roche-sur-Yon (85000)

Appartements de 2 à 3 pièces et terrains
Livraison 2ème trimestre 2027

Le Parc de l'Etang
Le Parc de l'Etang
La Roche-sur-Yon (85000)

Appartements de 2 à 3 pièces
Livraison 1er trimestre 2027

Yonora
Yonora
La Roche-sur-Yon (85000)

Appartements de 2 à 5 pièces
Livraison 4ème trimestre 2027

OPPORTUNEO PARC
OPPORTUNEO PARC
La Roche-sur-Yon (85000)

Appartements de 1 à 4 pièces
Livraison 4ème trimestre 2027

Domaine de l'Yon
Domaine de l'Yon
La Roche-sur-Yon (85000)

Appartements de 2 à 3 pièces
Livraison 4ème trimestre 2027

Contacter MAISONS NATUREA LA ROCHE SUR YON pour recevoir plus d'informations

Remplissez le formulaire ci-dessous, vos informations sont transmises directement au constructeur qui vous contactera par email ou par téléphone afin de traiter votre demande. En savoir plus.

Voir tous nos programmes immobiliers neufs à Mouilleron-le-Captif