Maison neuve, 75 m² - Mettray (37390)
212 827 €
Mettray (37390)
Proposée par PRIMEA – 3 pièces - 2 chambres - terrain 407 m²
|
|
| PRIMEA |
| (1876 avis) |
- Demande d'information
- Prendre rendez-vous
MAISON À CONSTRUIRE : ceci est une annonce d'une maison neuve à construire.
Mettray – 100 000 € – 407 m² – ViabiliséTerrain de 407 m², situé dans un secteur recherché à proximité de Tours Nord et des commodités.
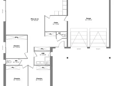
Idéale pour une première acquisition, charmante maison de plain-pied d’une surface habitable de 75 m² composée d’un espace de vie avec cuisine ouverte de 40 m² environ, un accès cellier et garage, une salle de bains avec baignoire, un wc séparé et deux chambres avec placards. Pour vous assurer un confort de vie et conformément à la RE2025, nous avons choisi un mode de chauffage par PAC + plancher chauffant, volets roulants électriques. Prix hors fourniture et pose : des appareils sanitaires (sauf système de chauffage et d'eau chaude sanitaire), du carrelage et de la faïence, des revêtements de sol dans les chambres. Hors décoration et aménagement intérieur et peinture. Hors raccordements, frais de notaire et dommage ouvrage.
// Réf. : 1457-214275-MGA. Prix terrain : 100 000 €, hors frais d'agence à la charge de l'acquéreur. Ce terrain vous est proposé, par nos partenaires fonciers, dans le cadre d'un projet de construction avec nous. Les informations sur les risques auxquels ce bien est exposé sont disponibles sur le site Géorisques (www.georisques.gouv.fr). Prix maison : 112 827 €.
Idéale pour une première acquisition, charmante maison de plain-pied d’une surface habitable de 75 m² composée d’un espace de vie avec cuisine ouverte de 40 m² environ, un accès cellier et garage, une salle de bains avec baignoire, un wc séparé et deux chambres avec placards. Pour vous assurer un confort de vie et conformément à la RE2025, nous avons choisi un mode de chauffage par PAC + plancher chauffant, volets roulants électriques. Prix hors fourniture et pose : des appareils sanitaires (sauf système de chauffage et d'eau chaude sanitaire), du carrelage et de la faïence, des revêtements de sol dans les chambres. Hors décoration et aménagement intérieur et peinture. Hors raccordements, frais de notaire et dommage ouvrage.
// Réf. : 1457-214275-MGA. Prix terrain : 100 000 €, hors frais d'agence à la charge de l'acquéreur. Ce terrain vous est proposé, par nos partenaires fonciers, dans le cadre d'un projet de construction avec nous. Les informations sur les risques auxquels ce bien est exposé sont disponibles sur le site Géorisques (www.georisques.gouv.fr). Prix maison : 112 827 €.
- Prix
-
- Prix total : 212 827 €
- Prix du modèle de maison : 112 827 €
- Prix du terrain : 100 000 €
- Terrain
-
- Surface : 407 m²
- Maison
-
- Surface : 75 m²
- Pièces : 3
- Chambres : 2
- Être rappelé par un conseiller
- Demander plus d’infos
- Demande d'information
Mettray (37390)
Maisons à proximité
Maison neuve, 76 m²
Mettray (37390)
Mettray (37390)
Maison de 4 pièces
Maison neuve, 69 m²
Mettray (37390)
Mettray (37390)
Maison de 3 pièces
Maison neuve, 203 m²
Mettray (37390)
Mettray (37390)
Maison de 6 pièces
Maison neuve, 80 m²
Mettray (37390)
Mettray (37390)
Maison de 4 pièces
Maison neuve, 80 m²
Mettray (37390)
Mettray (37390)
Maison de 4 pièces
Maison neuve, 150 m²
Mettray (37390)
Mettray (37390)
Maison de 6 pièces
Programmes à proximité
LE DOMAINE DES LYS
Saint-Cyr-sur-Loire (37540)
Saint-Cyr-sur-Loire (37540)
Appartements de 1 à 4 pièces
Livraison 4ème trimestre 2027
La Saint-Cyrienne
Saint-Cyr-sur-Loire (37540)
Saint-Cyr-sur-Loire (37540)
Appartements de 2 à 4 pièces
Livraison 4ème trimestre 2026
Les Jardins de Musset
Fondettes (37230)
Fondettes (37230)
Appartements de 2 à 5 pièces
Livraison 2ème trimestre 2026
LES JARDINS DU LUXEMBOURG
Tours (37100)
Tours (37100)
Appartements de 2 à 4 pièces
Livraison 4ème trimestre 2028
URBAN LODGES
Tours (37100)
Tours (37100)
Appartements de 2 à 3 pièces
Livraison 4ème trimestre 2026
Prochainement
Tours (37100)
Tours (37100)
Appartement
Contacter PRIMEA pour recevoir plus d'informations
Remplissez le formulaire ci-dessous, vos informations sont transmises directement au constructeur qui vous contactera par email ou par téléphone afin de traiter votre demande. En savoir plus.