Maison neuve, 90 m² - Mettray (37390)

278 000 €
Mettray (37390)

Proposée par CONSTRUCTIONS IDEALE DEMEURE – 4 pièces - 3 chambres - terrain 362 m²

CONSTRUCTIONS IDEALE DEMEURE
CONSTRUCTIONS IDEALE DEMEURE
  • Demande d'information
MAISON À CONSTRUIRE : ceci est une annonce d'une maison neuve à construire.
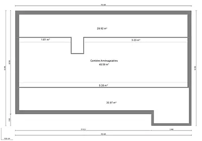
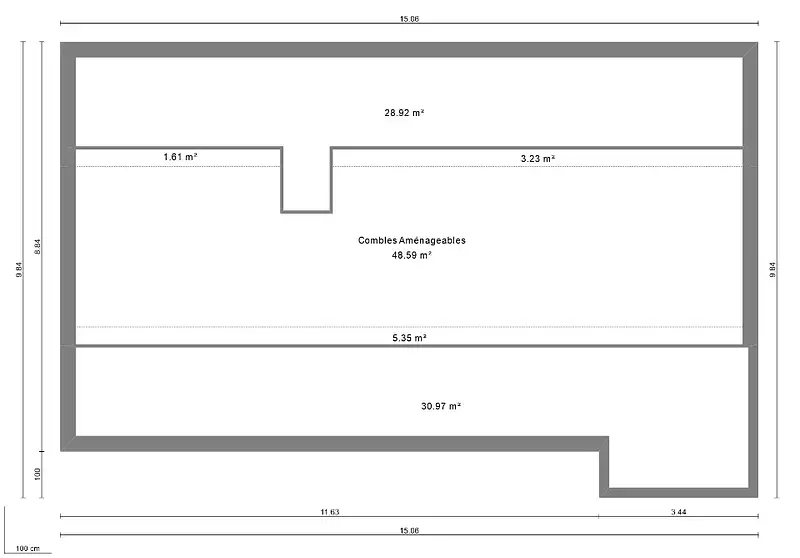
Belle maison de plain-pied de 100 m², combles aménageables, belle pièce à vivre de plus de 45 m², une suite parentale avec salle d'eau et dressing et deuc chambres avec placard, un cellier et un grand garage.
CONSTRUCTIONS IDEALE DEMEURE a sélectionné avec un partenaire foncier un terrain pour construire cette maison.
Je reste disponible pour toutes demandes de renseignements, n'hésitez pas me contacter : Stéphane Digneton : °6.64.92.89.69.
Référence : SD2266309_2
Terrain proposé par un partenaire foncier selon disponibilités et autorisation de publicité au prix de 88 000 €. Hors droit d'enregistrement et frais de notaire. Maison proposée, avec un contrat de construction de maison individuelle, dans le cadre de la loi du 19/12/1990, au prix de 190 000 € (Hors branchements et raccordements, papiers peints, peintures, revêtement de sol dans les chambres, qui sont chiffrés dans les travaux qui restent à charge du client. Tarif modifiable sans préavis). Étiquette énergie : A. Différents modèles disponibles pour ce terrain. Assurances et garanties du constructeur comprises (RC professionnelle, décennale, dommage ouvrage).

Les informations sur les risques auxquels ce bien est exposé sont disponibles sur le site Géorisques : www.georisques.gouv.fr


Prix
  • Prix total : 278 000 €
  • Prix du modèle de maison : 190 000 €
  • Prix du terrain : 88 000 €

Terrain
  • Surface : 362 m²

Maison
  • Surface : 90 m²
  • Pièces : 4
  • Chambres : 3
  • Garage : 1

  • Être rappelé par un conseiller
  • Demander plus d’infos
  • Demande d'information
Mettray (37390)

Programmes à proximité

LE DOMAINE DES LYS
LE DOMAINE DES LYS
Saint-Cyr-sur-Loire (37540)

Appartements de 1 à 4 pièces
Livraison 4ème trimestre 2027

La Saint-Cyrienne
La Saint-Cyrienne
Saint-Cyr-sur-Loire (37540)

Appartements de 2 à 4 pièces
Livraison 4ème trimestre 2026

Les Jardins de Musset
Les Jardins de Musset
Fondettes (37230)

Appartements de 3 à 5 pièces
Livraison 2ème trimestre 2026

AD'AILE - TOURS
AD'AILE - TOURS
Tours (37100)

Appartement de 3 pièces
Livraison 4ème trimestre 2027

URBAN LODGES
URBAN LODGES
Tours (37100)

Appartements de 2 à 3 pièces
Livraison 4ème trimestre 2026

LES JARDINS DU LUXEMBOURG
LES JARDINS DU LUXEMBOURG
Tours (37100)

Appartements de 2 à 4 pièces
Livraison 3ème trimestre 2027

Contacter CONSTRUCTIONS IDEALE DEMEURE pour recevoir plus d'informations

Remplissez le formulaire ci-dessous, vos informations sont transmises directement au constructeur qui vous contactera par email ou par téléphone afin de traiter votre demande. En savoir plus.

Voir tous nos programmes immobiliers neufs à Mettray