Maison neuve, 117 m² - La Membrolle-sur-Longuenée (49770)

321 900 €
La Membrolle-sur-Longuenée (49770)

Proposée par MAISONS BERNARD JAMBERT – 5 pièces - 3 chambres - terrain 455 m²

MAISONS BERNARD JAMBERT
MAISONS BERNARD JAMBERT
  • Demande d'information
MAISON À CONSTRUIRE : ceci est une annonce d'une maison neuve à construire.
La Membrolle-sur-Longuenée : maison T5 (117 m²) à vendre
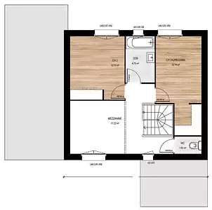
En centre-ville - À La Membrolle-sur-Longuenée (49770), maison neuve en vente de 5 pièces, 2 niveaux, 117 m² et 455 m² de terrain. Son intérieur dispose de trois chambres, d'une cuisine et de deux salles de bains.
À proximité : École Primaire Publique le Petit Prince, boucherie-charcuterie. Autoroute A11 accessible à 6 km. Angers à 12 km.
Cette maison de 5 pièces est à vendre pour la somme de 321 900 €.
Contactez Carole PORCHER (06-88-98-52-77) pour toute question sur la maison ou sur les démarches à suivre.
Référence : CP2326387_3
Terrain proposé par un partenaire foncier selon disponibilités et autorisation de publicité au prix de 81 900 €. Hors droit d'enregistrement et frais de notaire. Terrain + Maison proposés au prix de 240 000 € (Hors branchements et raccordements, papiers peints, peintures, revêtement de sol dans les chambres. Tarif modifiable sans préavis). Etiquette énergie : A. Différents modèles disponibles pour ce terrain. Assurances et garanties du constructeur (RC professionnelle, décennale, dommage ouvrage, garantie de remboursement de l'acompte, livraison à prix et délai convenu) : https://www.maisons-bernard-jambert.com/informations-legales/.

Les informations sur les risques auxquels ce bien est exposé sont disponibles sur le site Géorisques : www.georisques.gouv.fr


Prix
  • Prix total : 321 900 €
  • Prix du modèle de maison : 240 000 €
  • Prix du terrain : 81 900 €

Terrain
  • Surface : 455 m²

Maison
  • Surface : 117 m²
  • Pièces : 5
  • Chambres : 3
  • Garage : 1

  • Être rappelé par un conseiller
  • Demander plus d’infos
  • Demande d'information
La Membrolle-sur-Longuenée (49770)

Programmes à proximité

KENNEDY
KENNEDY
Avrillé (49240)

Appartements de 2 à 5 pièces et maisons de 4 à 5 pièces
Livraison 4ème trimestre 2026

Le Domaine des Tilleuls
Le Domaine des Tilleuls
Avrillé (49240)

Appartements de 2 à 4 pièces
Livraison 1er trimestre 2027

Le Floréa
Le Floréa
Avrillé (49240)

Appartements de 2 à 4 pièces
Livraison 4ème trimestre 2026

SEVEA
SEVEA
Angers (49100)

Appartements de 3 pièces
Livraison 2ème trimestre 2026

EPURE - QUARTIER MONTAIGNE
EPURE - QUARTIER MONTAIGNE
Angers (49100)

Appartements de 1 à 3 pièces
Livraison 4ème trimestre 2028

ARCADIA
ARCADIA
Angers (49100)

Appartements de 2 à 5 pièces
Livraison 4ème trimestre 2027

Contacter MAISONS BERNARD JAMBERT pour recevoir plus d'informations

Remplissez le formulaire ci-dessous, vos informations sont transmises directement au constructeur qui vous contactera par email ou par téléphone afin de traiter votre demande. En savoir plus.

Voir tous nos programmes immobiliers neufs à La Membrolle-sur-Longuenée