Maison neuve, 139 m² - Feneu (49460)

375 400 €
Feneu (49460)

Proposée par MAISONS BERNARD JAMBERT – 6 pièces - 4 chambres - terrain 435 m²

MAISONS BERNARD JAMBERT
MAISONS BERNARD JAMBERT
  • Demande d'information
MAISON À CONSTRUIRE : ceci est une annonce d'une maison neuve à construire.
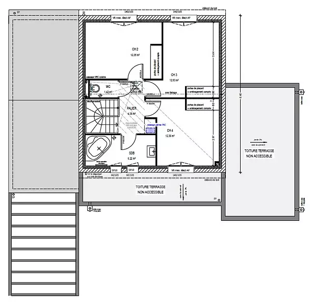
VENTE : maison F6 (139 m²) à Feneu
Proche d'Angers - À vendre à Feneu (49460) : maison neuve 6 pièces de 139 m² et de 435 m² de terrain. Son intérieur propose quatre chambres, une cuisine et deux salles de bains.
À dix minutes : gares (Le Vieux Briollay et Écouflant), écoles, boulangerie, commerce, épicerie et boucherie-charcuterie. Accès autoroute A11 à 9 km.
Le prix de vente de cette maison de 6 pièces est de 375 400 €.
Contactez Roman SALAS (tél : 02-41-77-17-17) pour toute question sur la maison. Maisons Bernard Jambert Angers vous accompagne dans toutes vos démarches et à toutes les étapes de l'achat.
Référence : RS2343072_1
Terrain proposé par un partenaire foncier selon disponibilités et autorisation de publicité au prix de 70 500 €. Hors droit d'enregistrement et frais de notaire. Terrain + Maison proposés au prix de 304 900 € (Hors branchements et raccordements, papiers peints, peintures, revêtement de sol dans les chambres. Tarif modifiable sans préavis). Etiquette énergie : A. Différents modèles disponibles pour ce terrain. Assurances et garanties du constructeur (RC professionnelle, décennale, dommage ouvrage, garantie de remboursement de l'acompte, livraison à prix et délai convenu) : https://www.maisons-bernard-jambert.com/informations-legales/.

Les informations sur les risques auxquels ce bien est exposé sont disponibles sur le site Géorisques : www.georisques.gouv.fr


Prix
  • Prix total : 375 400 €
  • Prix du modèle de maison : 304 900 €
  • Prix du terrain : 70 500 €

Terrain
  • Surface : 435 m²

Maison
  • Surface : 139 m²
  • Pièces : 6
  • Chambres : 4
  • Garage : 1

  • Être rappelé par un conseiller
  • Demander plus d’infos
  • Demande d'information
Feneu (49460)

Programmes à proximité

KENNEDY
KENNEDY
Avrillé (49240)

Appartements de 2 à 5 pièces et maisons de 4 à 5 pièces
Livraison 4ème trimestre 2026

Le Domaine des Tilleuls
Le Domaine des Tilleuls
Avrillé (49240)

Appartements de 2 à 4 pièces
Livraison 1er trimestre 2027

Le Floréa
Le Floréa
Avrillé (49240)

Appartements de 2 à 4 pièces
Livraison 4ème trimestre 2026

LE CLOS SAINT-SYLVAIN
LE CLOS SAINT-SYLVAIN
Saint-Sylvain-d'Anjou (49480)

Appartements de 3 pièces et maison de 4 pièces
Livraison 2ème trimestre 2027

SEVEA
SEVEA
Angers (49100)

Appartements de 3 pièces
Livraison 2ème trimestre 2026

EPURE - QUARTIER MONTAIGNE
EPURE - QUARTIER MONTAIGNE
Angers (49100)

Appartements de 1 à 3 pièces
Livraison 4ème trimestre 2028

Contacter MAISONS BERNARD JAMBERT pour recevoir plus d'informations

Remplissez le formulaire ci-dessous, vos informations sont transmises directement au constructeur qui vous contactera par email ou par téléphone afin de traiter votre demande. En savoir plus.

Voir tous nos programmes immobiliers neufs à Feneu