Maison neuve, 100 m² - Chailly-en-Brie (77120)

288 438 €
Chailly-en-Brie (77120)

Proposée par BABEAU SEGUIN AGENCE DE COULOMMIERS – SEINE ET MAR – 5 pièces - 4 chambres - terrain 449 m²

Babeau Seguin Agence de Coulommiers – Seine et Mar
Babeau Seguin Agence de Coulommiers – Seine et Mar
  • Demande d'information
MAISON À CONSTRUIRE : ceci est une annonce d'une maison neuve à construire.
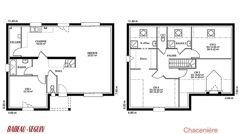
Sur ce terrain, nous vous proposons cette maison neuve : la Chacenière, un modèle de 100 m² conçu par Babeau-Seguin, constructeur reconnu pour offrir le meilleur rapport qualité/prix du marché.
Cette maison en L, à la fois originale et accueillante, dispose de 4 chambres et de 4 pièces, offrant ainsi tout l'espace nécessaire pour une vie familiale confortable. L'étage est composé d'un plancher avec une dalle étage en béton, garantissant robustesse et durabilité. Une charpente traditionnelle et une lucarne maçonnée viennent compléter l'ensemble, ajoutant du charme et du caractère à cette construction.
La Chacenière se distingue par sa cuisine totalement ouverte sur le séjour, créant un espace de vie convivial et lumineux. Le garage intégré est une option très demandée par nos clients, offrant un espace de rangement supplémentaire et une protection pour votre véhicule.
En choisissant cette maison, vous optez pour une construction basse consommation, conforme à la réglementation environnementale RE2020, vous assurant ainsi des économies d'énergie et un confort optimal tout au long de l'année.
Ne manquez pas cette opportunité de faire construire votre maison familiale avec Babeau-Seguin et de profiter d'un habitat moderne, économique et parfaitement adapté à vos besoins.
Référence : 91894

Les informations sur les risques auxquels ce bien est exposé sont disponibles sur le site Géorisques : www.georisques.gouv.fr


Prix
  • Prix total : 288 438 €
  • Prix du modèle de maison : 201 438 €
  • Prix du terrain : 87 000 €

Terrain
  • Surface : 449 m²

Maison
  • Surface : 100 m²
  • Pièces : 5
  • Chambres : 4

  • Être rappelé par un conseiller
  • Demander plus d’infos
  • Demande d'information
Chailly-en-Brie (77120)

Programmes à proximité

Villa Montesquiou
Villa Montesquiou
Coulommiers (77120)

Appartements de 2 à 4 pièces

" La Magny'fiée "
" La Magny'fiée "
Magny-le-Hongre (77700)

Appartements de 2 à 5 pièces et maisons de 4 à 5 pièces
Livraison 3ème trimestre 2027

TANDEM
TANDEM
Meaux (77100)

Appartements de 1 à 4 pièces
Livraison 2ème trimestre 2028

Les Terrasses des Canotiers
Les Terrasses des Canotiers
Meaux (77100)

Appartements de 2 à 3 pièces
Livraison 3ème trimestre 2026

Les Promenades de l'Ourcq
Les Promenades de l'Ourcq
Meaux (77100)

Appartements de 1 à 3 pièces
Livraison 2ème trimestre 2027

L'embellie
L'embellie
Meaux (77100)

Appartements de 1 à 5 pièces
Livraison 4ème trimestre 2027

Contacter BABEAU SEGUIN AGENCE DE COULOMMIERS – SEINE ET MAR pour recevoir plus d'informations

Remplissez le formulaire ci-dessous, vos informations sont transmises directement au constructeur qui vous contactera par email ou par téléphone afin de traiter votre demande. En savoir plus.

Voir tous nos programmes immobiliers neufs à Chailly-en-Brie