Maison neuve, 82 m² - Aizenay (85190)

219 210 €
Aizenay (85190)

Proposée par MAISONS TRADILIGNES – 4 pièces - 3 chambres - terrain 596 m²

MAISONS TRADILIGNES
MAISONS TRADILIGNES
  • Demande d'information
MAISON À CONSTRUIRE : ceci est une annonce d'une maison neuve à construire.
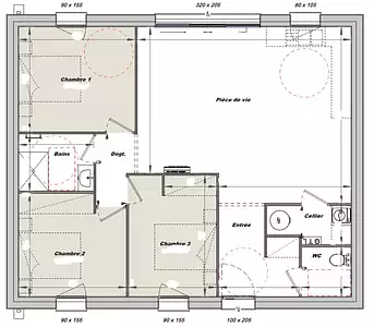
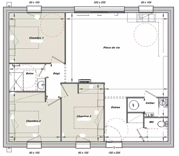
VENTE : maison de 4 pièces (82 m²) à Aizenay
PROCHE DE LA ROCHE-SUR-YON - MAISON 4 PIÈCES NEUVE
À vendre : située à 30 km de l'océan Atlantique et à deux pas de La Roche-sur-Yon, nous vous proposons cette maison de 4 pièces de plain-pied de 82 m² à Aizenay (85190).
Son intérieur comporte trois chambres, une cuisine et une salle de bains. La maison est neuve.
Le terrain de la propriété est de 596 m².
On trouve cinq établissements scolaires à moins de 10 minutes à pied, tout comme une crèche. Il y a un accès à l'autoroute A87 à 13 km. Il y a un bassin de natation, un tennis, des commerces, des boulangeries, une poissonnerie, un bureau de poste et une boucherie-charcuterie à proximité.
Son prix de vente est de 219 210 €.
.
Référence : MC2316587_3
Terrain proposé par un partenaire foncier selon disponibilités et autorisation de publicité au prix de 89 400 €. Hors droit d'enregistrement et frais de notaire. Maison proposée, avec un contrat de construction de maison individuelle, dans le cadre de la loi du 19/12/1990, au prix de 129 810 € (Hors branchements et raccordements, papiers peints, peintures, revêtement de sol dans les chambres, qui sont chiffrés dans les travaux qui restent à charge du client. Tarif modifiable sans préavis). Étiquette énergie : A. Différents modèles disponibles pour ce terrain. Assurances et garanties du constructeur comprises (RC professionnelle, décennale, dommage ouvrage).

Les informations sur les risques auxquels ce bien est exposé sont disponibles sur le site Géorisques : www.georisques.gouv.fr


Prix
  • Prix total : 219 210 €
  • Prix du modèle de maison : 129 810 €
  • Prix du terrain : 89 400 €

Terrain
  • Surface : 596 m²

Maison
  • Surface : 82 m²
  • Pièces : 4
  • Chambres : 3

  • Être rappelé par un conseiller
  • Demander plus d’infos
  • Demande d'information
Aizenay (85190)

Programmes à proximité

Le Parc de l'Etang
Le Parc de l'Etang
La Roche-sur-Yon (85000)

Appartements de 2 à 3 pièces
Livraison 1er trimestre 2027

Yonora
Yonora
La Roche-sur-Yon (85000)

Appartements de 2 à 5 pièces
Livraison 4ème trimestre 2027

LES JARDINS DE LA BROSSARDIERE
LES JARDINS DE LA BROSSARDIERE
La Roche-sur-Yon (85000)

Appartements de 2 à 3 pièces et terrains
Livraison 2ème trimestre 2027

OPPORTUNEO PARC
OPPORTUNEO PARC
La Roche-sur-Yon (85000)

Appartements de 1 à 4 pièces
Livraison 4ème trimestre 2027

Domaine de l'Yon
Domaine de l'Yon
La Roche-sur-Yon (85000)

Appartements de 2 à 3 pièces
Livraison 4ème trimestre 2027

My Work Vendée
My Work Vendée
La Roche-sur-Yon (85000)

Appartements de 1 à 2 pièces
Livraison 2ème trimestre 2028

Contacter MAISONS TRADILIGNES pour recevoir plus d'informations

Remplissez le formulaire ci-dessous, vos informations sont transmises directement au constructeur qui vous contactera par email ou par téléphone afin de traiter votre demande. En savoir plus.

Voir tous nos programmes immobiliers neufs à Aizenay