Maison neuve, 85 m² - Vendres (34350)

268 000 €
Vendres (34350)

Proposée par MAISONS DE MANON – 4 pièces - 3 chambres - terrain 352 m²

MAISONS DE MANON
MAISONS DE MANON
  • Demande d'information
MAISON À CONSTRUIRE : ceci est une annonce d'une maison neuve à construire.
PROJET DE CONSTRUCTION - Maison de 4 pièces (85 m²) à Vendres
IDÉALEMENT SITUÉE - MAISON 4 PIÈCES
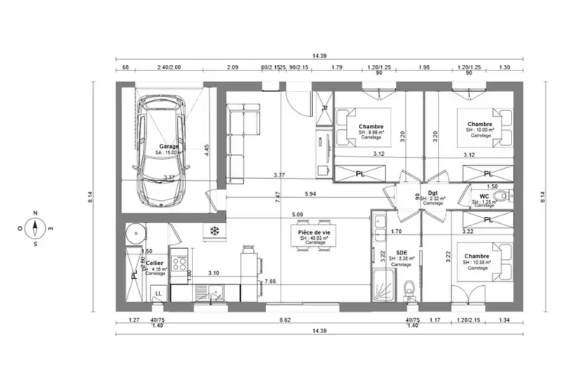
À vendre sur le littoral méditerranéen et à 10 km de Béziers, idéalement située dans Vendres (34350), nous vous proposons cette maison de 4 pièces de plain-pied de 85 m² et de 352 m² de terrain. Conçue de plain-pied, elle compte trois chambres, une cuisine, un cellier et une salle de bains + GARAGE.
(Carrelage inclus dans toutes les pièces / Raccordements inclus).
La maison se situe dans un secteur recherché. Le Collège Françoise Giroud, l'École Primaire Lucie Aubrac et l'École Maternelle Lucie Aubrac se trouvent à moins de 10 minutes à pied. Niveau transports, il y a la gare Béziers à moins de 10 minutes en voiture. Les autoroutes A9 et A75 sont accessibles à moins de 9 km. On trouve un tennis, trois boulangeries, deux commerces, un bureau de poste, une poissonnerie et quatre épiceries dans les environs.
Elle est à vendre pour la somme de 268 000 €.
Pour plus d'information contacter (Anthony BALLESTER : 06-27-21-51-55) Maisons de Manon Béziers pour échanger sur votre projet et réaliser une étude gratuite. (Plan personnalisable). Tous nos ouvrages sont réalisés sur-mesure en fonction de vos attentes et de nos échanges avec vous ainsi que dans le respect de la règlementation RE 2020. Ce projet comporte les garanties suivantes: Contrat de construction CCMI. Dommage/Ouvrage. RC Garantie décennale. Parfaite achèvement. Etude de sol G2. Prix et délais convenu. Garantie de livraison. Garantie financière Pour votre tranquillité nous nous occupons de toutes les formalités administratives.
Référence : AB2362126_4
Terrain proposé par un partenaire foncier selon disponibilités et autorisation de publicité au prix de 127 000 €. Hors droit d'enregistrement et frais de notaire. Terrain + Maison proposés au prix de 141 000 € (Hors branchements et raccordements, papiers peints, peintures, revêtement de sol dans les chambres. Tarif modifiable sans préavis). Etiquette énergie : A. Différents modèles disponibles pour ce terrain. Assurances et garanties du constructeur (RC professionnelle, décennale, dommage ouvrage, garantie de remboursement de l'acompte, livraison à prix et délai convenu) : https://www.maisons-de-manon.fr/informations-legales/. HEXAOM Services est enregistré auprès de l'ORIAS en tant que Courtier en financement, Niveau 1, sous le numéro 14001345.

Les informations sur les risques auxquels ce bien est exposé sont disponibles sur le site Géorisques : www.georisques.gouv.fr


Prix
  • Prix total : 268 000 €
  • Prix du modèle de maison : 141 000 €
  • Prix du terrain : 127 000 €

Terrain
  • Surface : 352 m²

Maison
  • Surface : 85 m²
  • Pièces : 4
  • Chambres : 3
  • Garage : 1

  • Être rappelé par un conseiller
  • Demander plus d’infos
  • Demande d'information
Vendres (34350)

Programmes à proximité

Arborea
Arborea
Sauvian (34410)

Appartement de 3 pièces
Livraison 3ème trimestre 2024

SERENE
SERENE
Sauvian (34410)

Appartements de 2 à 3 pièces
Livraison 3ème trimestre 2027

Naturea
Naturea
Sauvian (34410)

Appartements de 3 pièces et maisons de 3 à 4 pièces
Livraison 4ème trimestre 2025

Les Embruns
Les Embruns
Valras-Plage (34350)

Appartements de 1 à 3 pièces
Livraison 4ème trimestre 2027

AZUREA
AZUREA
Valras-Plage (34350)

Appartements de 2 à 4 pièces
Livraison 3ème trimestre 2027

Ovéa
Ovéa
Béziers (34500)

Appartements de 2 à 4 pièces
Livraison 3ème trimestre 2026

Contacter MAISONS DE MANON pour recevoir plus d'informations

Remplissez le formulaire ci-dessous, vos informations sont transmises directement au constructeur qui vous contactera par email ou par téléphone afin de traiter votre demande. En savoir plus.

Voir tous nos programmes immobiliers neufs à Vendres