Maison neuve, 119 m² - Tiercé (49125)

297 000 €
Tiercé (49125)

Proposée par MAISONS BERNARD JAMBERT – 5 pièces - 3 chambres - terrain 596 m²

MAISONS BERNARD JAMBERT
MAISONS BERNARD JAMBERT
  • Demande d'information
MAISON À CONSTRUIRE : ceci est une annonce d'une maison neuve à construire.
Tiercé : maison F5 (119 m²) à vendre
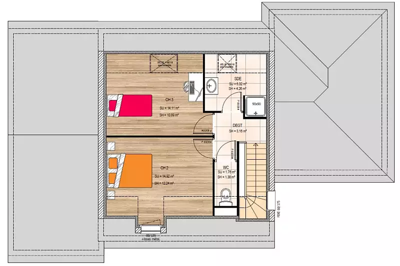
Proche d'Angers - Maison neuve 5 pièces à vendre à Tiercé (49125) avec 2 niveaux, une surface de 119 m² et de 596 m² de terrain. Elle compte trois chambres, une cuisine et deux salles de bains.
À proximité : gare (Tiercé), écoles, tennis, commerces, boulangeries, supermarché, bureau de poste et boucheries-charcuteries. Autoroutes A11, A85 et A87N accessibles à 13 km.
Cette maison de 5 pièces est proposée à l'achat pour 297 000 €.
Contactez Carole PORCHER (06-88-98-52-77) pour plus d'informations sur la maison, sur les modalités de vente ou sur les démarches à suivre. Maisons Bernard Jambert Angers est là pour vous accompagner dans tous vos projets immobiliers.
Référence : CP2326379_1
Terrain proposé par un partenaire foncier selon disponibilités et autorisation de publicité au prix de 57 000 €. Hors droit d'enregistrement et frais de notaire. Terrain + Maison proposés au prix de 240 000 € (Hors branchements et raccordements, papiers peints, peintures, revêtement de sol dans les chambres. Tarif modifiable sans préavis). Etiquette énergie : A. Différents modèles disponibles pour ce terrain. Assurances et garanties du constructeur (RC professionnelle, décennale, dommage ouvrage, garantie de remboursement de l'acompte, livraison à prix et délai convenu) : https://www.maisons-bernard-jambert.com/informations-legales/.

Les informations sur les risques auxquels ce bien est exposé sont disponibles sur le site Géorisques : www.georisques.gouv.fr


Prix
  • Prix total : 297 000 €
  • Prix du modèle de maison : 240 000 €
  • Prix du terrain : 57 000 €

Terrain
  • Surface : 596 m²

Maison
  • Surface : 119 m²
  • Pièces : 5
  • Chambres : 3
  • Garage : 1

  • Être rappelé par un conseiller
  • Demander plus d’infos
  • Demande d'information
Tiercé (49125)

Programmes à proximité

LE CLOS SAINT-SYLVAIN
LE CLOS SAINT-SYLVAIN
Saint-Sylvain-d'Anjou (49480)

Appartements de 3 pièces et maison de 4 pièces
Livraison 2ème trimestre 2027

LE CLOS DES VIGNES
LE CLOS DES VIGNES
Verrières-en-Anjou (49112, 49480)

Appartements de 2 à 3 pièces
Livraison 1er trimestre 2028

KENNEDY
KENNEDY
Avrillé (49240)

Appartements de 2 à 5 pièces et maisons de 4 à 5 pièces
Livraison 4ème trimestre 2026

Le Domaine des Tilleuls
Le Domaine des Tilleuls
Avrillé (49240)

Appartements de 2 à 4 pièces
Livraison 1er trimestre 2027

Le Floréa
Le Floréa
Avrillé (49240)

Appartements de 2 à 4 pièces
Livraison 4ème trimestre 2026

Initiale
Initiale
Saint-Barthélemy-d'Anjou (49124)

Appartements de 2 à 4 pièces
Livraison 4ème trimestre 2027

Contacter MAISONS BERNARD JAMBERT pour recevoir plus d'informations

Remplissez le formulaire ci-dessous, vos informations sont transmises directement au constructeur qui vous contactera par email ou par téléphone afin de traiter votre demande. En savoir plus.

Voir tous nos programmes immobiliers neufs à Tiercé