Maison neuve, 61 m² - Sainte-Foy (85150)

202 900 €
Sainte-Foy (85150)

Proposée par LMP CONSTRUCTEUR – 2 pièces - 2 chambres - terrain 382 m²

LMP CONSTRUCTEUR
LMP CONSTRUCTEUR
  • Demande d'information
MAISON À CONSTRUIRE : ceci est une annonce d'une maison neuve à construire.
********** A SEULEMENT 20 MINUTES DES SABLES D'OLONNE ***********
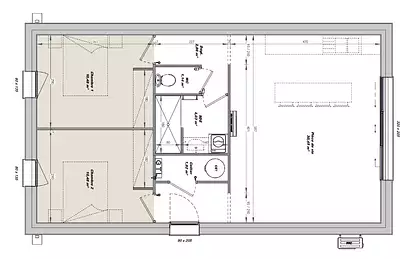
Maison de 2 pièces (61 m²) à vendre à Sainte-Foy
Emplacement privilégié - Maison neuve 2 pièces en vente à Sainte-Foy (85150) avec une surface de 61 m² sur un terrain de 385 m². Son intérieur propose deux chambres, une cuisine et une salle de bains.
Proche gares (La Mothe-Achard, Olonne-sur-Mer et Les Sables-d'Olonne), écoles, crèche, tennis, boulangerie, commerce et supérette. Autoroute A87 à 17 km. Océan Atlantique à 11 km. La Roche-sur-Yon à 27 km.
Le prix de vente de cette maison de 2 pièces est de 202 900 €.
.
********** A SEULEMENT 20 MINUTES DES SABLES D'OLONNE ***********
Référence : NR2258580_4
Terrain proposé par un partenaire foncier selon disponibilités et autorisation de publicité au prix de 93 100 €. Hors droit d'enregistrement et frais de notaire. Maison proposée, avec un contrat de construction de maison individuelle, dans le cadre de la loi du 19/12/1990, au prix de 109 800 € (Hors branchements et raccordements, papiers peints, peintures, revêtement de sol dans les chambres, qui sont chiffrés dans les travaux qui restent à charge du client. Tarif modifiable sans préavis). Étiquette énergie : A. Différents modèles disponibles pour ce terrain. Assurances et garanties du constructeur comprises (RC professionnelle, décennale, dommage ouvrage).

Les informations sur les risques auxquels ce bien est exposé sont disponibles sur le site Géorisques : www.georisques.gouv.fr


Prix
  • Prix total : 202 900 €
  • Prix du modèle de maison : 109 800 €
  • Prix du terrain : 93 100 €

Terrain
  • Surface : 382 m²

Maison
  • Surface : 61 m²
  • Pièces : 2
  • Chambres : 2

  • Être rappelé par un conseiller
  • Demander plus d’infos
  • Demande d'information
Sainte-Foy (85150)

Programmes à proximité

LE WINCH
LE WINCH
Olonne-sur-Mer (85340)

Appartements de 2 à 3 pièces et maison de 4 pièces
Livraison 4ème trimestre 2027

LE WINCH
LE WINCH
Olonne-sur-Mer (85340)

Appartements de 2 à 4 pièces et maisons de 4 pièces
Livraison 3ème trimestre 2027

Nova Mar
Nova Mar
Les Sables-d'Olonne (85100)

Appartements de 3 à 4 pièces
Livraison 2ème trimestre 2027

LES TERRASSES DU PAYRÉ
LES TERRASSES DU PAYRÉ
Talmont-Saint-Hilaire (85440)

Appartements de 1 à 4 pièces
Livraison 3ème trimestre 2027

Domaine de la Sauzaie
Domaine de la Sauzaie
Bretignolles-sur-Mer (85470)

Appartements de 2 à 3 pièces
Livraison 1er trimestre 2027

Terrasses Littoral
Terrasses Littoral
Bretignolles-sur-Mer (85470)

Appartements de 2 à 3 pièces
Livraison 3ème trimestre 2027

Contacter LMP CONSTRUCTEUR pour recevoir plus d'informations

Remplissez le formulaire ci-dessous, vos informations sont transmises directement au constructeur qui vous contactera par email ou par téléphone afin de traiter votre demande. En savoir plus.

Voir tous nos programmes immobiliers neufs à Sainte-Foy