Maison neuve, 167 m² - Pornic (44210)

700 000 €
Pornic (44210)

Proposée par MAISONS TRADILIGNES – 5 pièces - 4 chambres - terrain 1 016 m²

MAISONS TRADILIGNES
MAISONS TRADILIGNES
  • Demande d'information
MAISON À CONSTRUIRE : ceci est une annonce d'une maison neuve à construire.
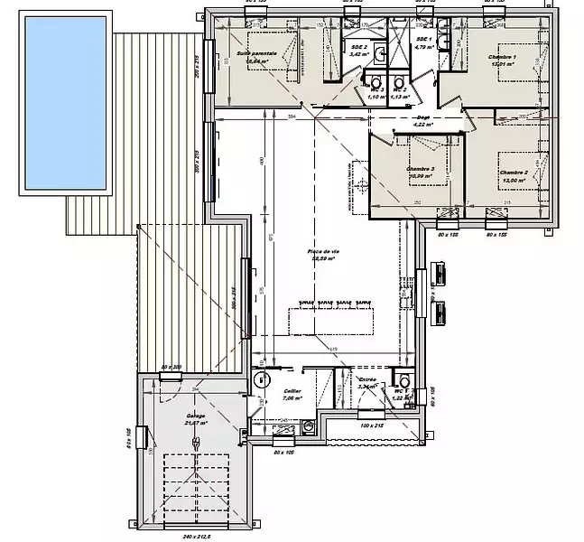
Maison F5 (167 m²) en vente à Pornic
PROCHE DE SAINT-NAZAIRE - MAISON 5 PIÈCES NEUVE
À vendre sur le littoral atlantique et à quelques kilomètres de Saint-Nazaire, nous sommes ravis de vous présenter cette maison de 5 pièces de 167 m² et de 1 016 m² de terrain à Pornic (44210).
C'est une maison de 2 niveaux. Son intérieur dispose de quatre chambres, d'une cuisine et d'une salle de bains. La maison est neuve.
Cinq établissements scolaires sont implantés à moins de 10 minutes à. Niveau transports, il y a la gare Pornic juste à côté. On trouve un port de plaisance, des commerces, des boulangeries, un supermarché, une supérette et un bureau de poste à quelques minutes à peine.
Elle est à vendre pour la somme de 700 000 €.
.
Référence : VC2401430_3
Terrain proposé par un partenaire foncier selon disponibilités et autorisation de publicité au prix de 373 300 €. Hors droit d'enregistrement et frais de notaire. Terrain + Maison proposés au prix de 326 700 € (Hors branchements et raccordements, papiers peints, peintures, revêtement de sol dans les chambres. Tarif modifiable sans préavis). Etiquette énergie : A. Différents modèles disponibles pour ce terrain.

Les informations sur les risques auxquels ce bien est exposé sont disponibles sur le site Géorisques : www.georisques.gouv.fr


Prix
  • Prix total : 700 000 €
  • Prix du modèle de maison : 326 700 €
  • Prix du terrain : 373 300 €

Terrain
  • Surface : 1 016 m²

Maison
  • Surface : 167 m²
  • Pièces : 5
  • Chambres : 4
  • Garage : 1

  • Être rappelé par un conseiller
  • Demander plus d’infos
  • Demande d'information
Pornic (44210)

Programmes à proximité

Vert Emeraude
Vert Emeraude
Pornic (44210)

Appartements de 2 à 5 pièces
Livraison 2ème trimestre 2028

Le Domaine du Parc
Le Domaine du Parc
Pornic (44210)

Appartements de 2 à 5 pièces
Livraison 4ème trimestre 2027

IMPULSION
IMPULSION
Saint-Père-en-Retz (44320)

Appartements de 2 à 4 pièces
Livraison 4ème trimestre 2027

VILLA MARIA
VILLA MARIA
Pornic (44210)

Appartements de 2 à 4 pièces
Livraison 4ème trimestre 2026

Les Allées de la Ria
Les Allées de la Ria
Pornic (44210)

Appartements de 2 à 4 pièces
Livraison 2ème trimestre 2027

Prochainement à La Bernerie-en-Retz
Prochainement à La Bernerie-en-Retz
La Bernerie-en-Retz (44760)

Appartements de 2 à 5 pièces
Livraison 2ème trimestre 2028

Contacter MAISONS TRADILIGNES pour recevoir plus d'informations

Remplissez le formulaire ci-dessous, vos informations sont transmises directement au constructeur qui vous contactera par email ou par téléphone afin de traiter votre demande. En savoir plus.

Voir tous nos programmes immobiliers neufs à Pornic