Maison neuve, 119 m² - Pornic (44210)

813 700 €
Pornic (44210)

Proposée par MAISONS TRADILIGNES – 8 pièces - 3 chambres - terrain 1 213 m²

MAISONS TRADILIGNES
MAISONS TRADILIGNES
  • Demande d'information
MAISON À CONSTRUIRE : ceci est une annonce d'une maison neuve à construire.
VENTE : maison F8 (119 m²) à Pornic
EMPLACEMENT PRIVILÉGIÉ - MAISON 8 PIÈCES NEUVE
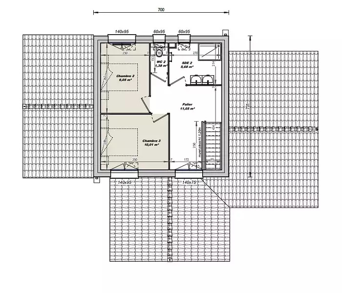
En vente au bord de l'océan Atlantique et à 22 km de Saint-Nazaire, nous sommes ravis de vous présenter, bénéficiant d'un emplacement privilégié dans Pornic (44210), cette maison de 8 pièces de 119 m². Son intérieur inclut trois chambres, une cuisine et deux salles de bains.
Le terrain de cette maison est de 1 213 m².
Cette maison possède 2 niveaux. Elle est neuve.
La maison se trouve dans un secteur prisé. Cinq établissements scolaires sont implantés à moins de 10 minutes . Niveau transports en commun, il y a la gare Pornic dans un rayon de 1 km. On trouve un port de plaisance, des commerces, des boulangeries, un supermarché, un bureau de poste et trois épiceries à proximité.
Son prix de vente est de 813 700 €.
. Maisons Tradilignes Pornic est là pour vous accompagner à toutes les étapes de votre projet.
Référence : VC2349713_3
Terrain proposé par un partenaire foncier selon disponibilités et autorisation de publicité au prix de 500 000 €. Hors droit d'enregistrement et frais de notaire. Maison proposée, avec un contrat de construction de maison individuelle, dans le cadre de la loi du 19/12/1990, au prix de 313 700 € (Hors branchements et raccordements, papiers peints, peintures, revêtement de sol dans les chambres, qui sont chiffrés dans les travaux qui restent à charge du client. Tarif modifiable sans préavis). Étiquette énergie : A. Différents modèles disponibles pour ce terrain. Assurances et garanties du constructeur comprises (RC professionnelle, décennale, dommage ouvrage).

Les informations sur les risques auxquels ce bien est exposé sont disponibles sur le site Géorisques : www.georisques.gouv.fr


Prix
  • Prix total : 813 700 €
  • Prix du modèle de maison : 313 700 €
  • Prix du terrain : 500 000 €

Terrain
  • Surface : 1 213 m²

Maison
  • Surface : 119 m²
  • Pièces : 8
  • Chambres : 3
  • Garage : 1

  • Être rappelé par un conseiller
  • Demander plus d’infos
  • Demande d'information
Pornic (44210)

Programmes à proximité

Villa Floria
Villa Floria
Pornic (44210)

Appartements de 3 pièces
Livraison 4ème trimestre 2027

IMPULSION
IMPULSION
Saint-Père-en-Retz (44320)

Appartements de 2 à 4 pièces
Livraison 4ème trimestre 2027

Vert Emeraude
Vert Emeraude
Pornic (44210)

Appartements de 2 à 5 pièces
Livraison 4ème trimestre 2027

VILLA MARIA
VILLA MARIA
Pornic (44210)

Appartements de 2 à 4 pièces
Livraison 4ème trimestre 2026

Les Allées de la Ria
Les Allées de la Ria
Pornic (44210)

Appartements de 2 à 4 pièces
Livraison 2ème trimestre 2027

Le Domaine du Parc
Le Domaine du Parc
Pornic (44210)

Appartements de 2 à 5 pièces
Livraison 4ème trimestre 2027

Contacter MAISONS TRADILIGNES pour recevoir plus d'informations

Remplissez le formulaire ci-dessous, vos informations sont transmises directement au constructeur qui vous contactera par email ou par téléphone afin de traiter votre demande. En savoir plus.

Voir tous nos programmes immobiliers neufs à Pornic