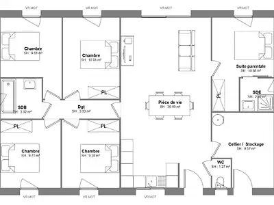
Maison neuve, 100 m² - Nouzilly (37380)
304 900 €
Nouzilly (37380)
Proposée par MAISONS STEPHANIE – 5 pièces - 4 chambres - terrain 366 m²
|
|
| MAISONS STEPHANIE |
- Demande d'information
- Prendre rendez-vous
MAISON À CONSTRUIRE : ceci est une annonce d'une maison neuve à construire.
DEVENEZ PROPRIÉTAIRE DE VOTRE MAISON SUR-MESURE - OPPORTUNITE A SAISIR
Découvrez cette demeure conçue et bâtie avec tout le savoir-faire des Maisons de Stéphanie, constructeur reconnu pour ses 30 années d'expérience et son exigence de qualité.
Chaque détail est pensé pour votre confort et vos envies : une architecture élégante, des espaces lumineux et fonctionnels, et la possibilité d'adapter les plans selon votre mode de vie.
Saisissez dès maintenant l'opportunité de faire de cette maison votre nouveau lieu de vie !
Contactez Maëlle VECHTE dès maintenant au *2 47 48 09 30 pour plus d'informations et concrétiser votre projet.
Référence : MV2291654_4
Terrain proposé par un partenaire foncier selon disponibilités et autorisation de publicité au prix de 55 000 €. Hors droit d'enregistrement et frais de notaire. Maison proposée, avec un contrat de construction de maison individuelle, dans le cadre de la loi du 19/12/1990, au prix de 249 900 € (Hors branchements et raccordements, papiers peints, peintures, revêtement de sol dans les chambres, qui sont chiffrés dans les travaux qui restent à charge du client. Tarif modifiable sans préavis). Étiquette énergie : A. Différents modèles disponibles pour ce terrain. Assurances et garanties du constructeur comprises (RC professionnelle, décennale, dommage ouvrage).
Les informations sur les risques auxquels ce bien est exposé sont disponibles sur le site Géorisques : www.georisques.gouv.fr
Découvrez cette demeure conçue et bâtie avec tout le savoir-faire des Maisons de Stéphanie, constructeur reconnu pour ses 30 années d'expérience et son exigence de qualité.
Chaque détail est pensé pour votre confort et vos envies : une architecture élégante, des espaces lumineux et fonctionnels, et la possibilité d'adapter les plans selon votre mode de vie.
Saisissez dès maintenant l'opportunité de faire de cette maison votre nouveau lieu de vie !
Contactez Maëlle VECHTE dès maintenant au *2 47 48 09 30 pour plus d'informations et concrétiser votre projet.
Référence : MV2291654_4
Terrain proposé par un partenaire foncier selon disponibilités et autorisation de publicité au prix de 55 000 €. Hors droit d'enregistrement et frais de notaire. Maison proposée, avec un contrat de construction de maison individuelle, dans le cadre de la loi du 19/12/1990, au prix de 249 900 € (Hors branchements et raccordements, papiers peints, peintures, revêtement de sol dans les chambres, qui sont chiffrés dans les travaux qui restent à charge du client. Tarif modifiable sans préavis). Étiquette énergie : A. Différents modèles disponibles pour ce terrain. Assurances et garanties du constructeur comprises (RC professionnelle, décennale, dommage ouvrage).
Les informations sur les risques auxquels ce bien est exposé sont disponibles sur le site Géorisques : www.georisques.gouv.fr
- Prix
-
- Prix total : 304 900 €
- Prix du modèle de maison : 249 900 €
- Prix du terrain : 55 000 €
- Terrain
-
- Surface : 366 m²
- Maison
-
- Surface : 100 m²
- Pièces : 5
- Chambres : 4
- Garage : 1
- Être rappelé par un conseiller
- Demander plus d’infos
- Demande d'information
Nouzilly (37380)
Maisons à proximité
Maison neuve, 120 m²
Nouzilly (37380)
Nouzilly (37380)
Maison de 5 pièces
Maison neuve, 203 m²
Nouzilly (37380)
Nouzilly (37380)
Maison de 6 pièces
Maison neuve, 110 m²
Nouzilly (37380)
Nouzilly (37380)
Maison de 5 pièces
Maison neuve, 107 m²
Nouzilly (37380)
Nouzilly (37380)
Maison de 5 pièces
Maison neuve, 76 m²
Nouzilly (37380)
Nouzilly (37380)
Maison de 4 pièces
Maison neuve, 73 m²
Nouzilly (37380)
Nouzilly (37380)
Maison de 4 pièces
Programmes à proximité
CARRE DES HALLES
Vouvray (37210)
Vouvray (37210)
Appartements de 1 à 4 pièces
Livraison 3ème trimestre 2027
LOUISE DE BOURBON
La Ville-aux-Dames (37700)
La Ville-aux-Dames (37700)
Appartements de 3 pièces
AD'AILE - TOURS
Tours (37100)
Tours (37100)
Appartement de 3 pièces
Livraison 4ème trimestre 2027
URBAN LODGES
Tours (37100)
Tours (37100)
Appartements de 2 à 3 pièces
Livraison 4ème trimestre 2026
LES JARDINS DU LUXEMBOURG
Tours (37100)
Tours (37100)
Appartements de 2 à 4 pièces
Livraison 3ème trimestre 2027
L'ECRIVAIN
Tours (37100)
Tours (37100)
Appartements de 2 à 4 pièces
Livraison 1er trimestre 2027
Contacter MAISONS STEPHANIE pour recevoir plus d'informations
Remplissez le formulaire ci-dessous, vos informations sont transmises directement au constructeur qui vous contactera par email ou par téléphone afin de traiter votre demande. En savoir plus.