Maison neuve, 79 m² - Notre-Dame-de-Riez (85270)
Proposée par LMP CONSTRUCTEUR – 2 pièces - 3 chambres - terrain 309 m²
|
LMP CONSTRUCTEUR |
- Demande d'information
- Prendre rendez-vous
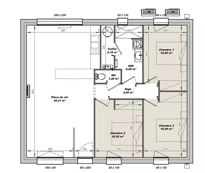
Emplacement privilégié - À découvrir à Notre-Dame-de-Riez (85270) : maison neuve 2 pièces à vendre. Surface de 79 m² et 309 m² de terrain. Son intérieur dispose de trois chambres, d'une cuisine et d'une salle de bains.
À dix minutes : gares (Saint-Hilaire-de-Riez et Saint-Gilles-Croix-de-Vie), École Primaire Publique f.e. Voisin, crèche, supérette. Océan Atlantique à 6 km.
Le prix de vente de cette maison de 2 pièces est de 189 900 €.
. LMP Constructeur Saint-Gilles-Croix-de-Vie est là pour vous accompagner dans tous vos projets immobiliers.
... Afficher plus
Terrain proposé par un partenaire foncier selon disponibilités et autorisation de publicité au prix de 56 250 €. Hors droit d'enregistrement et frais de notaire. Maison proposée, avec un contrat de construction de maison individuelle, dans le cadre de la loi du 19/12/1990, au prix de 133 650 € (Hors branchements et raccordements, papiers peints, peintures, revêtement de sol dans les chambres, qui sont chiffrés dans les travaux qui restent à charge du client. Tarif modifiable sans préavis). Étiquette énergie : A. Différents modèles disponibles pour ce terrain. Assurances et garanties du constructeur comprises (RC professionnelle, décennale, dommage ouvrage).
Les informations sur les risques auxquels ce bien est exposé sont disponibles sur le site Géorisques : www.georisques.gouv.fr
- Prix
-
- Prix total : 189 900 €
- Prix du modèle de maison : 133 650 €
- Prix du terrain : 56 250 €
- Terrain
-
- Surface : 309 m²
- Maison
-
- Surface : 79 m²
- Pièces : 2
- Chambres : 3
- Être rappelé par un conseiller
- Demander plus d’infos
- Demande d'information
Maisons à proximité
Notre-Dame-de-Riez (85270)
Maison de 3 pièces
Notre-Dame-de-Riez (85270)
Maison de 4 pièces
Notre-Dame-de-Riez (85270)
Maison de 4 pièces
Notre-Dame-de-Riez (85270)
Maison de 4 pièces
Notre-Dame-de-Riez (85270)
Maison de 2 pièces
Notre-Dame-de-Riez (85270)
Maison de 5 pièces
Programmes à proximité
Saint-Hilaire-de-Riez (85270)
Appartements de 2 à 3 pièces
Livraison 3ème trimestre 2027
Saint-Hilaire-de-Riez (85270)
Appartements de 2 pièces et maisons de 3 à 5 pièces
Livraison 4ème trimestre 2025
Saint-Gilles-Croix-de-Vie (85800)
Appartements de 2 à 3 pièces
Livraison 1er trimestre 2027
Saint-Gilles-Croix-de-Vie (85800)
Appartements de 2 à 4 pièces
Livraison 4ème trimestre 2026
Challans (85300)
Appartements de 3 à 4 pièces
Livraison 2ème trimestre 2026
Challans (85300)
Appartements de 2 à 4 pièces
Livraison 3ème trimestre 2027
Remplissez le formulaire ci-dessous, vos informations sont transmises directement au constructeur qui vous contactera par email ou par téléphone afin de traiter votre demande. En savoir plus.
Voir tous nos programmes immobiliers neufs à Notre-Dame-de-Riez