Maison neuve, 111 m² - Montbazon (37250)

259 500 €
Montbazon (37250)

Proposée par CONSTRUCTIONS IDEALE DEMEURE – 6 pièces - 4 chambres - terrain 526 m²

CONSTRUCTIONS IDEALE DEMEURE
CONSTRUCTIONS IDEALE DEMEURE
  • Demande d'information
MAISON À CONSTRUIRE : ceci est une annonce d'une maison neuve à construire.
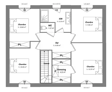
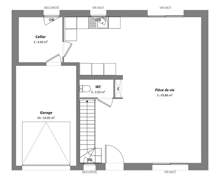
Maison à construire de 111 m² offrant une belle pièce de vie traversante, lumineuse et chaleureuse.
Quatre grandes chambres, dont une suite parentale avec dressing, garantissent espace et intimité pour toute la famille.
Un cellier attenant à la cuisine et un garage fermé complètent un plan fonctionnel pensé pour le quotidien.
Je reste disponible pour toutes demandes de renseignements, n'hésitez pas me contacter : Stéphane Digneton : O6.64.92.89.69.
Référence : SD2330604_5
Terrain proposé par un partenaire foncier selon disponibilités et autorisation de publicité au prix de 95 000 €. Hors droit d'enregistrement et frais de notaire. Terrain + Maison proposés au prix de 164 500 € (Hors branchements et raccordements, papiers peints, peintures, revêtement de sol dans les chambres. Tarif modifiable sans préavis). Etiquette énergie : A. Différents modèles disponibles pour ce terrain. Assurances et garanties du constructeur (RC professionnelle, décennale, dommage ouvrage, garantie de remboursement de l'acompte, livraison à prix et délai convenu) : https://www.constructions-ideale-demeure.fr/mentions-legales/.

Les informations sur les risques auxquels ce bien est exposé sont disponibles sur le site Géorisques : www.georisques.gouv.fr


Prix
  • Prix total : 259 500 €
  • Prix du modèle de maison : 164 500 €
  • Prix du terrain : 95 000 €

Terrain
  • Surface : 526 m²

Maison
  • Surface : 111 m²
  • Pièces : 6
  • Chambres : 4
  • Garage : 1

  • Être rappelé par un conseiller
  • Demander plus d’infos
  • Demande d'information
Montbazon (37250)

Programmes à proximité

CALICIA
CALICIA
Sorigny (37250)

Appartements de 1 à 3 pièces
Livraison 1er trimestre 2027

Verdéa
Verdéa
Joué-lès-Tours (37300)

Appartements de 1 à 2 pièces
Livraison 2ème trimestre 2027

My Campus Jean Jaurès
My Campus Jean Jaurès
Joué-lès-Tours (37300)

Appartement de 1 pièce
Livraison 1er trimestre 2026

Coeur de Ville
Coeur de Ville
Joué-lès-Tours (37300)

Appartements de 2 à 5 pièces
Livraison 4ème trimestre 2026

Investir en nue-propriété à Tours : choix gagnant !
Investir en nue-propriété à Tours : choix gagnant !
Tours (37000)

Appartements de 1 pièce
Livraison 3ème trimestre 2026

CHRYSALIDES
CHRYSALIDES
Tours (37000)

Appartements de 1 à 3 pièces
Livraison 1er trimestre 2026

Contacter CONSTRUCTIONS IDEALE DEMEURE pour recevoir plus d'informations

Remplissez le formulaire ci-dessous, vos informations sont transmises directement au constructeur qui vous contactera par email ou par téléphone afin de traiter votre demande. En savoir plus.

Voir tous nos programmes immobiliers neufs à Montbazon