Maison neuve, 200 m² - Montbazon (37250)

573 000 €
Montbazon (37250)

Proposée par CONSTRUCTIONS IDEALE DEMEURE – 7 pièces - 4 chambres - terrain 1 176 m²

CONSTRUCTIONS IDEALE DEMEURE
CONSTRUCTIONS IDEALE DEMEURE
  • Demande d'information
MAISON À CONSTRUIRE : ceci est une annonce d'une maison neuve à construire.
Votre future maison sur mesure : élégance, confort et modernité
Découvrez cette maison à construire, pensée pour offrir des espaces de vie lumineux, généreux et fonctionnels.
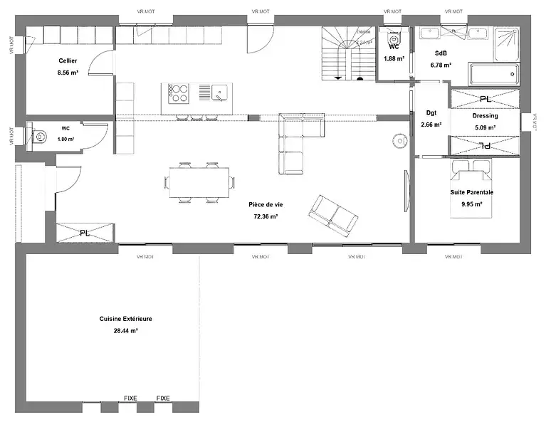
Chaque détail a été soigneusement conçu pour répondre aux attentes d'une vie confortable et harmonieuse. Au rez-de-chaussée :
Un grand espace de vie ouvert de 70 m², idéal pour des moments de convivialité, avec une entrée dégagée équipée de rangements.
Accès direct à une cuisine d'extérieur de 28 m², parfaite pour profiter des repas en plein air.
Une suite parentale avec dressing et salle de bain, alliant intimité et confort.
Les espaces de vie donnent sur une terrasse ensoleillée, offrant une possibilité de piscine pour des instants de détente.
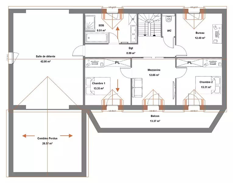
À l'étage :
Une salle de détente modulable de 20 m², transformable selon vos besoins en salle de sport, bureau ou espace de loisirs.
Trois chambres avec accès à un balcon commun, offrant un bel espace de partage et une vue dégagée.
Une mezzanine de 12 m² surplombant le séjour, ajoutant une touche de style à l'ensemble.
Une salle de bain de 10 m², spacieuse et moderne. Cette maison allie charme régional et touches contemporaines, tout en offrant des espaces intérieurs et extérieurs où la lumière est mise à l'honneur.
Cette maison allie charme régional et touches contemporaines, tout en offrant des espaces intérieurs et extérieurs où la lumière est mise à l'honneur.
Pour plus de renseignement, contactez moi au °7.57.82.55.62
CONSTRUCTIONS IDEALE DEMEURE a sélectionné avec un partenaire foncier un terrain pour construire cette maison.
Référence : JT2412019_1
Terrain proposé par un partenaire foncier selon disponibilités et autorisation de publicité au prix de 173 000 €. Hors droit d'enregistrement et frais de notaire. Terrain + Maison proposés au prix de 400 000 € (Hors branchements et raccordements, papiers peints, peintures, revêtement de sol dans les chambres. Tarif modifiable sans préavis). Etiquette énergie : A. Différents modèles disponibles pour ce terrain. Assurances et garanties du constructeur (RC professionnelle, décennale, dommage ouvrage, garantie de remboursement de l'acompte, livraison à prix et délai convenu) : https://www.constructions-ideale-demeure.fr/mentions-legales/.

Les informations sur les risques auxquels ce bien est exposé sont disponibles sur le site Géorisques : www.georisques.gouv.fr


Prix
  • Prix total : 573 000 €
  • Prix du modèle de maison : 400 000 €
  • Prix du terrain : 173 000 €

Terrain
  • Surface : 1 176 m²

Maison
  • Surface : 200 m²
  • Pièces : 7
  • Chambres : 4
  • Garage : 1

  • Être rappelé par un conseiller
  • Demander plus d’infos
  • Demande d'information
Montbazon (37250)

Programmes à proximité

CALICIA
CALICIA
Sorigny (37250)

Appartements de 1 à 3 pièces
Livraison 1er trimestre 2027

Verdéa
Verdéa
Joué-lès-Tours (37300)

Appartements de 1 à 2 pièces
Livraison 2ème trimestre 2027

My Campus Jean Jaurès
My Campus Jean Jaurès
Joué-lès-Tours (37300)

Appartement de 1 pièce
Livraison 1er trimestre 2026

Coeur de Ville
Coeur de Ville
Joué-lès-Tours (37300)

Appartements de 2 à 5 pièces
Livraison 4ème trimestre 2026

Investir en nue-propriété à Tours : choix gagnant !
Investir en nue-propriété à Tours : choix gagnant !
Tours (37000)

Appartements de 1 pièce
Livraison 3ème trimestre 2026

CHRYSALIDES
CHRYSALIDES
Tours (37000)

Appartements de 1 à 3 pièces
Livraison 1er trimestre 2026

Contacter CONSTRUCTIONS IDEALE DEMEURE pour recevoir plus d'informations

Remplissez le formulaire ci-dessous, vos informations sont transmises directement au constructeur qui vous contactera par email ou par téléphone afin de traiter votre demande. En savoir plus.

Voir tous nos programmes immobiliers neufs à Montbazon