Maison neuve, 104 m² - Moisenay (77950)

421 500 €
Moisenay (77950)

Proposée par BERVAL – 6 pièces - 5 chambres - terrain 341 m²

BERVAL
BERVAL
  • Demande d'information
MAISON À CONSTRUIRE : ceci est une annonce d'une maison neuve à construire.
Cette maison à la volumétrie simple se démarque par sa façade pignon.
Avec ses proportions d'ouvertures verticales, sa baie inter niveau et son parement briquette unilatéral, elle se veut résolument contemporaine.
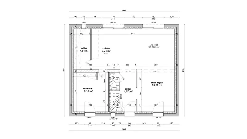
L'organisation intérieure a été optimisé afin de proposer au RDC une entrée, une chambre, un séjour/salon avec accès direct à la cuisine et son cellier.
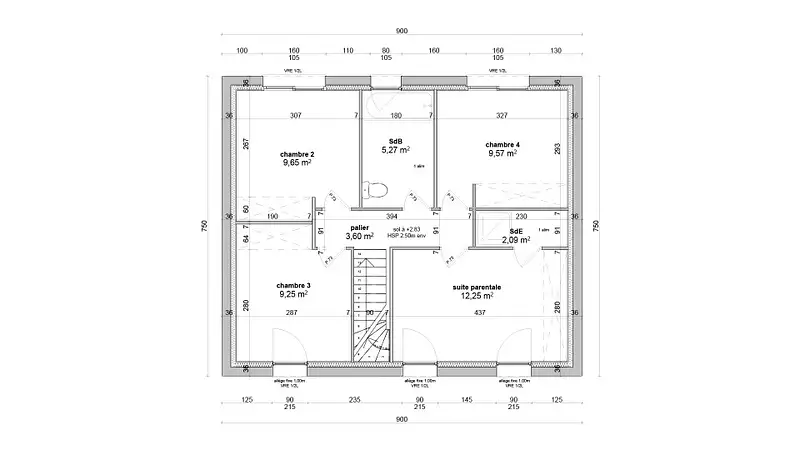
L'étage réuni 4 chambres dont une suite parentale avec salle d'eau privative et une salle de bains.
Comme toutes nos inspirations, ce projet est 100 % personnalisable : agencement, matériaux, finitions...
.
Maisons BERVAL est certifié NF HQE (Haute Qualité Environnementale).
Référence : CB2242703_5
Les annonces de terrains constructibles sont sélectionnées auprès de nos partenaires fonciers. Ces derniers sont soit des professionnels dûment habilités à la transaction immobilière, soit des particuliers. Terrains, selon disponibilité, pour la construction de maisons neuves, avec un contrat de construction de maison individuelle, dans le cadre de la loi du 19/12/1990. Les terrains sélectionnés sont disponibles à la date de la première parution de l’annonce. En aucun cas Maisons Berval ou ses collaborateurs ne sont propriétaires des terrains , ne jouent un rôle d’intermédiation ou de négociation sur la transaction et ne participent à la vente. Prix indiqués par nos partenaires fonciers.

Les informations sur les risques auxquels ce bien est exposé sont disponibles sur le site Géorisques : www.georisques.gouv.fr


Prix
  • Prix total : 421 500 €
  • Prix du modèle de maison : 294 500 €
  • Prix du terrain : 127 000 €

Terrain
  • Surface : 341 m²

Maison
  • Surface : 104 m²
  • Pièces : 6
  • Chambres : 5

  • Être rappelé par un conseiller
  • Demander plus d’infos
  • Demande d'information
Moisenay (77950)

Programmes à proximité

Bois et Lumière
Bois et Lumière
Vaux-le-Pénil (77000)

Appartements de 2 à 4 pièces
Livraison 4ème trimestre 2026

Chromatic
Chromatic
Melun (77000)

Appartements de 1 à 4 pièces
Livraison 4ème trimestre 2027

GINKGO
GINKGO
Melun (77000)

Appartement de 2 pièces
Livraison 1er trimestre 2025

LES TERRASSES FLAMMARION
LES TERRASSES FLAMMARION
Melun (77000)

Appartements de 1 à 4 pièces
Livraison 1er trimestre 2028

BE NATURE
BE NATURE
Melun (77000)

Appartements de 1 à 3 pièces
Livraison 1er trimestre 2028

Serenova
Serenova
Melun (77000)

Appartements de 1 à 4 pièces
Livraison 1er trimestre 2028

Contacter BERVAL pour recevoir plus d'informations

Remplissez le formulaire ci-dessous, vos informations sont transmises directement au constructeur qui vous contactera par email ou par téléphone afin de traiter votre demande. En savoir plus.

Voir tous nos programmes immobiliers neufs à Moisenay