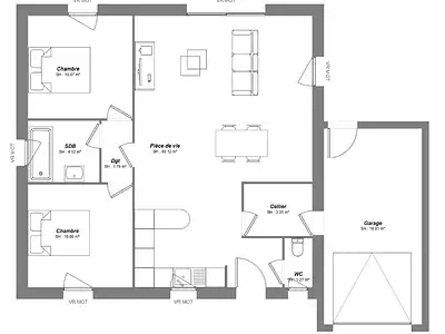
Maison neuve, 110 m² - Mazières-de-Touraine (37130)

259 900 €
Mazières-de-Touraine (37130)

Proposée par MAISONS STEPHANIE – 4 pièces - 3 chambres - terrain 637 m²

MAISONS STEPHANIE
MAISONS STEPHANIE
  • Demande d'information
MAISON À CONSTRUIRE : ceci est une annonce d'une maison neuve à construire.
DEVENEZ PROPRIÉTAIRE DE VOTRE MAISON SUR-MESURE - OPPORTUNITE A SAISIR
Découvrez cette demeure conçue et bâtie avec tout le savoir-faire des Maisons de Stéphanie, constructeur reconnu pour ses 30 années d'expérience et son exigence de qualité.
Chaque détail est pensé pour votre confort et vos envies : une architecture élégante, des espaces lumineux et fonctionnels, et la possibilité d'adapter les plans selon votre mode de vie.
Saisissez dès maintenant l'opportunité de faire de cette maison votre nouveau lieu de vie !
Contactez Maëlle VECHTE dès maintenant au *2 47 48 09 30 pour plus d'informations et concrétiser votre projet.
Référence : MV2360177_2
Terrain proposé par un partenaire foncier selon disponibilités et autorisation de publicité au prix de 49 000 €. Hors droit d'enregistrement et frais de notaire. Maison proposée, avec un contrat de construction de maison individuelle, dans le cadre de la loi du 19/12/1990, au prix de 210 900 € (Hors branchements et raccordements, papiers peints, peintures, revêtement de sol dans les chambres, qui sont chiffrés dans les travaux qui restent à charge du client. Tarif modifiable sans préavis). Étiquette énergie : A. Différents modèles disponibles pour ce terrain. Assurances et garanties du constructeur comprises (RC professionnelle, décennale, dommage ouvrage).

Les informations sur les risques auxquels ce bien est exposé sont disponibles sur le site Géorisques : www.georisques.gouv.fr


Prix
  • Prix total : 259 900 €
  • Prix du modèle de maison : 210 900 €
  • Prix du terrain : 49 000 €

Terrain
  • Surface : 637 m²

Maison
  • Surface : 110 m²
  • Pièces : 4
  • Chambres : 3
  • Garage : 1

  • Être rappelé par un conseiller
  • Demander plus d’infos
  • Demande d'information
Mazières-de-Touraine (37130)

Programmes à proximité

Les Jardins de Musset
Les Jardins de Musset
Fondettes (37230)

Appartements de 2 à 5 pièces
Livraison 2ème trimestre 2026

Les Dryades
Les Dryades
La Riche (37520)

Appartements de 3 à 4 pièces
Livraison 3ème trimestre 2025

EMBLEM
EMBLEM
La Riche (37520)

Appartements de 2 à 5 pièces
Livraison 1er trimestre 2026

La Saint-Cyrienne
La Saint-Cyrienne
Saint-Cyr-sur-Loire (37540)

Appartements de 2 à 4 pièces
Livraison 4ème trimestre 2026

Verdéa
Verdéa
Joué-lès-Tours (37300)

Appartements de 1 à 2 pièces
Livraison 2ème trimestre 2027

Coeur de Ville
Coeur de Ville
Joué-lès-Tours (37300)

Appartements de 2 à 5 pièces
Livraison 4ème trimestre 2026

Contacter MAISONS STEPHANIE pour recevoir plus d'informations

Remplissez le formulaire ci-dessous, vos informations sont transmises directement au constructeur qui vous contactera par email ou par téléphone afin de traiter votre demande. En savoir plus.

Voir tous nos programmes immobiliers neufs à Mazières-de-Touraine