Maison neuve, 107 m² - Mazières-de-Touraine (37130)

239 000 €
Mazières-de-Touraine (37130)

Proposée par CONSTRUCTIONS IDEALE DEMEURE – 5 pièces - 5 chambres - terrain 1 033 m²

CONSTRUCTIONS IDEALE DEMEURE
CONSTRUCTIONS IDEALE DEMEURE
  • Demande d'information
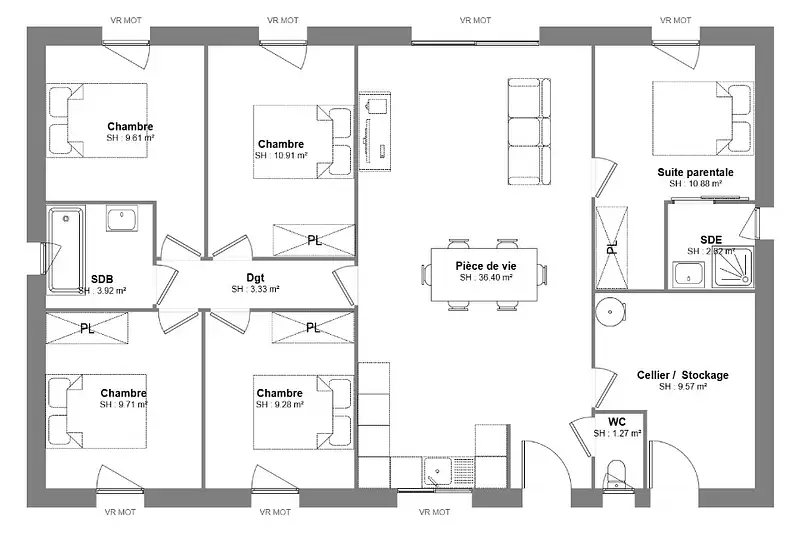
MAISON À CONSTRUIRE : ceci est une annonce d'une maison neuve à construire.
Voici une belle maison de 107m² à construire, comprenant 5 chambres, dont une suite parentale confortable. Elle dispose de 2 salles de bain modernes pour un confort optimal. Un grand cellier est également prévu, idéal pour le stockage et l'organisation.
Cette maison est entièrement personnalisable selon vos envies et besoins.
Je reste disponible pour toutes demandes de renseignements, n'hésitez pas me contacter : Stéphane Digneton : °6.64.92.89.69.
CONSTRUCTIONS IDEALE DEMEURE a sélectionné avec un partenaire foncier un terrain pour construire cette maison.
Référence : SD2319888_2
Terrain proposé par un partenaire foncier selon disponibilités et autorisation de publicité au prix de 77 000 €. Hors droit d'enregistrement et frais de notaire. Maison proposée, avec un contrat de construction de maison individuelle, dans le cadre de la loi du 19/12/1990, au prix de 162 000 € (Hors branchements et raccordements, papiers peints, peintures, revêtement de sol dans les chambres, qui sont chiffrés dans les travaux qui restent à charge du client. Tarif modifiable sans préavis). Étiquette énergie : A. Différents modèles disponibles pour ce terrain. Assurances et garanties du constructeur comprises (RC professionnelle, décennale, dommage ouvrage).

Les informations sur les risques auxquels ce bien est exposé sont disponibles sur le site Géorisques : www.georisques.gouv.fr


Prix
  • Prix total : 239 000 €
  • Prix du modèle de maison : 162 000 €
  • Prix du terrain : 77 000 €

Terrain
  • Surface : 1 033 m²

Maison
  • Surface : 107 m²
  • Pièces : 5
  • Chambres : 5

  • Être rappelé par un conseiller
  • Demander plus d’infos
  • Demande d'information
Mazières-de-Touraine (37130)

Programmes à proximité

Les Jardins de Musset
Les Jardins de Musset
Fondettes (37230)

Appartements de 3 à 5 pièces
Livraison 2ème trimestre 2026

APPARTEMENT TERRASSE/LIBERTE
APPARTEMENT TERRASSE/LIBERTE
La Riche (37520)

Appartement de 4 pièces
Livraison 3ème trimestre 2024

Les Dryades
Les Dryades
La Riche (37520)

Appartements de 3 à 4 pièces
Livraison 3ème trimestre 2025

EMBLEM
EMBLEM
La Riche (37520)

Appartements de 2 à 5 pièces
Livraison 1er trimestre 2026

LE DOMAINE DES LYS
LE DOMAINE DES LYS
Saint-Cyr-sur-Loire (37540)

Appartements de 1 à 4 pièces
Livraison 4ème trimestre 2027

La Saint-Cyrienne
La Saint-Cyrienne
Saint-Cyr-sur-Loire (37540)

Appartements de 2 à 4 pièces
Livraison 4ème trimestre 2026

Contacter CONSTRUCTIONS IDEALE DEMEURE pour recevoir plus d'informations

Remplissez le formulaire ci-dessous, vos informations sont transmises directement au constructeur qui vous contactera par email ou par téléphone afin de traiter votre demande. En savoir plus.

Voir tous nos programmes immobiliers neufs à Mazières-de-Touraine