Maison neuve, 136 m² - Martigues (13500)

688 900 €
Martigues (13500)

Proposée par AZUR & CONSTRUCTIONS – 5 pièces - 4 chambres - terrain 582 m²

AZUR & CONSTRUCTIONS
AZUR & CONSTRUCTIONS
  • Demande d'information
MAISON À CONSTRUIRE : ceci est une annonce d'une maison neuve à construire.
Carro : maison T5 (136 m²) en vente
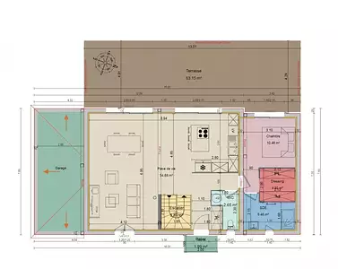
Emplacement privilégié - À Carro (13500), maison neuve en vente de 5 pièces, 2 niveaux, 136 m² de surface et 582 m² de terrain. Elle dispose de quatre chambres, d'une cuisine et de deux salles de bains.
Proche gare (La Couronne Carro), École Primaire Carro, boulangeries, épicerie et bureau de poste. Accès autoroute A55 et nationale N568 à 9 km. Mer Méditerranée à 1 km.
Le prix de vente de cette maison de 5 pièces est de 688 900 €.
.
Référence : AA2266595_2
Terrain proposé par un partenaire foncier selon disponibilités et autorisation de publicité au prix de 418 000 €. Hors droit d'enregistrement et frais de notaire. Maison proposée, avec un contrat de construction de maison individuelle, dans le cadre de la loi du 19/12/1990, au prix de 270 900 € (Hors branchements et raccordements, papiers peints, peintures, revêtement de sol dans les chambres, qui sont chiffrés dans les travaux qui restent à charge du client. Tarif modifiable sans préavis). Étiquette énergie : A. Différents modèles disponibles pour ce terrain. Assurances et garanties du constructeur comprises (RC professionnelle, décennale, dommage ouvrage).

Les informations sur les risques auxquels ce bien est exposé sont disponibles sur le site Géorisques : www.georisques.gouv.fr


Prix
  • Prix total : 688 900 €
  • Prix du modèle de maison : 270 900 €
  • Prix du terrain : 418 000 €

Terrain
  • Surface : 582 m²

Maison
  • Surface : 136 m²
  • Pièces : 5
  • Chambres : 4
  • Garage : 1

  • Être rappelé par un conseiller
  • Demander plus d’infos
  • Demande d'information
Martigues (13500)

Programmes à proximité

Le Domaine de Manon
Le Domaine de Manon
Martigues (13117)

Appartements de 4 pièces
Livraison 2ème trimestre 2025

Esprit Marina
Esprit Marina
Port-de-Bouc (13110)

Appartements de 2 à 4 pièces
Livraison 2ème trimestre 2028

LE DOMAINE CASTILLON
LE DOMAINE CASTILLON
Port-de-Bouc (13110)

Appartement de 2 pièces
Livraison 3ème trimestre 2025

RSS LES JARDINS D'ARCADIE
RSS LES JARDINS D'ARCADIE
Istres (13800)

Appartements de 1 à 3 pièces
Livraison 2ème trimestre 2027

Votre 2 pièces pour 679€/mois (1) avec Cogedim Access !
Votre 2 pièces pour 679€/mois (1) avec Cogedim Access !
Istres (13800)

Appartements de 2 à 4 pièces
Livraison 1er trimestre 2028

DOMAINE VERT PROVENCE
DOMAINE VERT PROVENCE
Marignane (13700)

Appartements de 2 à 4 pièces et maisons de 3 à 5 pièces
Livraison 4ème trimestre 2027

Contacter AZUR & CONSTRUCTIONS pour recevoir plus d'informations

Remplissez le formulaire ci-dessous, vos informations sont transmises directement au constructeur qui vous contactera par email ou par téléphone afin de traiter votre demande. En savoir plus.

Voir tous nos programmes immobiliers neufs à Martigues