Maison neuve, 78 m² - Les Sables-d'Olonne (85100)

451 500 €
Les Sables-d'Olonne (85100)

Proposée par MAISONS DE L'AVENIR – 4 pièces - 3 chambres - terrain 775 m²

MAISONS DE L'AVENIR
MAISONS DE L'AVENIR
(10 avis)
  • Demande d'information
MAISON À CONSTRUIRE : ceci est une annonce d'une maison neuve à construire.
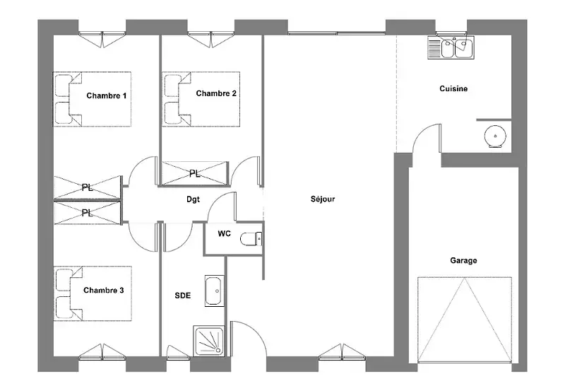
VENTE d'une maison de 4 pièces (78 m²) aux Sables-d'Olonne
Emplacement privilégié - À découvrir aux Sables-d'Olonne (85100) : maison neuve 4 pièces en vente, 78 m² sur 775 m² de terrain. Son intérieur comporte trois chambres, une cuisine et une salle de bains.
À dix minutes : gare (Les Sables-d'Olonne), écoles, crèche, bassin de natation, bibliothèque, port de plaisance, bowling, tennis, commerces, boulangeries, supermarchés, épicerie et bureau de poste. Océan Atlantique à 1 km.
Le prix de vente de cette maison de 4 pièces est de 451 500 €.
. Concrétisez vos projets immobiliers avec Maisons de l'Avenir Rezé.
Référence : PAB2356977_4
Maisons de l’Avenir, constructeur de maisons individuelles, propose en collaboration avec ses partenaires fonciers, une sélection de terrains constructibles, selon disponibilité, pour la construction de maisons neuves définies par le constructeur, avec un contrat de construction de maison individuelle, dans le cadre de la loi du 19/12/1990. Prix net, hors frais notariés, d'enregistrement et de publicité foncière
Terrain proposé au prix de : 280 000 €
Maison proposée au prix de : 171 500 €
Etiquette énergie : A. Assurances et garanties du constructeur (RC professionnelle, décennale, dommage ouvrage, Garantie de livraison à prix et délai convenu).


Les informations sur les risques auxquels ce bien est exposé sont disponibles sur le site Géorisques : www.georisques.gouv.fr


Prix
  • Prix total : 451 500 €
  • Prix du modèle de maison : 171 500 €
  • Prix du terrain : 280 000 €

Terrain
  • Surface : 775 m²

Maison
  • Surface : 78 m²
  • Pièces : 4
  • Chambres : 3
  • Garage : 1

  • Être rappelé par un conseiller
  • Demander plus d’infos
  • Demande d'information
Les Sables-d'Olonne (85100)

Maisons à proximité

Programmes à proximité

LE WINCH
LE WINCH
Olonne-sur-Mer (85340)

Appartements de 2 à 4 pièces et maisons de 4 pièces
Livraison 3ème trimestre 2027

Nova Mar
Nova Mar
Les Sables-d'Olonne (85100)

Appartements de 3 à 4 pièces
Livraison 2ème trimestre 2027

LE WINCH
LE WINCH
Olonne-sur-Mer (85340)

Appartements de 2 à 3 pièces et maison de 4 pièces
Livraison 4ème trimestre 2027

LES TERRASSES DU PAYRÉ
LES TERRASSES DU PAYRÉ
Talmont-Saint-Hilaire (85440)

Appartements de 1 à 4 pièces
Livraison 3ème trimestre 2027

Domaine de la Sauzaie
Domaine de la Sauzaie
Bretignolles-sur-Mer (85470)

Appartements de 2 à 3 pièces
Livraison 1er trimestre 2027

Terrasses Littoral
Terrasses Littoral
Bretignolles-sur-Mer (85470)

Appartements de 2 à 3 pièces
Livraison 3ème trimestre 2027

Contacter MAISONS DE L'AVENIR pour recevoir plus d'informations

Remplissez le formulaire ci-dessous, vos informations sont transmises directement au constructeur qui vous contactera par email ou par téléphone afin de traiter votre demande. En savoir plus.

Voir tous nos programmes immobiliers neufs aux Sables-d'Olonne