Maison neuve, 96 m² - Les Sables-d'Olonne (85100)

356 650 €
Les Sables-d'Olonne (85100)

Proposée par MAISONS NATUREA LA ROCHE SUR YON – 4 pièces - 3 chambres - terrain 421 m²

Maisons Naturea La Roche sur Yon
Maisons Naturea La Roche sur Yon
  • Demande d'information
MAISON À CONSTRUIRE : ceci est une annonce d'une maison neuve à construire.
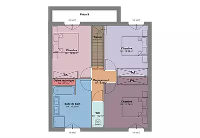
A proximité d'un centre commercial, profitez de cette belle opportunité avec ce terrain de 421 m², idéalement exposé et proche de toutes commodités, dans un écrin de verdure, au calme pour réaliser ensemble votre projet de construction Nous vous proposons cette maison traditionnelle à étage, composé sur la partie haute 3 belles chambres, une grande salle de bain avec douche, emplacement double vasques et baignoire, ainsi qu’un WC indépendant. Au rez de chaussée, vous disposerez d’un garage de plus de 15 m², avec un accès direct sur votre cellier et pièce de vie de 35 m² Contactez maison Naturéa pour une étude gratuite et personnalisée
Référence : VT-LA -2500255

Les informations sur les risques auxquels ce bien est exposé sont disponibles sur le site Géorisques : www.georisques.gouv.fr


Prix
  • Prix total : 356 650 €
  • Prix du modèle de maison : N.C.
  • Prix du terrain : N.C.

Terrain
  • Surface : 421 m²

Maison
  • Surface : 96 m²
  • Pièces : 4
  • Chambres : 3

  • Être rappelé par un conseiller
  • Demander plus d’infos
  • Demande d'information
Les Sables-d'Olonne (85100)

Maisons à proximité

Programmes à proximité

LE WINCH
LE WINCH
Olonne-sur-Mer (85340)

Appartements de 2 à 4 pièces et maisons de 4 pièces
Livraison 3ème trimestre 2027

Nova Mar
Nova Mar
Les Sables-d'Olonne (85100)

Appartements de 3 à 4 pièces
Livraison 2ème trimestre 2027

LE WINCH
LE WINCH
Olonne-sur-Mer (85340)

Appartements de 2 à 3 pièces et maison de 4 pièces
Livraison 4ème trimestre 2027

LES TERRASSES DU PAYRÉ
LES TERRASSES DU PAYRÉ
Talmont-Saint-Hilaire (85440)

Appartements de 1 à 4 pièces
Livraison 3ème trimestre 2027

Domaine de la Sauzaie
Domaine de la Sauzaie
Bretignolles-sur-Mer (85470)

Appartements de 2 à 3 pièces
Livraison 1er trimestre 2027

Terrasses Littoral
Terrasses Littoral
Bretignolles-sur-Mer (85470)

Appartements de 2 à 3 pièces
Livraison 3ème trimestre 2027

Contacter MAISONS NATUREA LA ROCHE SUR YON pour recevoir plus d'informations

Remplissez le formulaire ci-dessous, vos informations sont transmises directement au constructeur qui vous contactera par email ou par téléphone afin de traiter votre demande. En savoir plus.

Voir tous nos programmes immobiliers neufs aux Sables-d'Olonne