Maison neuve, 135 m² - Haute-Goulaine (44115)

462 000 €
Haute-Goulaine (44115)

Proposée par MAISONS DE L'AVENIR – 5 pièces - 4 chambres - terrain 440 m²

MAISONS DE L'AVENIR
MAISONS DE L'AVENIR
(137 avis)
  • Demande d'information
MAISON À CONSTRUIRE : ceci est une annonce d'une maison neuve à construire.
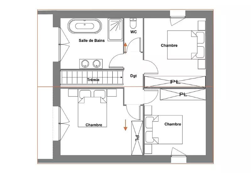
Haute-Goulaine : maison T5 (135 m²) à vendre
Proche de Nantes - À découvrir à Haute-Goulaine (44115) : maison neuve 5 pièces à vendre, 2 niveaux, 135 m² et 440 m² de terrain. Elle propose quatre chambres, une cuisine et deux salles de bains.
Cette maison de 5 pièces est à vendre pour la somme de 462 000 €.
. Maisons de l'Avenir Orvault vous accompagne dans tous vos projets immobiliers et dans toutes vos démarches.
Référence : TD2341829_3
Maisons de l’Avenir, constructeur de maisons individuelles, propose en collaboration avec ses partenaires fonciers, une sélection de terrains constructibles, selon disponibilité, pour la construction de maisons neuves définies par le constructeur, avec un contrat de construction de maison individuelle, dans le cadre de la loi du 19/12/1990. Prix net, hors frais notariés, d'enregistrement et de publicité foncière
Terrain proposé au prix de : 140 000 €
Maison proposée au prix de : 322 000 €
Etiquette énergie : A. Assurances et garanties du constructeur (RC professionnelle, décennale, dommage ouvrage, Garantie de livraison à prix et délai convenu).


Les informations sur les risques auxquels ce bien est exposé sont disponibles sur le site Géorisques : www.georisques.gouv.fr


Prix
  • Prix total : 462 000 €
  • Prix du modèle de maison : 322 000 €
  • Prix du terrain : 140 000 €

Terrain
  • Surface : 440 m²

Maison
  • Surface : 135 m²
  • Pièces : 5
  • Chambres : 4
  • Garage : 1

  • Être rappelé par un conseiller
  • Demander plus d’infos
  • Demande d'information
Haute-Goulaine (44115)

Programmes à proximité

Terrasses des Landes
Terrasses des Landes
Basse-Goulaine (44115)

Appartements de 2 à 5 pièces
Livraison 1er trimestre 2028

COUR MEDICIS - VERTOU
COUR MEDICIS - VERTOU
Vertou (44120)

Appartements de 2 à 4 pièces
Livraison 4ème trimestre 2028

Cour Enchantée
Cour Enchantée
Saint-Sébastien-sur-Loire (44230)

Appartements de 3 à 4 pièces
Livraison 4ème trimestre 2027

CHARLIZE
CHARLIZE
Saint-Sébastien-sur-Loire (44230)

Appartements de 2 à 5 pièces
Livraison 3ème trimestre 2026

Coeur de ville
Coeur de ville
Le Loroux-Bottereau (44430)

Appartements de 2 à 4 pièces
Livraison 2ème trimestre 2027

Prochainement à Rezé
Prochainement à Rezé
Rezé (44400)

Appartement
Livraison 1er trimestre 2028

Contacter MAISONS DE L'AVENIR pour recevoir plus d'informations

Remplissez le formulaire ci-dessous, vos informations sont transmises directement au constructeur qui vous contactera par email ou par téléphone afin de traiter votre demande. En savoir plus.

Voir tous nos programmes immobiliers neufs à Haute-Goulaine