Maison neuve, 94 m² - Chavanoz (38230)

277 200 €
Chavanoz (38230)

Proposée par MAISONS PUNCH SAINT PRIEST – 4 pièces - 3 chambres - terrain 277 m²

Maisons PUNCH Saint Priest
Maisons PUNCH Saint Priest
(57 avis)
  • Demande d'information
MAISON À CONSTRUIRE : ceci est une annonce d'une maison neuve à construire.
OFFRE EXCEPTIONNELLE: 10m² OFFERT + 1 PACK AU CHOIX
Produit rare à saisir au plus vite.
Situé sur la jolie commune de Blyes dans un cadre calme et arboré.
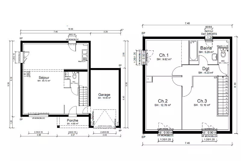
Sur une parcelle de 277m² entièrement viabilisée, Maisons punch vous propose une construction neuve à étage de 94m².
Cette maison est composée d’une partie jour avec une très belle pièce de vie de 45m² avec cuisine ouverte sur le séjour et un WC au rez de chaussé.
La pièce de nuit est répartie en 3 chambres dont 2 de 13m² et une de 10m² ainsi qu’une salle de bain avec baignoire ou douche au choix, un lavabo et un WC séparé.
Pour finir, la maison possède un garage de 18m² permettant de garer une voiture et d’avoir un espace de stockage au fond.
Plan entièrement personnalisables au bon vouloir des futurs acquéreurs.
Nombreuses prestations possibles
CONSTRUCTION, TERRAIN ET VRD INCLUS DANS LE PRIX.
Me contacter au plus vite pour plus d’informations sur le terrain.
Maison conforme à la RE 2020
Référence : 18436 MARTINET Sylvain
Terrain proposé et vendu par notre partenaire foncier selon disponibilités, le constructeur n’étant pas mandaté pour réaliser la vente du terrain. Prix terrain inclus : 99 900 € Frais de notaire non inclus : € Prix maison inclus : 177 300 € VRD non inclus : € Hors aménagements extérieurs (extensions, terrasse, piscine etc), papiers peints, peintures, moquettes dans les chambres (tarif en vigueur au 20 mai 2025, modifiable sans préavis, prix variables suivant les prestations souhaitées). Hors frais d’hypothèque. Différents modèles disponibles pour chaque terrain. Assurance RC professionnelle/décennale/dommage ouvrage groupe Aviva. Garantie de remboursement de l'acompte/livraison à prix et délai convenu CGI. Partenaire financier : à préciser Le numéro de TVA intracommunautaire : FR 14 498 627 272 00012 Contact : contact@maisons-punch.fr

Les informations sur les risques auxquels ce bien est exposé sont disponibles sur le site Géorisques : www.georisques.gouv.fr


Prix
  • Prix total : 277 200 €
  • Prix du modèle de maison : 177 300 €
  • Prix du terrain : 99 900 €

Terrain
  • Surface : 277 m²

Maison
  • Surface : 94 m²
  • Pièces : 4
  • Chambres : 3
  • Salle de bains : 1
  • Garage : 1
  • Surface garage : 18 m²

  • Être rappelé par un conseiller
  • Demander plus d’infos
  • Demande d'information
Chavanoz (38230)

Programmes à proximité

Le Clos du Tilleul
Le Clos du Tilleul
Pusignan (69330)

Appartements de 3 à 4 pièces
Livraison 2ème trimestre 2027

Résidence Evolis
Résidence Evolis
Béligneux (01360)

Appartements de 2 à 3 pièces
Livraison 2ème trimestre 2028

Résidence Tandem
Résidence Tandem
Meximieux (01800)

Appartements de 2 à 5 pièces
Livraison 4ème trimestre 2028

Aurea
Aurea
Genas (69740)

Appartements de 2 à 4 pièces

REFLETS D'ADELE
REFLETS D'ADELE
Genas (69740)

Appartements de 3 à 4 pièces
Livraison 3ème trimestre 2027

Les Villas Gambetta
Les Villas Gambetta
Genas (69740)

Appartements de 3 à 4 pièces
Livraison 4ème trimestre 2027

Contacter MAISONS PUNCH SAINT PRIEST pour recevoir plus d'informations

Remplissez le formulaire ci-dessous, vos informations sont transmises directement au constructeur qui vous contactera par email ou par téléphone afin de traiter votre demande. En savoir plus.

Voir tous nos programmes immobiliers neufs à Chavanoz