Maison neuve, 75 m² - Chauvé (44320)

230 800 €
Chauvé (44320)

Proposée par MAISONS DE L'AVENIR – 4 pièces - 3 chambres - terrain 359 m²

MAISONS DE L'AVENIR
MAISONS DE L'AVENIR
(10 avis)
  • Demande d'information
MAISON À CONSTRUIRE : ceci est une annonce d'une maison neuve à construire.
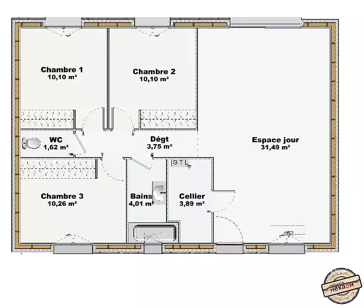
Maison T4 (75 m²) à vendre à Chauvé
Emplacement privilégié - À Chauvé (44320), maison neuve en vente de 4 pièces, 75 m² et 359 m² de terrain. Conçue de plain-pied, elle propose trois chambres, une cuisine et une salle de bains. Vue sur un espace vert.
À proximité : gares (La Bernerie-en-Retz et Pornic), écoles, tennis, boulangerie, supérette et boucherie-charcuterie. Océan Atlantique à 9 km. Saint-Nazaire à 22 km.
Le prix de vente de cette maison de 4 pièces est de 230 800 €.
.
Référence : PAB2333427_1
Maisons de l’Avenir, constructeur de maisons individuelles, propose en collaboration avec ses partenaires fonciers, une sélection de terrains constructibles, selon disponibilité, pour la construction de maisons neuves définies par le constructeur, avec un contrat de construction de maison individuelle, dans le cadre de la loi du 19/12/1990. Prix net, hors frais notariés, d'enregistrement et de publicité foncière
Terrain proposé au prix de : 77 000 €
Maison proposée au prix de : 153 800 €
Etiquette énergie : A. Assurances et garanties du constructeur (RC professionnelle, décennale, dommage ouvrage, Garantie de livraison à prix et délai convenu).


Les informations sur les risques auxquels ce bien est exposé sont disponibles sur le site Géorisques : www.georisques.gouv.fr


Prix
  • Prix total : 230 800 €
  • Prix du modèle de maison : 153 800 €
  • Prix du terrain : 77 000 €

Terrain
  • Surface : 359 m²

Maison
  • Surface : 75 m²
  • Pièces : 4
  • Chambres : 3

  • Être rappelé par un conseiller
  • Demander plus d’infos
  • Demande d'information
Chauvé (44320)

Programmes à proximité

IMPULSION
IMPULSION
Saint-Père-en-Retz (44320)

Appartements de 2 à 4 pièces
Livraison 4ème trimestre 2027

Villa Floria
Villa Floria
Pornic (44210)

Appartements de 3 pièces
Livraison 4ème trimestre 2027

Vert Emeraude
Vert Emeraude
Pornic (44210)

Appartements de 2 à 5 pièces
Livraison 4ème trimestre 2027

VILLA MARIA
VILLA MARIA
Pornic (44210)

Appartements de 2 à 4 pièces
Livraison 4ème trimestre 2026

Les Allées de la Ria
Les Allées de la Ria
Pornic (44210)

Appartements de 2 à 4 pièces
Livraison 2ème trimestre 2027

Le Domaine du Parc
Le Domaine du Parc
Pornic (44210)

Appartements de 2 à 5 pièces
Livraison 4ème trimestre 2027

Contacter MAISONS DE L'AVENIR pour recevoir plus d'informations

Remplissez le formulaire ci-dessous, vos informations sont transmises directement au constructeur qui vous contactera par email ou par téléphone afin de traiter votre demande. En savoir plus.

Voir tous nos programmes immobiliers neufs à Chauvé