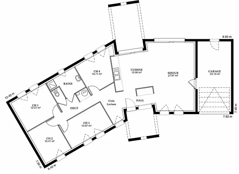
Maison neuve, 95 m² - Chaumes-en-Retz (44320)

343 790 €
Chaumes-en-Retz (44320)

Proposée par MAISONS PRIVAT AGENCE DE PORNIC (44) – 4 pièces - 3 chambres - terrain 1 137 m²

Maisons Privat Agence de Pornic (44)
Maisons Privat Agence de Pornic (44)
  • Demande d'information
MAISON À CONSTRUIRE : ceci est une annonce d'une maison neuve à construire.
Sur ce terrain, nous vous proposons cette maison neuve : Vertium, une magnifique demeure de style architecte.
Avec une surface de 95 m², cette maison contemporaine de plain-pied est idéale pour les familles à la recherche de confort et de modernité. Déclinable en plusieurs versions, le modèle Vertium s'adapte parfaitement aux différents modes de vie et compositions familiales.
Bâtie en deux ailes avec un porche de chaque côté, cette habitation évoque la forme du papillon grâce à son plan en V. Dans l’une des ailes se trouvent trois chambres et une salle d’eau, toutes disposées autour d’un dégagement. L’autre aile abrite un vaste séjour-cuisine avec hall d’entrée, et le garage intégré à son extrémité.
Les options les plus demandées par nos clients incluent une terrasse bétonnée, un plancher chauffant et des menuiseries en aluminium, offrant ainsi un confort optimal et une esthétique moderne.
Cette maison neuve est basse consommation et conforme à la RE2020, garantissant des performances énergétiques exceptionnelles et un respect de l’environnement.
Le constructeur, Maisons Privat, est un acteur centenaire reconnu pour la qualité de ses réalisations et bénéficie des meilleurs avis clients de la région.
Ne manquez pas cette opportunité unique de devenir propriétaire d’une maison Vertium, alliant design contemporain et fonctionnalité. Contactez-nous dès aujourd’hui pour plus d’informations et pour planifier une visite.
Référence : 65457

Les informations sur les risques auxquels ce bien est exposé sont disponibles sur le site Géorisques : www.georisques.gouv.fr


Prix
  • Prix total : 343 790 €
  • Prix du modèle de maison : 222 840 €
  • Prix du terrain : 120 950 €

Terrain
  • Surface : 1 137 m²

Maison
  • Surface : 95 m²
  • Pièces : 4
  • Chambres : 3

  • Être rappelé par un conseiller
  • Demander plus d’infos
  • Demande d'information
Chaumes-en-Retz (44320)

Programmes à proximité

IMPULSION
IMPULSION
Saint-Père-en-Retz (44320)

Appartements de 2 à 4 pièces
Livraison 4ème trimestre 2027

Prochainement à La Bernerie-en-Retz
Prochainement à La Bernerie-en-Retz
La Bernerie-en-Retz (44760)

Appartements de 2 à 5 pièces
Livraison 2ème trimestre 2028

VILLA MARIA
VILLA MARIA
Pornic (44210)

Appartements de 2 à 4 pièces
Livraison 4ème trimestre 2026

Les Allées de la Ria
Les Allées de la Ria
Pornic (44210)

Appartements de 2 à 4 pièces
Livraison 4ème trimestre 2027

Vert Emeraude
Vert Emeraude
Pornic (44210)

Appartements de 2 à 4 pièces
Livraison 2ème trimestre 2028

Le Domaine du Parc
Le Domaine du Parc
Pornic (44210)

Appartements de 2 à 5 pièces
Livraison 4ème trimestre 2027

Contacter MAISONS PRIVAT AGENCE DE PORNIC (44) pour recevoir plus d'informations

Remplissez le formulaire ci-dessous, vos informations sont transmises directement au constructeur qui vous contactera par email ou par téléphone afin de traiter votre demande. En savoir plus.

Voir tous nos programmes immobiliers neufs à Chaumes-en-Retz