Maison neuve, 85 m² - Chaumes-en-Retz (44320)

366 931 €
Chaumes-en-Retz (44320)

Proposée par MAISONS PRIVAT AGENCE DE PORNIC (44) – 4 pièces - 3 chambres - terrain 625 m²

Maisons Privat Agence de Pornic (44)
Maisons Privat Agence de Pornic (44)
  • Demande d'information
MAISON À CONSTRUIRE : ceci est une annonce d'une maison neuve à construire.
Sur ce terrain, nous vous proposons cette maison neuve : la Blainium, une maison résolument moderne et très singulière.
La Blainium, une maison de plain-pied contemporaine, propose une façade très stylée et originale avec ses jeux de toiture et de façades. Par ailleurs, ses grandes fenêtres laissent entrer généreusement la lumière extérieure.
La Blainium permet de vivre son rêve dans une maison unique.
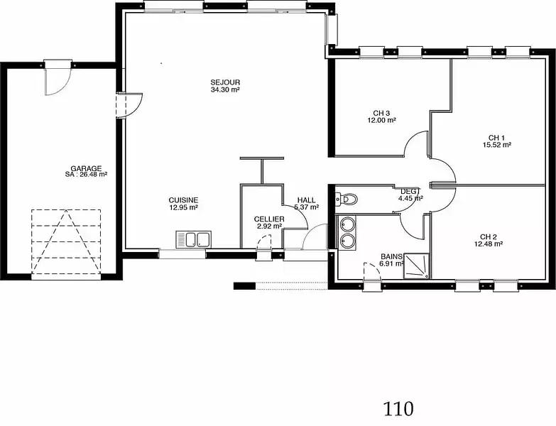
Cette demeure de 85 m² dispose de 3 chambres et de 4 pièces. En partie jour, vous disposerez d’un hall d'entrée qui donne sur un vaste séjour, une cuisine ouverte qui se prête à accueillir un grand îlot central, et un cellier. Le garage pratique d'accès est accolé. Parmi les caractéristiques principales, vous trouverez un toit plat, un garage accolé, un dressing et une suite parentale.
Les options les plus demandées par nos clients sont également disponibles : menuiseries en aluminium, enduit bi-ton, plancher chauffant et double garage.
Cette maison neuve est basse consommation et conforme à la RE2020, vous garantissant ainsi des économies d'énergie et un confort optimal.
Le constructeur de cette maison, Maisons Privat, est un constructeur centenaire avec les meilleurs avis clients de la région. Faites confiance à notre expertise pour réaliser votre rêve de posséder une maison neuve exceptionnelle.
Référence : 61476

Les informations sur les risques auxquels ce bien est exposé sont disponibles sur le site Géorisques : www.georisques.gouv.fr


Prix
  • Prix total : 366 931 €
  • Prix du modèle de maison : 171 931 €
  • Prix du terrain : 195 000 €

Terrain
  • Surface : 625 m²

Maison
  • Surface : 85 m²
  • Pièces : 4
  • Chambres : 3

  • Être rappelé par un conseiller
  • Demander plus d’infos
  • Demande d'information
Chaumes-en-Retz (44320)

Programmes à proximité

IMPULSION
IMPULSION
Saint-Père-en-Retz (44320)

Appartements de 2 à 4 pièces
Livraison 4ème trimestre 2027

Prochainement à La Bernerie-en-Retz
Prochainement à La Bernerie-en-Retz
La Bernerie-en-Retz (44760)

Appartements de 2 à 5 pièces
Livraison 2ème trimestre 2028

VILLA MARIA
VILLA MARIA
Pornic (44210)

Appartements de 2 à 4 pièces
Livraison 4ème trimestre 2026

Les Allées de la Ria
Les Allées de la Ria
Pornic (44210)

Appartements de 2 à 4 pièces
Livraison 4ème trimestre 2027

Vert Emeraude
Vert Emeraude
Pornic (44210)

Appartements de 2 à 4 pièces
Livraison 2ème trimestre 2028

La Source
La Source
Pornic (44210)

Appartements de 1 à 4 pièces
Livraison 2ème trimestre 2026

Contacter MAISONS PRIVAT AGENCE DE PORNIC (44) pour recevoir plus d'informations

Remplissez le formulaire ci-dessous, vos informations sont transmises directement au constructeur qui vous contactera par email ou par téléphone afin de traiter votre demande. En savoir plus.

Voir tous nos programmes immobiliers neufs à Chaumes-en-Retz