Maison neuve, 114 m² - Chanceaux-sur-Choisille (37390)

289 000 €
Chanceaux-sur-Choisille (37390)

Proposée par CONSTRUCTIONS IDEALE DEMEURE – 5 pièces - 4 chambres - terrain 370 m²

CONSTRUCTIONS IDEALE DEMEURE
CONSTRUCTIONS IDEALE DEMEURE
  • Demande d'information
MAISON À CONSTRUIRE : ceci est une annonce d'une maison neuve à construire.
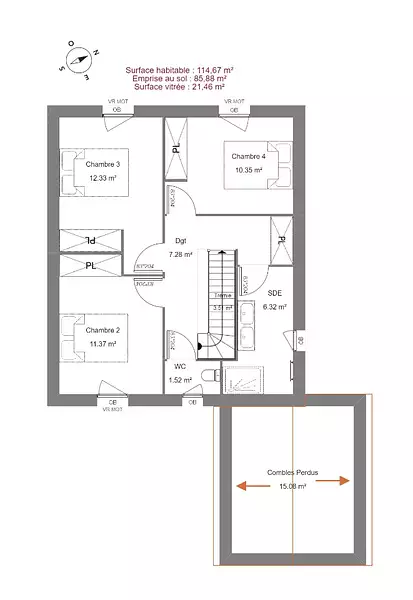
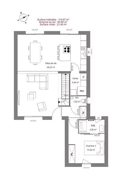
Magnifique maison de 115m² de surface habitable avec un bel espace séjour, salon cuisine ouverte.
Au RDC vous disposerez d'une suite parentale et à l'étage de 3 belles chambres avec une grande salle de bain.
Cette maison correspond aux normes des bâtiments de France et s'adaptera facilement au choix de votre terrain.
Nous réalisons votre projet sur-mesure. Contactez-moi Julie Texier au °7.57.82.55.62, je serai ravie de vous accompagner tout au long de votre projet.
CONSTRUCTIONS IDEALE DEMEURE a sélectionné avec un partenaire foncier un terrain pour construire cette maison.
Référence : JT2281312_2
Terrain proposé par un partenaire foncier selon disponibilités et autorisation de publicité au prix de 89 000 €. Hors droit d'enregistrement et frais de notaire. Maison proposée, avec un contrat de construction de maison individuelle, dans le cadre de la loi du 19/12/1990, au prix de 200 000 € (Hors branchements et raccordements, papiers peints, peintures, revêtement de sol dans les chambres, qui sont chiffrés dans les travaux qui restent à charge du client. Tarif modifiable sans préavis). Étiquette énergie : A. Différents modèles disponibles pour ce terrain. Assurances et garanties du constructeur comprises (RC professionnelle, décennale, dommage ouvrage).

Les informations sur les risques auxquels ce bien est exposé sont disponibles sur le site Géorisques : www.georisques.gouv.fr


Prix
  • Prix total : 289 000 €
  • Prix du modèle de maison : 200 000 €
  • Prix du terrain : 89 000 €

Terrain
  • Surface : 370 m²

Maison
  • Surface : 114 m²
  • Pièces : 5
  • Chambres : 4

  • Être rappelé par un conseiller
  • Demander plus d’infos
  • Demande d'information
Chanceaux-sur-Choisille (37390)

Programmes à proximité

AD'AILE - TOURS
AD'AILE - TOURS
Tours (37100)

Appartement de 3 pièces
Livraison 4ème trimestre 2027

URBAN LODGES
URBAN LODGES
Tours (37100)

Appartements de 2 à 3 pièces
Livraison 4ème trimestre 2026

LES JARDINS DU LUXEMBOURG
LES JARDINS DU LUXEMBOURG
Tours (37100)

Appartements de 2 à 4 pièces
Livraison 3ème trimestre 2027

L'ECRIVAIN
L'ECRIVAIN
Tours (37100)

Appartements de 2 à 4 pièces
Livraison 1er trimestre 2027

TARGA
TARGA
Tours (37100)

Appartements de 2 à 4 pièces
Livraison 4ème trimestre 2026

DOMAINE SAINT MARTIN TR2 - TOURS
DOMAINE SAINT MARTIN TR2 - TOURS
Tours (37100)

Appartements de 4 pièces
Livraison 2ème trimestre 2025

Contacter CONSTRUCTIONS IDEALE DEMEURE pour recevoir plus d'informations

Remplissez le formulaire ci-dessous, vos informations sont transmises directement au constructeur qui vous contactera par email ou par téléphone afin de traiter votre demande. En savoir plus.

Voir tous nos programmes immobiliers neufs à Chanceaux-sur-Choisille