Maison neuve, 80 m² - Champtoceaux (49270)

236 500 €
Champtoceaux (49270)

Proposée par MAISONS BERNARD JAMBERT – 5 pièces - 3 chambres - terrain 400 m²

MAISONS BERNARD JAMBERT
MAISONS BERNARD JAMBERT
  • Demande d'information
MAISON À CONSTRUIRE : ceci est une annonce d'une maison neuve à construire.
VENTE : maison T5 (80 m²) à Champtoceaux
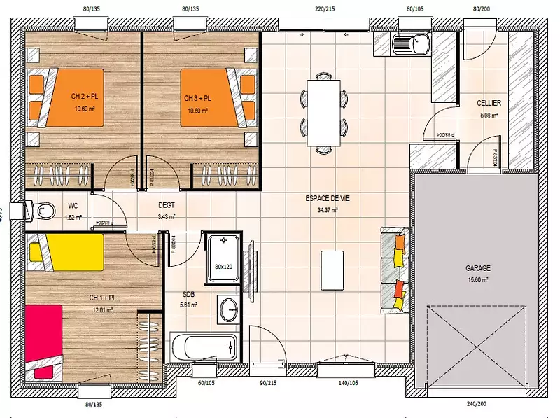
Idéalement située - À Champtoceaux (49270), maison neuve en vente de 5 pièces, 80 m² sur 400 m² de terrain. Son intérieur se divise en trois chambres, une cuisine et une salle de bains.
À proximité : gares (Oudon, Le Cellier et Ancenis), établissements scolaires, bassin de natation, boulangeries, commerce, supermarché et boucherie-charcuterie. Accès autoroute A11 à 9 km. Nantes à 25 km.
Le prix de vente de cette maison de 5 pièces est de 236 500 €.
Contactez Mathieu JANNEAU (tél : 06-01-35-24-98) pour toute question sur la maison, sur les modalités de vente ou sur les démarches à suivre. Donnez vie à vos projets immobiliers avec Maisons Bernard Jambert Angers.
Référence : MJ2416440_3
Terrain proposé par un partenaire foncier selon disponibilités et autorisation de publicité au prix de 72 000 €. Hors droit d'enregistrement et frais de notaire. Terrain + Maison proposés au prix de 164 500 € (Hors branchements et raccordements, papiers peints, peintures, revêtement de sol dans les chambres. Tarif modifiable sans préavis). Etiquette énergie : A. Différents modèles disponibles pour ce terrain. Assurances et garanties du constructeur (RC professionnelle, décennale, dommage ouvrage, garantie de remboursement de l'acompte, livraison à prix et délai convenu) : https://www.maisons-bernard-jambert.com/informations-legales/.

Les informations sur les risques auxquels ce bien est exposé sont disponibles sur le site Géorisques : www.georisques.gouv.fr


Prix
  • Prix total : 236 500 €
  • Prix du modèle de maison : 164 500 €
  • Prix du terrain : 72 000 €

Terrain
  • Surface : 400 m²

Maison
  • Surface : 80 m²
  • Pièces : 5
  • Chambres : 3
  • Garage : 1

  • Être rappelé par un conseiller
  • Demander plus d’infos
  • Demande d'information
Champtoceaux (49270)

Programmes à proximité

Le Clos de la Charmoise
Le Clos de la Charmoise
Ligné (44850)

Appartements de 1 à 4 pièces
Livraison 4ème trimestre 2027

Coeur de ville
Coeur de ville
Le Loroux-Bottereau (44430)

Appartements de 2 à 4 pièces
Livraison 2ème trimestre 2027

COEUR HAUTE-GOULAINE
COEUR HAUTE-GOULAINE
Haute-Goulaine (44115)

Appartements de 1 à 4 pièces
Livraison 3ème trimestre 2028

Terrasses des Landes
Terrasses des Landes
Basse-Goulaine (44115)

Appartements de 2 à 5 pièces
Livraison 1er trimestre 2028

BOBOURG
BOBOURG
La Chapelle-sur-Erdre (44240)

Appartements de 3 à 4 pièces
Livraison 4ème trimestre 2025

BOREA
BOREA
La Chapelle-sur-Erdre (44240)

Appartements de 1 à 5 pièces
Livraison 4ème trimestre 2027

Contacter MAISONS BERNARD JAMBERT pour recevoir plus d'informations

Remplissez le formulaire ci-dessous, vos informations sont transmises directement au constructeur qui vous contactera par email ou par téléphone afin de traiter votre demande. En savoir plus.

Voir tous nos programmes immobiliers neufs à Champtoceaux