Maison neuve, 110 m² - Champigny-sur-Marne (94500)

499 000 €
Champigny-sur-Marne (94500)

Proposée par MAISONS SÉSAME - AGENCE D'ORMESSON SUR MARNE – 5 pièces - 4 chambres - terrain 300 m²

Maisons Sésame - Agence d'Ormesson sur Marne
Maisons Sésame - Agence d'Ormesson sur Marne
(131 avis)
  • Demande d'information
MAISON À CONSTRUIRE : ceci est une annonce d'une maison neuve à construire.
.
Obtenez plus d'informations en me contactant sur mon portable ou sur mon Instagram: Coline_des_maisonssesame.
MAISONS SÉSAME vous propose les prestations suivantes :
- Plans des maisons modulables et adaptables selon vos besoins et les spécificités de votre terrain
- Large choix de systèmes de chauffage performants et économes en énergie
- Sélection de matériaux de qualité garantissant confort et durabilité
- Accompagnement sur-mesure pour la recherche et l’acquisition de votre terrain
- Construction conforme à la réglementation en vigueur et à la norme RE2020
- Maisons certifiées NF HABITAT, gage de qualité, de performance et de confort
Demandez une étude gratuite et personnalisée de votre projet de construction !
Étude gratuite de votre projet de construction !
De nombreux terrains disponibles dans votre secteur.
Informations légales :
Maisons Sésame, constructeur de maisons individuelles, propose une sélection de terrains en collaboration avec ses partenaires fonciers, sous réserve de disponibilité. Il n’agit pas en tant que mandataire pour la vente de ces terrains.
Nos maisons, certifiées NF Habitat et conformes à la réglementation thermique en vigueur, vous garantissent un habitat durable et économe en énergie. Découvrez un large choix de modèles adaptés aux besoins de toute la famille.
Informations tarifaires :
Les prix indiqués sont donnés à titre indicatif et n’incluent pas les frais annexes (frais de notaire, raccordements, etc.).
Les visuels et prix présentés sont non contractuels. Pour plus de détails, consultez nos conditions en agence.
N° ORIAS IOBSP 13007108 – RCS Versailles 388 867 426.
Les informations sur les risques auxquels ce bien est exposé sont disponibles sur le site Géorisques : www.georisques.gouv.fr
Cette annonce a été créée et diffusée avec le logiciel VITAHOME.


Prix
  • Prix total : 499 000 €
  • Prix du modèle de maison : N.C.
  • Prix du terrain : 299 000 €

Terrain
  • Surface : 300 m²

Maison
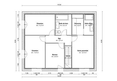
  • Surface : 110 m²
  • Pièces : 5
  • Chambres : 4

  • Être rappelé par un conseiller
  • Demander plus d’infos
  • Demande d'information
Champigny-sur-Marne (94500)

Programmes à proximité

Résidence 1906
Résidence 1906
Champigny-sur-Marne (94500)

Appartements de 1 à 4 pièces
Livraison 4ème trimestre 2027

Le Dôme de Verdun
Le Dôme de Verdun
Champigny-sur-Marne (94500)

Appartements de 2 à 5 pièces
Livraison 4ème trimestre 2027

Duo Verde
Duo Verde
Champigny-sur-Marne (94500)

Appartements de 2 à 4 pièces
Livraison 4ème trimestre 2027

Le Paris de L'Elégance
Le Paris de L'Elégance
Champigny-sur-Marne (94500)

Appartements de 2 à 5 pièces
Livraison 1er trimestre 2027

ELEGANCIA
ELEGANCIA
Champigny-sur-Marne (94500)

Appartements de 3 à 5 pièces
Livraison 3ème trimestre 2025

Villa du Golf
Villa du Golf
Champigny-sur-Marne (94500)

Appartement de 1 pièce
Livraison 3ème trimestre 2025

Contacter MAISONS SÉSAME - AGENCE D'ORMESSON SUR MARNE pour recevoir plus d'informations

Remplissez le formulaire ci-dessous, vos informations sont transmises directement au constructeur qui vous contactera par email ou par téléphone afin de traiter votre demande. En savoir plus.

Voir tous nos programmes immobiliers neufs à Champigny-sur-Marne