Maison neuve, 120 m² - Beaujeu (69430)
270 000 €
Beaujeu (69430)
Proposée par DEMEURES CALADOISES MÂCON – 5 pièces - 4 chambres - terrain 1 263 m²
|
|
| Demeures Caladoises Mâcon |
| (66 avis) |
- Demande d'information
- Prendre rendez-vous
MAISON À CONSTRUIRE : ceci est une annonce d'une maison neuve à construire.
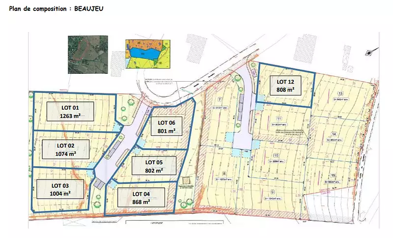
Situé à BEAUJEU, ce terrain de 1263 m2 constructible fait partie d'un lotissement de 15 lots. Dans un environnement calme, vous pourrez profiter pleinement d'un extérieur paisible, d'un accès rapide à toutes les commodités. (Commerce, école,… )
Sur ce terrain constructible, Demeures Caladoises vous propose de faire construire cette magnifique maison de 120 m2. Nombreuses prestations haut de gamme incluses pour cette exemple de maison. Ce projet est entièrement personnalisable selon vos goûts et votre budget. Pour en savoir plus appelez-nous, toutes nos études sont gratuites et sans engagement.
3 autres lots disponibles de 808 à 1074 m2
Référence : MP-00422
Terrain proposé et vendu par notre partenaire foncier selon disponibilités, le constructeur n'étant pas mandaté pour réaliser la vente du terrain.
Prix terrain inclus : 50 000 € Frais de notaire non inclus : €
Prix maison inclus : 220 000 € VRD non inclus : € Hors aménagements extérieurs (extensions, terrasse, piscine etc), papiers peints, peintures, moquettes dans les chambres (tarif en vigueur au 20 mai 2025, modifiable sans préavis, prix variables suivant les prestations souhaitées). Hors frais d’hypothèque.
Différents modèles disponibles pour chaque terrain.
Assurance RC professionnelle/décennale/dommage ouvrage groupe Aviva.
Garantie de remboursement de l'acompte/livraison à prix et délai convenu CGI.
Contact : contact@demeures-caladoises.com
N° TVA Intracommunautaire : FR 96 329 833 396 00123
Tarif en vigueur au 20 mai 2025. Les informations sur les risques auxquels ce bien est exposé sont disponibles sur le site Géorisques : www.georisques.gouv.fr
Sur ce terrain constructible, Demeures Caladoises vous propose de faire construire cette magnifique maison de 120 m2. Nombreuses prestations haut de gamme incluses pour cette exemple de maison. Ce projet est entièrement personnalisable selon vos goûts et votre budget. Pour en savoir plus appelez-nous, toutes nos études sont gratuites et sans engagement.
3 autres lots disponibles de 808 à 1074 m2
Référence : MP-00422
Terrain proposé et vendu par notre partenaire foncier selon disponibilités, le constructeur n'étant pas mandaté pour réaliser la vente du terrain.
Prix terrain inclus : 50 000 € Frais de notaire non inclus : €
Prix maison inclus : 220 000 € VRD non inclus : € Hors aménagements extérieurs (extensions, terrasse, piscine etc), papiers peints, peintures, moquettes dans les chambres (tarif en vigueur au 20 mai 2025, modifiable sans préavis, prix variables suivant les prestations souhaitées). Hors frais d’hypothèque.
Différents modèles disponibles pour chaque terrain.
Assurance RC professionnelle/décennale/dommage ouvrage groupe Aviva.
Garantie de remboursement de l'acompte/livraison à prix et délai convenu CGI.
Contact : contact@demeures-caladoises.com
N° TVA Intracommunautaire : FR 96 329 833 396 00123
Tarif en vigueur au 20 mai 2025. Les informations sur les risques auxquels ce bien est exposé sont disponibles sur le site Géorisques : www.georisques.gouv.fr
- Prix
-
- Prix total : 270 000 €
- Prix du modèle de maison : 220 000 €
- Prix du terrain : 50 000 €
- Terrain
-
- Surface : 1 263 m²
- Maison
-
- Surface : 120 m²
- Pièces : 5
- Chambres : 4
- Salle de bains : 1
- Garage : 1
- Être rappelé par un conseiller
- Demander plus d’infos
- Demande d'information
Beaujeu (69430)
Maisons à proximité
Maison neuve, 94 m²
Beaujeu (69430)
Beaujeu (69430)
Maison de 4 pièces
Maison neuve, 94 m²
Beaujeu (69430)
Beaujeu (69430)
Maison de 4 pièces
Maison neuve, 92 m²
Beaujeu (69430)
Beaujeu (69430)
Maison de 4 pièces
Maison neuve, 98 m²
Beaujeu (69430)
Beaujeu (69430)
Maison de 5 pièces
Maison neuve, 120 m²
Lantignié (69430)
Lantignié (69430)
Maison de 5 pièces
Maison neuve, 79 m²
Lantignié (69430)
Lantignié (69430)
Maison de 4 pièces
Programmes à proximité
Clos VITIS
Saint-Etienne-des-Oullières (69460)
Saint-Etienne-des-Oullières (69460)
Appartements de 2 à 5 pièces
Central Parc
Belleville-en-Beaujolais (69220)
Belleville-en-Beaujolais (69220)
Appartements de 2 à 4 pièces
Livraison 4ème trimestre 2027
TERRE DE SIENNE
Belleville-en-Beaujolais (69220)
Belleville-en-Beaujolais (69220)
Appartements de 4 pièces
Livraison 4ème trimestre 2025
FAUBOURG REPUBLIQUE
Belleville-en-Beaujolais (69220)
Belleville-en-Beaujolais (69220)
Appartement
Livraison 3ème trimestre 2024
Les Allées Fleurie
Saint-Georges-de-Reneins (69830)
Saint-Georges-de-Reneins (69830)
Appartements de 2 à 4 pièces
Livraison 4ème trimestre 2027
Prélude
Villefranche-sur-Saône (69400)
Villefranche-sur-Saône (69400)
Appartements de 2 à 5 pièces
Livraison 2ème trimestre 2027
Contacter DEMEURES CALADOISES MÂCON pour recevoir plus d'informations
Remplissez le formulaire ci-dessous, vos informations sont transmises directement au constructeur qui vous contactera par email ou par téléphone afin de traiter votre demande. En savoir plus.