Maison neuve, 98 m² - Beaujeu (69430)
260 000 €
Beaujeu (69430)
Proposée par MAISONS PUNCH VILLEFRANCHE – 5 pièces - 4 chambres - terrain 1 074 m²
|
|
| Maisons Punch Villefranche |
| (837 avis) |
- Demande d'information
- Prendre rendez-vous
MAISON À CONSTRUIRE : ceci est une annonce d'une maison neuve à construire.
Profitez du prêt à taux O% et de nos OFFRES "ANNIVERSAIRE 50 ANS" pour réaliser votre rêve !
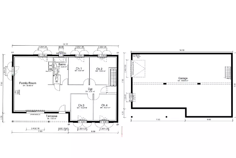
Devenez propriétaire de cette magnifique maison de 98 m² - 4 chambres - un garage en sous sol de 109 m² à Beaujeu !
DERNIER TERRAIN DISPONIBLE !
Au rez-de-chaussée, vous serez séduit par un sous sol complet de 109 m².
L'étage bénéficie d'une grande pièce de vie ouverte de 45 m², lumineuse grâce à sa grande baie vitrée. L’espace nuit comprend 4 chambres de 11 m², une salle de bain avec baignoire/douche au choix et un wc indépendant.
Ce que je vous propose :
-> Maisons sur-mesure, choisissez la disposition, les matériaux, les finitions…
-> Des prix compétitifs et un financement adapté à votre budget
-> Un accompagnement tout au long de votre projet (de l’achat du terrain à la remise des clés)
-> Une construction rapide dans le respect des délais
En ce moment profitez de notre offre anniversaire (valable jusqu'au 31/12/2025) :
10 M² OFFERT + UNE CUISINE TOUTE EQUIPEE + PLACARDS, PARQUETS DANS TOUTES LES CHAMBRES, PEINTURE ET FAÏENCE OFFERTS !
Pour plus de renseignements :
-> Contactez directement votre commerciale CAROLINE GUILLEMAUD ou répondez à cette annonce
Référence : 3967 SIQUET CAROLINE
Terrain proposé et vendu par notre partenaire foncier selon disponibilités, le constructeur n’étant pas mandaté pour réaliser la vente du terrain. Prix terrain inclus : 55 000 € Frais de notaire non inclus : € Prix maison inclus : 205 000 € VRD non inclus : € Hors aménagements extérieurs (extensions, terrasse, piscine etc), papiers peints, peintures, moquettes dans les chambres (tarif en vigueur au 20 mai 2025, modifiable sans préavis, prix variables suivant les prestations souhaitées). Hors frais d’hypothèque. Différents modèles disponibles pour chaque terrain. Assurance RC professionnelle/décennale/dommage ouvrage groupe Aviva. Garantie de remboursement de l'acompte/livraison à prix et délai convenu CGI. Partenaire financier : à préciser Le numéro de TVA intracommunautaire : FR 14 498 627 272 00012 Contact : contact@maisons-punch.fr
Les informations sur les risques auxquels ce bien est exposé sont disponibles sur le site Géorisques : www.georisques.gouv.fr
Devenez propriétaire de cette magnifique maison de 98 m² - 4 chambres - un garage en sous sol de 109 m² à Beaujeu !
DERNIER TERRAIN DISPONIBLE !
Au rez-de-chaussée, vous serez séduit par un sous sol complet de 109 m².
L'étage bénéficie d'une grande pièce de vie ouverte de 45 m², lumineuse grâce à sa grande baie vitrée. L’espace nuit comprend 4 chambres de 11 m², une salle de bain avec baignoire/douche au choix et un wc indépendant.
Ce que je vous propose :
-> Maisons sur-mesure, choisissez la disposition, les matériaux, les finitions…
-> Des prix compétitifs et un financement adapté à votre budget
-> Un accompagnement tout au long de votre projet (de l’achat du terrain à la remise des clés)
-> Une construction rapide dans le respect des délais
En ce moment profitez de notre offre anniversaire (valable jusqu'au 31/12/2025) :
10 M² OFFERT + UNE CUISINE TOUTE EQUIPEE + PLACARDS, PARQUETS DANS TOUTES LES CHAMBRES, PEINTURE ET FAÏENCE OFFERTS !
Pour plus de renseignements :
-> Contactez directement votre commerciale CAROLINE GUILLEMAUD ou répondez à cette annonce
Référence : 3967 SIQUET CAROLINE
Terrain proposé et vendu par notre partenaire foncier selon disponibilités, le constructeur n’étant pas mandaté pour réaliser la vente du terrain. Prix terrain inclus : 55 000 € Frais de notaire non inclus : € Prix maison inclus : 205 000 € VRD non inclus : € Hors aménagements extérieurs (extensions, terrasse, piscine etc), papiers peints, peintures, moquettes dans les chambres (tarif en vigueur au 20 mai 2025, modifiable sans préavis, prix variables suivant les prestations souhaitées). Hors frais d’hypothèque. Différents modèles disponibles pour chaque terrain. Assurance RC professionnelle/décennale/dommage ouvrage groupe Aviva. Garantie de remboursement de l'acompte/livraison à prix et délai convenu CGI. Partenaire financier : à préciser Le numéro de TVA intracommunautaire : FR 14 498 627 272 00012 Contact : contact@maisons-punch.fr
Les informations sur les risques auxquels ce bien est exposé sont disponibles sur le site Géorisques : www.georisques.gouv.fr
- Prix
-
- Prix total : 260 000 €
- Prix du modèle de maison : 205 000 €
- Prix du terrain : 55 000 €
- Terrain
-
- Surface : 1 074 m²
- Maison
-
- Surface : 98 m²
- Pièces : 5
- Chambres : 4
- Salle de bains : 1
- Garage : 1
- Surface garage : 109 m²
- Être rappelé par un conseiller
- Demander plus d’infos
- Demande d'information
Beaujeu (69430)
Maisons à proximité
Maison neuve, 120 m²
Beaujeu (69430)
Beaujeu (69430)
Maison de 5 pièces
Maison neuve, 92 m²
Beaujeu (69430)
Beaujeu (69430)
Maison de 4 pièces
Maison neuve, 94 m²
Beaujeu (69430)
Beaujeu (69430)
Maison de 4 pièces
Maison neuve, 94 m²
Beaujeu (69430)
Beaujeu (69430)
Maison de 4 pièces
Maison neuve, 120 m²
Lantignié (69430)
Lantignié (69430)
Maison de 5 pièces
Maison neuve, 90 m²
Lantignié (69430)
Lantignié (69430)
Maison de 4 pièces
Programmes à proximité
Clos VITIS
Saint-Etienne-des-Oullières (69460)
Saint-Etienne-des-Oullières (69460)
Appartements de 2 à 5 pièces
Central Parc
Belleville-en-Beaujolais (69220)
Belleville-en-Beaujolais (69220)
Appartements de 2 à 4 pièces
Livraison 4ème trimestre 2027
TERRE DE SIENNE
Belleville-en-Beaujolais (69220)
Belleville-en-Beaujolais (69220)
Appartements de 4 pièces
Livraison 4ème trimestre 2025
FAUBOURG REPUBLIQUE
Belleville-en-Beaujolais (69220)
Belleville-en-Beaujolais (69220)
Appartement
Livraison 3ème trimestre 2024
Les Allées Fleurie
Saint-Georges-de-Reneins (69830)
Saint-Georges-de-Reneins (69830)
Appartements de 2 à 4 pièces
Livraison 4ème trimestre 2027
Prélude
Villefranche-sur-Saône (69400)
Villefranche-sur-Saône (69400)
Appartements de 2 à 5 pièces
Livraison 2ème trimestre 2027
Contacter MAISONS PUNCH VILLEFRANCHE pour recevoir plus d'informations
Remplissez le formulaire ci-dessous, vos informations sont transmises directement au constructeur qui vous contactera par email ou par téléphone afin de traiter votre demande. En savoir plus.