Maison neuve, 80 m² - Artannes-sur-Indre (37260)

237 000 €
Artannes-sur-Indre (37260)

Proposée par CONSTRUCTIONS IDEALE DEMEURE – 4 pièces - 3 chambres - terrain 373 m²

CONSTRUCTIONS IDEALE DEMEURE
CONSTRUCTIONS IDEALE DEMEURE
  • Demande d'information
MAISON À CONSTRUIRE : ceci est une annonce d'une maison neuve à construire.
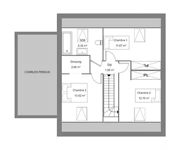
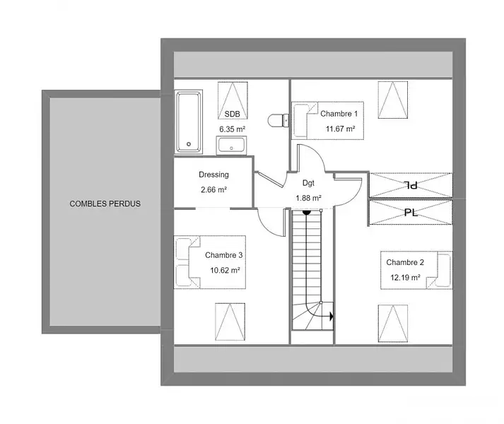
Belle maison de m² avec des combles aménagés.
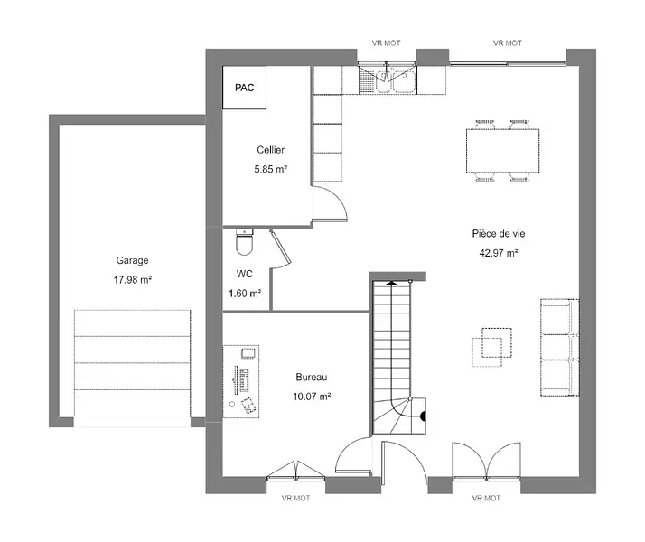
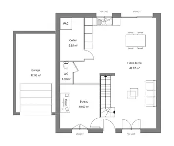
Cette maison vous offre une grande pièce à vivre de 43 m² et 3 belles chambres dont une chambre avec un dressing.
Vous disposerez également d'un bureau au RDC pouvant se transformer en chambre.
Un garage et un cellier sont également prévus pour un maximum de confort.
Côté prestations : Pompe à chaleur avec plancher chauffant, Menuiseries RAL 7016
CONSTRUCTIONS IDEALE DEMEURE a sélectionné avec un partenaire foncier un terrain pour construire cette maison.
Je reste disponible pour toutes demandes de renseignements, n'hésitez pas me contacter : Stéphane Digneton : O6.64.92.89.69.
Référence : SD2341956_2
Terrain proposé par un partenaire foncier selon disponibilités et autorisation de publicité au prix de 62 500 €. Hors droit d'enregistrement et frais de notaire. Terrain + Maison proposés au prix de 237 000 € (Hors branchements et raccordements, papiers peints, peintures, revêtement de sol dans les chambres. Tarif modifiable sans préavis). Etiquette énergie : A. Différents modèles disponibles pour ce terrain. Assurances et garanties du constructeur (RC professionnelle, décennale, dommage ouvrage, garantie de remboursement de l'acompte, livraison à prix et délai convenu) :

Les informations sur les risques auxquels ce bien est exposé sont disponibles sur le site Géorisques : www.georisques.gouv.fr


Prix
  • Prix total : 237 000 €
  • Prix du modèle de maison : 174 500 €
  • Prix du terrain : 62 500 €

Terrain
  • Surface : 373 m²

Maison
  • Surface : 80 m²
  • Pièces : 4
  • Chambres : 3
  • Garage : 1

  • Être rappelé par un conseiller
  • Demander plus d’infos
  • Demande d'information
Artannes-sur-Indre (37260)

Programmes à proximité

CALICIA
CALICIA
Sorigny (37250)

Appartements de 1 à 3 pièces
Livraison 1er trimestre 2027

Verdéa
Verdéa
Joué-lès-Tours (37300)

Appartements de 1 à 2 pièces
Livraison 2ème trimestre 2027

Coeur de Ville
Coeur de Ville
Joué-lès-Tours (37300)

Appartements de 2 à 5 pièces
Livraison 4ème trimestre 2026

EMBLEM
EMBLEM
La Riche (37520)

Appartements de 2 à 5 pièces
Livraison 1er trimestre 2026

Les Jardins de Musset
Les Jardins de Musset
Fondettes (37230)

Appartements de 2 à 5 pièces
Livraison 2ème trimestre 2026

Investir en nue-propriété à Tours : choix gagnant !
Investir en nue-propriété à Tours : choix gagnant !
Tours (37000)

Appartements de 1 pièce
Livraison 3ème trimestre 2026

Contacter CONSTRUCTIONS IDEALE DEMEURE pour recevoir plus d'informations

Remplissez le formulaire ci-dessous, vos informations sont transmises directement au constructeur qui vous contactera par email ou par téléphone afin de traiter votre demande. En savoir plus.

Voir tous nos programmes immobiliers neufs à Artannes-sur-Indre