Maison neuve, 50 m² - Apremont (85220)

159 900 €
Apremont (85220)

Proposée par LMP CONSTRUCTEUR – 2 pièces - 1 chambre - terrain 370 m²

LMP CONSTRUCTEUR
LMP CONSTRUCTEUR
  • Demande d'information
MAISON À CONSTRUIRE : ceci est une annonce d'une maison neuve à construire.
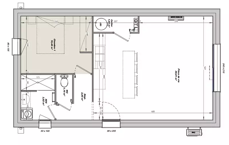
VENTE d'une maison de 2 pièces (50 m²) à Apremont
Idéalement située - Maison neuve 2 pièces à vendre à Apremont (85220) avec une surface de 50 m² et de 370 m² de terrain. Son intérieur comporte une chambre, une cuisine et une salle de bains.
À proximité : École Primaire Privée Sainte Anne, tennis, boulangerie, commerce et épicerie. Océan Atlantique à 18 km. La Roche-sur-Yon à 27 km.
Cette maison de 2 pièces est proposée à l'achat pour 159 900 €.
Contactez notre agence (RISSELIN Nicolas : 06-80-33-03-82) pour plus d'informations sur la maison ou sur les démarches à suivre.
Référence : NR2395312_1
Terrain proposé par un partenaire foncier selon disponibilités et autorisation de publicité au prix de 56 000 €. Hors droit d'enregistrement et frais de notaire. Terrain + Maison proposés au prix de 103 900 € (Hors branchements et raccordements, papiers peints, peintures, revêtement de sol dans les chambres. Tarif modifiable sans préavis). Etiquette énergie : A. Différents modèles disponibles pour ce terrain. Assurances et garanties du constructeur (RC professionnelle, décennale, dommage ouvrage, garantie de remboursement de l'acompte, livraison à prix et délai convenu) : https://www.lmp-constructeur.com/mentions-legales/.

Les informations sur les risques auxquels ce bien est exposé sont disponibles sur le site Géorisques : www.georisques.gouv.fr


Prix
  • Prix total : 159 900 €
  • Prix du modèle de maison : 103 900 €
  • Prix du terrain : 56 000 €

Terrain
  • Surface : 370 m²

Maison
  • Surface : 50 m²
  • Pièces : 2
  • Chambre : 1

  • Être rappelé par un conseiller
  • Demander plus d’infos
  • Demande d'information
Apremont (85220)

Programmes à proximité

Le Bocage
Le Bocage
Le Fenouiller (85800)

Appartements de 1 à 4 pièces
Livraison 4ème trimestre 2027

PASSAGE HORTENSE
PASSAGE HORTENSE
Challans (85300)

Appartements de 3 à 4 pièces
Livraison 3ème trimestre 2026

La Belle Epoque
La Belle Epoque
Challans (85300)

Appartements de 2 à 4 pièces
Livraison 3ème trimestre 2027

Aulnéa
Aulnéa
Challans (85300)

Appartements de 2 à 4 pièces
Livraison 2ème trimestre 2028

Villa Pauline
Villa Pauline
Challans (85300)

Appartements de 3 à 4 pièces
Livraison 2ème trimestre 2026

Les Jardins Bois Soleil
Les Jardins Bois Soleil
Challans (85300)

Appartements de 1 à 3 pièces
Livraison 4ème trimestre 2027

Contacter LMP CONSTRUCTEUR pour recevoir plus d'informations

Remplissez le formulaire ci-dessous, vos informations sont transmises directement au constructeur qui vous contactera par email ou par téléphone afin de traiter votre demande. En savoir plus.

Voir tous nos programmes immobiliers neufs à Apremont