Maison neuve, 94 m² - Amillis (77120)
460 000 €
Amillis (77120)
Proposée par MAISONS FRANCE CONFORT – 4 pièces - 3 chambres - terrain 300 m²
|
|
| MAISONS FRANCE CONFORT |
| (2 avis) |
- Demande d'information
- Prendre rendez-vous
MAISON À CONSTRUIRE : ceci est une annonce d'une maison neuve à construire.
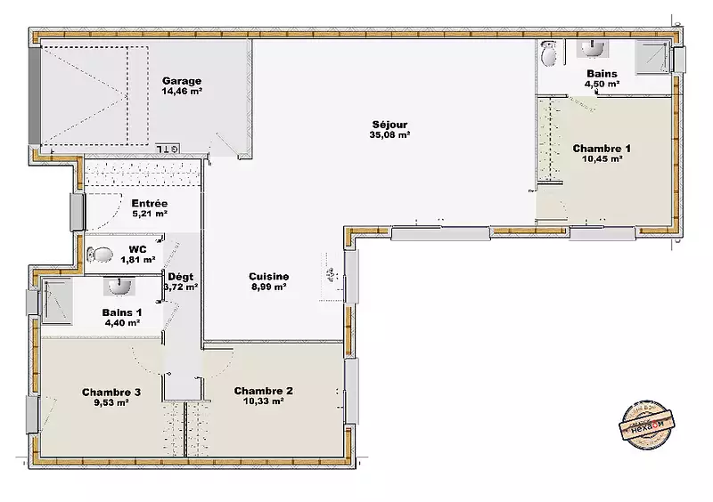
VENTE : maison de 4 pièces (94 m²) à Amillis
Paris à 1 h (Transilien P, Coulommiers) - À Amillis (77120), maison neuve en vente de 4 pièces, 94 m² sur 300 m² de terrain. Elle dispose de trois chambres, d'une cuisine et de deux salles de bains.
À dix minutes : gare (Coulommiers), écoles. Meaux à 30 km.
Cette maison de 4 pièces est à vendre pour la somme de 460 000 €.
. Concrétisez vos projets immobiliers avec Maisons France Confort Magny-le-Hongre.
Annonce proposée par un Agent Commercial Partenaire.
Référence : TM2317586_23
Terrain proposé par un partenaire foncier selon disponibilités et autorisation de publicité au prix de 70 000 €. Hors droit d'enregistrement et frais de notaire. Maison proposée, avec un contrat de construction de maison individuelle, dans le cadre de la loi du 19/12/1990, au prix de 390 000 € (Hors branchements et raccordements, papiers peints, peintures, revêtement de sol dans les chambres, qui sont chiffrés dans les travaux qui restent à charge du client. Tarif modifiable sans préavis). Étiquette énergie : A. Différents modèles disponibles pour ce terrain. Assurances et garanties du constructeur comprises (RC professionnelle, décennale, dommage ouvrage).
Les informations sur les risques auxquels ce bien est exposé sont disponibles sur le site Géorisques : www.georisques.gouv.fr
Paris à 1 h (Transilien P, Coulommiers) - À Amillis (77120), maison neuve en vente de 4 pièces, 94 m² sur 300 m² de terrain. Elle dispose de trois chambres, d'une cuisine et de deux salles de bains.
À dix minutes : gare (Coulommiers), écoles. Meaux à 30 km.
Cette maison de 4 pièces est à vendre pour la somme de 460 000 €.
. Concrétisez vos projets immobiliers avec Maisons France Confort Magny-le-Hongre.
Annonce proposée par un Agent Commercial Partenaire.
Référence : TM2317586_23
Terrain proposé par un partenaire foncier selon disponibilités et autorisation de publicité au prix de 70 000 €. Hors droit d'enregistrement et frais de notaire. Maison proposée, avec un contrat de construction de maison individuelle, dans le cadre de la loi du 19/12/1990, au prix de 390 000 € (Hors branchements et raccordements, papiers peints, peintures, revêtement de sol dans les chambres, qui sont chiffrés dans les travaux qui restent à charge du client. Tarif modifiable sans préavis). Étiquette énergie : A. Différents modèles disponibles pour ce terrain. Assurances et garanties du constructeur comprises (RC professionnelle, décennale, dommage ouvrage).
Les informations sur les risques auxquels ce bien est exposé sont disponibles sur le site Géorisques : www.georisques.gouv.fr
- Prix
-
- Prix total : 460 000 €
- Prix du modèle de maison : 390 000 €
- Prix du terrain : 70 000 €
- Terrain
-
- Surface : 300 m²
- Maison
-
- Surface : 94 m²
- Pièces : 4
- Chambres : 3
- Garage : 1
- Être rappelé par un conseiller
- Demander plus d’infos
- Demande d'information
Amillis (77120)
Maisons à proximité
Maison neuve, 89 m²
Amillis (77120)
Amillis (77120)
Maison de 5 pièces
Maison neuve, 122 m²
Amillis (77120)
Amillis (77120)
Maison de 6 pièces
Maison neuve, 154 m²
Amillis (77120)
Amillis (77120)
Maison de 5 pièces
Maison neuve, 125 m²
Amillis (77120)
Amillis (77120)
Maison de 6 pièces
Maison neuve, 107 m²
Amillis (77120)
Amillis (77120)
Maison de 5 pièces
Maison neuve, 150 m²
Amillis (77120)
Amillis (77120)
Maison de 7 pièces
Programmes à proximité
Villa Montesquiou
Coulommiers (77120)
Coulommiers (77120)
Appartements de 2 à 4 pièces
Contacter MAISONS FRANCE CONFORT pour recevoir plus d'informations
Remplissez le formulaire ci-dessous, vos informations sont transmises directement au constructeur qui vous contactera par email ou par téléphone afin de traiter votre demande. En savoir plus.