Maison neuve, 107 m² - Amillis (77120)
281 902 €
Amillis (77120)
Proposée par BABEAU SEGUIN AGENCE DE COULOMMIERS – SEINE ET MAR – 5 pièces - 4 chambres - terrain 1 909 m²
|
|
| Babeau Seguin Agence de Coulommiers – Seine et Mar |
- Demande d'information
- Prendre rendez-vous
MAISON À CONSTRUIRE : ceci est une annonce d'une maison neuve à construire.
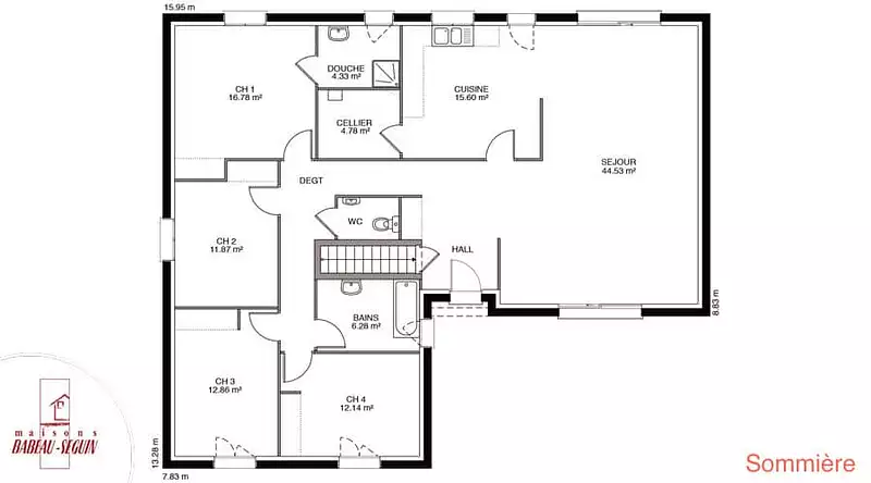
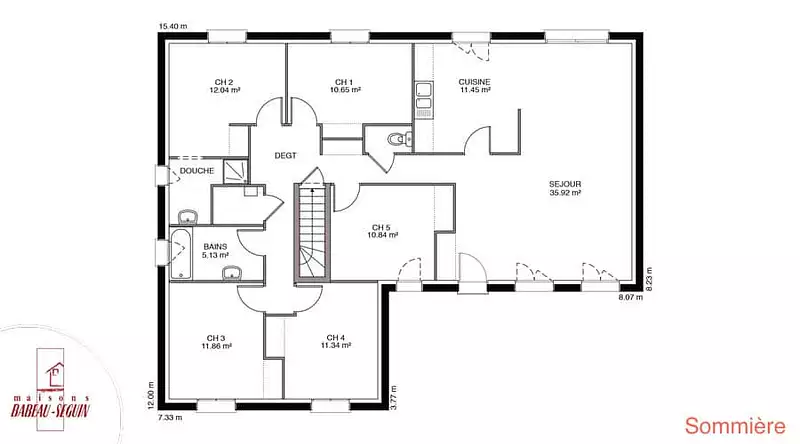
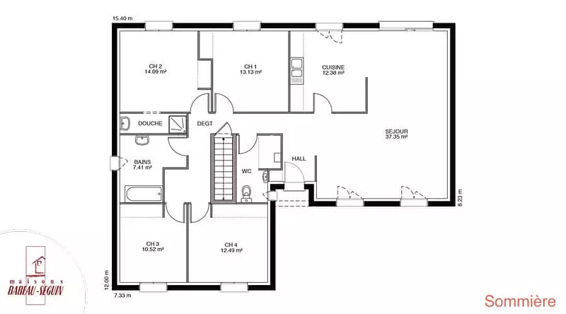
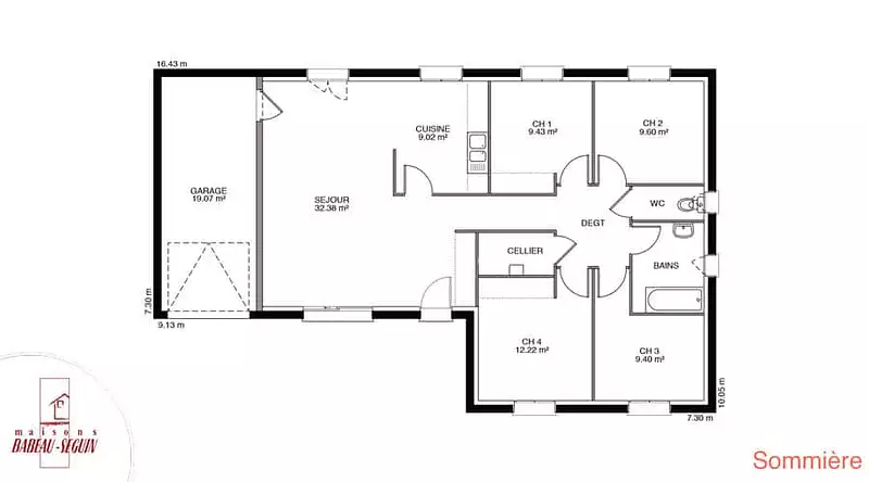
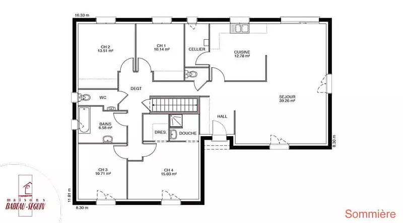
Sur ce terrain, nous vous proposons cette maison neuve, la Sommière, conçue par Babeau-Seguin, constructeur offrant le meilleur rapport qualité/prix du marché. Avec une surface de 107 m², cette maison moderne en L se distingue par son design élégant et ses nombreuses options de personnalisation.
La Sommière dispose de 4 chambres spacieuses et de 4 pièces, offrant un espace de vie confortable et fonctionnel pour toute la famille. Vous avez la possibilité de choisir entre un toit à 2 pans ou à 4 pans, selon vos préférences esthétiques et architecturales. De plus, cette maison peut être équipée d'un garage ou d'un sous-sol, selon vos besoins spécifiques.
Cette maison neuve est basse consommation et conforme à la RE2020, garantissant une performance énergétique optimale et des économies sur vos factures d'énergie. La Sommière est disponible en plus de 10 versions, allant d'une surface de 78 m² à 148 m², ce qui en fait la maison plain-pied la plus déclinée de toute notre gamme.
Avec ou sans garage intégré, avec ou sans galerie, la Sommière s’adapte parfaitement aux besoins et aux attentes de chacun. Nous lui décernons sans hésitation le prix de la maison sur mesure !
Ne manquez pas cette opportunité unique de faire construire une maison qui répondra à toutes vos attentes et vous offrira un cadre de vie exceptionnel. Contactez-nous dès maintenant pour plus d'informations et pour découvrir toutes les options disponibles pour personnaliser votre future maison Sommière.
Référence : 92326
Les informations sur les risques auxquels ce bien est exposé sont disponibles sur le site Géorisques : www.georisques.gouv.fr
La Sommière dispose de 4 chambres spacieuses et de 4 pièces, offrant un espace de vie confortable et fonctionnel pour toute la famille. Vous avez la possibilité de choisir entre un toit à 2 pans ou à 4 pans, selon vos préférences esthétiques et architecturales. De plus, cette maison peut être équipée d'un garage ou d'un sous-sol, selon vos besoins spécifiques.
Cette maison neuve est basse consommation et conforme à la RE2020, garantissant une performance énergétique optimale et des économies sur vos factures d'énergie. La Sommière est disponible en plus de 10 versions, allant d'une surface de 78 m² à 148 m², ce qui en fait la maison plain-pied la plus déclinée de toute notre gamme.
Avec ou sans garage intégré, avec ou sans galerie, la Sommière s’adapte parfaitement aux besoins et aux attentes de chacun. Nous lui décernons sans hésitation le prix de la maison sur mesure !
Ne manquez pas cette opportunité unique de faire construire une maison qui répondra à toutes vos attentes et vous offrira un cadre de vie exceptionnel. Contactez-nous dès maintenant pour plus d'informations et pour découvrir toutes les options disponibles pour personnaliser votre future maison Sommière.
Référence : 92326
Les informations sur les risques auxquels ce bien est exposé sont disponibles sur le site Géorisques : www.georisques.gouv.fr
- Prix
-
- Prix total : 281 902 €
- Prix du modèle de maison : 196 902 €
- Prix du terrain : 85 000 €
- Terrain
-
- Surface : 1 909 m²
- Maison
-
- Surface : 107 m²
- Pièces : 5
- Chambres : 4
- Être rappelé par un conseiller
- Demander plus d’infos
- Demande d'information
Amillis (77120)
Maisons à proximité
Maison neuve, 89 m²
Amillis (77120)
Amillis (77120)
Maison de 5 pièces
Maison neuve, 122 m²
Amillis (77120)
Amillis (77120)
Maison de 6 pièces
Maison neuve, 154 m²
Amillis (77120)
Amillis (77120)
Maison de 5 pièces
Maison neuve, 125 m²
Amillis (77120)
Amillis (77120)
Maison de 6 pièces
Maison neuve, 150 m²
Amillis (77120)
Amillis (77120)
Maison de 7 pièces
Maison neuve, 90 m²
Amillis (77120)
Amillis (77120)
Maison de 5 pièces
Programmes à proximité
Villa Montesquiou
Coulommiers (77120)
Coulommiers (77120)
Appartements de 2 à 4 pièces
Le Hameau des Prés
Fontenay-Trésigny (77610)
Fontenay-Trésigny (77610)
Appartements de 2 à 4 pièces
Livraison 4ème trimestre 2028
LIAISON VERTE
Nangis (77370)
Nangis (77370)
Appartements de 2 à 4 pièces
Livraison 2ème trimestre 2028
Contacter BABEAU SEGUIN AGENCE DE COULOMMIERS – SEINE ET MAR pour recevoir plus d'informations
Remplissez le formulaire ci-dessous, vos informations sont transmises directement au constructeur qui vous contactera par email ou par téléphone afin de traiter votre demande. En savoir plus.