Maison neuve, 73 m² - Ville-sur-Ancre (80300)

155 732 €
Ville-sur-Ancre (80300)

Proposée par BABEAU SEGUIN AGENCE D’AMIENS (80000) – SOMME – 5 pièces - 4 chambres - terrain 524 m²

Babeau Seguin Agence d’Amiens (80000) – Somme
Babeau Seguin Agence d’Amiens (80000) – Somme
  • Demande d'information
MAISON À CONSTRUIRE : ceci est une annonce d'une maison neuve à construire.
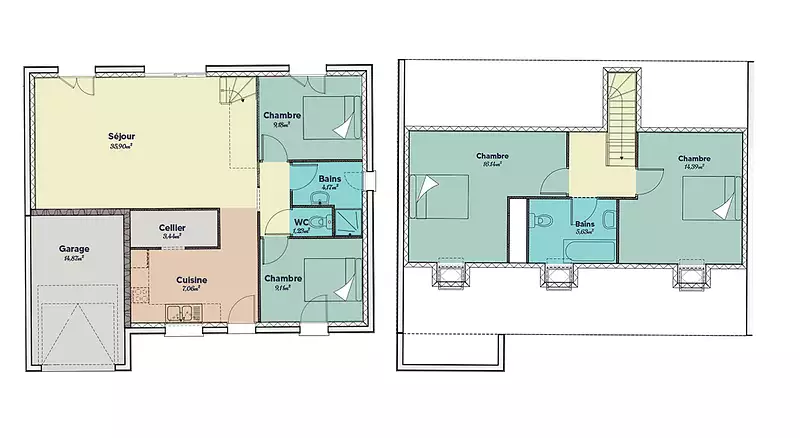
Sur ce terrain, nous vous proposons cette maison neuve : la Focus EVO, un modèle unique de 110 m² conçu par Babeau-Seguin, constructeur offrant le meilleur rapport qualité/prix du marché. Cette maison basse consommation est conforme à la norme RE2020, garantissant des performances énergétiques exceptionnelles.
La Focus EVO se distingue par son concept évolutif, alliant une maison neuve prête à vivre et une maison prête à finir. Livrée avec 73 m² habitables, elle est conçue pour évoluer avec vos besoins futurs. Grâce à ses combles aménageables, vous pouvez facilement augmenter votre surface habitable à 110 m², ajoutant ainsi deux chambres supplémentaires et une salle de bain, pour un total de 4 chambres et 2 salles de bains.
Les caractéristiques principales de cette maison incluent un garage intégré, un cellier, et des combles aménageables. Les options les plus demandées par nos clients, telles que la version Investisseur et les prises USB murales, sont également disponibles.
La Focus EVO est idéale pour tous ceux qui recherchent une maison complète à un prix compétitif. Elle comprend une grande pièce de jour traversante, 4 chambres, une salle de bain, et un garage de 15 m². Que vous soyez un jeune couple, un célibataire ou une famille en pleine expansion, cette maison saura s'adapter à vos besoins et à vos envies.
Ne manquez pas cette occasion unique de devenir propriétaire d'une maison évolutive, économe en énergie et conforme aux dernières normes environnementales. Contactez-nous dès aujourd'hui pour plus d'informations et pour planifier une visite.
Référence : 90912

Les informations sur les risques auxquels ce bien est exposé sont disponibles sur le site Géorisques : www.georisques.gouv.fr


Prix
  • Prix total : 155 732 €
  • Prix du modèle de maison : 124 732 €
  • Prix du terrain : 31 000 €

Terrain
  • Surface : 524 m²

Maison
  • Surface : 73 m²
  • Pièces : 5
  • Chambres : 4

  • Être rappelé par un conseiller
  • Demander plus d’infos
  • Demande d'information
Ville-sur-Ancre (80300)

Programmes à proximité

LA PLUME DE SAMARA
LA PLUME DE SAMARA
Amiens (80000)

Appartements de 2 à 3 pièces
Livraison 1er trimestre 2025

FLOW
FLOW
Amiens (80000)

Appartements de 1 à 5 pièces
Livraison 4ème trimestre 2027

Prochainement à Amiens
Prochainement à Amiens
Amiens (80000)

Appartements de 1 à 5 pièces

L'APARTÉ
L'APARTÉ
Amiens (80000)

Appartements de 2 à 4 pièces
Livraison 3ème trimestre 2028

L'ARCHIPEL
L'ARCHIPEL
Amiens (80000)

Appartements de 3 à 4 pièces
Livraison 4ème trimestre 2025

Tempo Nature
Tempo Nature
Amiens (80000)

Appartements de 4 pièces et maisons de 4 pièces
Livraison 1er trimestre 2027

Contacter BABEAU SEGUIN AGENCE D’AMIENS (80000) – SOMME pour recevoir plus d'informations

Remplissez le formulaire ci-dessous, vos informations sont transmises directement au constructeur qui vous contactera par email ou par téléphone afin de traiter votre demande. En savoir plus.

Voir tous nos programmes immobiliers neufs à Ville-sur-Ancre