Maison neuve, 100 m² - Méaulte (80300)
206 672 €
Méaulte (80300)
Proposée par BABEAU SEGUIN AGENCE D’AMIENS (80000) – SOMME – 5 pièces - 4 chambres - terrain 1 100 m²
|
|
| Babeau Seguin Agence d’Amiens (80000) – Somme |
- Demande d'information
- Prendre rendez-vous
MAISON À CONSTRUIRE : ceci est une annonce d'une maison neuve à construire.
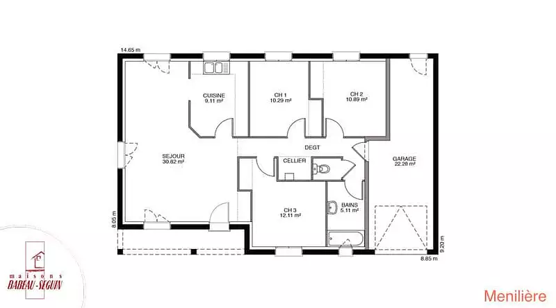
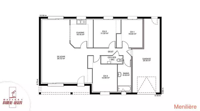
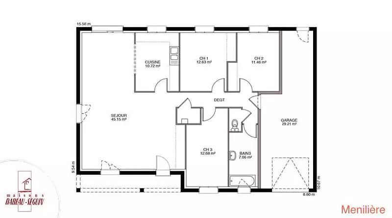
Sur ce terrain, nous vous proposons cette maison neuve, le modèle Ménilière, une maison plain-pied moderne qui intègre de base un garage et une longue galerie sur la face avant. Avec une surface de 100 m², cette maison dispose de 4 chambres et de 4 pièces, offrant ainsi un espace de vie confortable et fonctionnel pour toute la famille.
Véritable ""tout-en-un"" de la maison individuelle, ce modèle est idéal pour votre projet de construction sur-mesure. La Ménilière est disponible avec un toit à 2 pans ou 4 pans, selon vos préférences esthétiques. Le garage intégré et la galerie avant ajoutent une touche pratique et élégante à cette maison.
Les options les plus demandées par nos clients, telles que les menuiseries en aluminium et le sous-sol, sont également disponibles pour personnaliser davantage votre future maison. De plus, cette maison neuve est basse consommation et conforme à la réglementation environnementale RE2020, garantissant ainsi des performances énergétiques optimales et un impact environnemental réduit.
Le constructeur Babeau-Seguin, reconnu pour offrir le meilleur rapport qualité/prix du marché, vous accompagne dans la réalisation de votre projet immobilier. Avec un prix serré et une personnalisation facile, il n'est pas étonnant que la Ménilière soit dans le top 5 des ventes de Babeau-Seguin.
Ne manquez pas cette opportunité unique de devenir propriétaire d'une maison moderne, économe en énergie et parfaitement adaptée à vos besoins. Contactez-nous dès maintenant pour plus d'informations et pour planifier une visite de ce modèle exceptionnel.
Référence : 90807
Les informations sur les risques auxquels ce bien est exposé sont disponibles sur le site Géorisques : www.georisques.gouv.fr
Véritable ""tout-en-un"" de la maison individuelle, ce modèle est idéal pour votre projet de construction sur-mesure. La Ménilière est disponible avec un toit à 2 pans ou 4 pans, selon vos préférences esthétiques. Le garage intégré et la galerie avant ajoutent une touche pratique et élégante à cette maison.
Les options les plus demandées par nos clients, telles que les menuiseries en aluminium et le sous-sol, sont également disponibles pour personnaliser davantage votre future maison. De plus, cette maison neuve est basse consommation et conforme à la réglementation environnementale RE2020, garantissant ainsi des performances énergétiques optimales et un impact environnemental réduit.
Le constructeur Babeau-Seguin, reconnu pour offrir le meilleur rapport qualité/prix du marché, vous accompagne dans la réalisation de votre projet immobilier. Avec un prix serré et une personnalisation facile, il n'est pas étonnant que la Ménilière soit dans le top 5 des ventes de Babeau-Seguin.
Ne manquez pas cette opportunité unique de devenir propriétaire d'une maison moderne, économe en énergie et parfaitement adaptée à vos besoins. Contactez-nous dès maintenant pour plus d'informations et pour planifier une visite de ce modèle exceptionnel.
Référence : 90807
Les informations sur les risques auxquels ce bien est exposé sont disponibles sur le site Géorisques : www.georisques.gouv.fr
- Prix
-
- Prix total : 206 672 €
- Prix du modèle de maison : 151 672 €
- Prix du terrain : 55 000 €
- Terrain
-
- Surface : 1 100 m²
- Maison
-
- Surface : 100 m²
- Pièces : 5
- Chambres : 4
- Être rappelé par un conseiller
- Demander plus d’infos
- Demande d'information
Méaulte (80300)
Maisons à proximité
Maison neuve, 73 m²
Albert (80300)
Albert (80300)
Maison de 5 pièces
Maison neuve, 126,97 m²
Albert (80300)
Albert (80300)
Maison de 5 pièces
Maison neuve, 102,37 m²
Albert (80300)
Albert (80300)
Maison de 4 pièces
Maison neuve, 73 m²
Ville-sur-Ancre (80300)
Ville-sur-Ancre (80300)
Maison de 5 pièces
Maison neuve, 73 m²
Ville-sur-Ancre (80300)
Ville-sur-Ancre (80300)
Maison de 5 pièces
Maison neuve, 100 m²
Senlis-le-Sec (80300)
Senlis-le-Sec (80300)
Maison de 3 pièces
Programmes à proximité
Contacter BABEAU SEGUIN AGENCE D’AMIENS (80000) – SOMME pour recevoir plus d'informations
Remplissez le formulaire ci-dessous, vos informations sont transmises directement au constructeur qui vous contactera par email ou par téléphone afin de traiter votre demande. En savoir plus.