Maison neuve, 130 m² - Ventabren (13122)

650 000 €
Ventabren (13122)

Proposée par MAISONS FRANCE CONFORT – 6 pièces - 4 chambres - terrain 1 050 m²

MAISONS FRANCE CONFORT
MAISONS FRANCE CONFORT
(97 avis)
  • Demande d'information
MAISON À CONSTRUIRE : ceci est une annonce d'une maison neuve à construire.
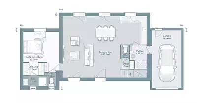
Votre agence Maisons France Confort Cabriès à Expobat Plan de Campagne est heureuse de vous présenter cette maison de 6 pièces de 130 m² et de 1 050 m² de terrain.
C'est une maison de 2 niveaux.
Son intérieur offre quatre chambres, une cuisine et trois salles de bains. Cette maison est neuve.
Il y a des écoles maternelles et élémentaires à moins de 10 minutes à pied et deux structures d'accueil pour les tout-petits. Niveau transports en commun, on trouve les gares Rognac et Aix-en-Provence TGV à moins de 10 minutes en voiture. Les autoroutes A7, A8 et A51 sont accessibles à moins de 10 km.
Ce Projet Terrain + Maison à vendre pour la somme de 650 000 €.
Prenez contact avec Jean Luc ASCIONE (Tel: O6-30-65-82-36/O4-42-02-85-99) pour tout renseignement sur cette maison.
Référence : JLA2342007_1
Terrain proposé par un partenaire foncier selon disponibilités et autorisation de publicité au prix de 378 000 €. Hors droit d'enregistrement et frais de notaire. Maison proposée, avec un contrat de construction de maison individuelle, dans le cadre de la loi du 19/12/1990, au prix de 272 000 € (Hors branchements et raccordements, papiers peints, peintures, revêtement de sol dans les chambres, qui sont chiffrés dans les travaux qui restent à charge du client. Tarif modifiable sans préavis). Étiquette énergie : A. Différents modèles disponibles pour ce terrain. Assurances et garanties du constructeur comprises (RC professionnelle, décennale, dommage ouvrage).

Les informations sur les risques auxquels ce bien est exposé sont disponibles sur le site Géorisques : www.georisques.gouv.fr


Prix
  • Prix total : 650 000 €
  • Prix du modèle de maison : 272 000 €
  • Prix du terrain : 378 000 €

Terrain
  • Surface : 1 050 m²

Maison
  • Surface : 130 m²
  • Pièces : 6
  • Chambres : 4
  • Garage : 1

  • Être rappelé par un conseiller
  • Demander plus d’infos
  • Demande d'information
Ventabren (13122)

Programmes à proximité

MOSAÏK
MOSAÏK
Aix-en-Provence (13090)

Appartement de 4 pièces
Livraison 4ème trimestre 2026

Domaine de l'Oratoire
Domaine de l'Oratoire
Aix-en-Provence (13090)

Appartements de 3 à 4 pièces et maisons de 4 à 5 pièces
Livraison 4ème trimestre 2026

102 Gambetta
102 Gambetta
Aix-en-Provence (13090)

Appartements de 3 à 5 pièces
Livraison 2ème trimestre 2026

88 Gambetta
88 Gambetta
Aix-en-Provence (13080)

Appartement de 6 pièces et maisons de 6 pièces
Livraison 2ème trimestre 2027

Signature - Célony
Signature - Célony
Aix-en-Provence (13090)

Appartement de 2 pièces
Livraison 2ème trimestre 2028

Les Boiseries du Parc
Les Boiseries du Parc
Vitrolles (13127)

Appartements de 2 à 4 pièces
Livraison 3ème trimestre 2027

Contacter MAISONS FRANCE CONFORT pour recevoir plus d'informations

Remplissez le formulaire ci-dessous, vos informations sont transmises directement au constructeur qui vous contactera par email ou par téléphone afin de traiter votre demande. En savoir plus.

Voir tous nos programmes immobiliers neufs à Ventabren