Maison neuve, 120 m² - Ventabren (13122)

791 000 €
Ventabren (13122)

Proposée par MAISONS FRANCE CONFORT – 6 pièces - 4 chambres - terrain 1 061 m²

MAISONS FRANCE CONFORT
MAISONS FRANCE CONFORT
(98 avis)
  • Demande d'information
MAISON À CONSTRUIRE : ceci est une annonce d'une maison neuve à construire.
🚀 Prêt à construire la maison de vos rêves ?
✨ MAISONS FRANCE CONFORT Cabriès et son partenaire foncier vous proposent une belle opportunité de construction sur la commune de Ventabren.✨
🌿Cette parcelle de 1060 m² offre un cadre verdoyant et authentique, sublimé par la présence de superbes oliviers qui lui confèrent tout son charme.
Elle profite d'un environnement privilégié et d'une proximité immédiate avec les commodités essentielles telles que les commerces, les écoles et les transports. Ce terrain est vendu entièrement viabilisé.
Vous profiterez d'un cadre de vie alliant tranquillité, sécurité et qualité de vie.
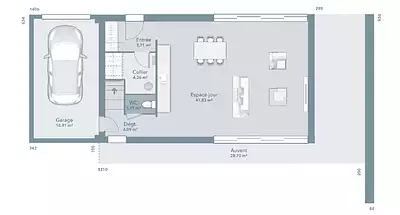
Et si votre projet prenait la forme d'une maison contemporaine et lumineuse, pensée pour le bien-être de la famille un grand séjour convivial baigné de lumière,3 chambres confortables pour chacun..
💰Exemple de ce projet : Terrain + Maison de 120 m² habitable à étage hors garage = 791 000 €
*(Hors frais et taxes)
Chaque détail peut être adapté selon vos envies : surfaces, agencement, finitions, style architectural... Votre maison, votre personnalité.
Faites confiance à nos équipes de professionnels pour concevoir un projet clé en main, personnalisé et harmonieux, du premier croquis à la remise des clés
Contactez nous dès aujourd'hui pour convenir d'un rendez-vous, visiter le terrain et échanger sur votre futur projet de construction.
📞 Virginia COSTA : O4 42 02 85 99/O6 26 23 24 73
Référence : VC2338681_3
Terrain proposé par un partenaire foncier selon disponibilités et autorisation de publicité au prix de 390 000 €. Hors droit d'enregistrement et frais de notaire. Terrain + Maison proposés au prix de 401 000 € (Hors branchements et raccordements, papiers peints, peintures, revêtement de sol dans les chambres. Tarif modifiable sans préavis). Etiquette énergie : A. Différents modèles disponibles pour ce terrain. Assurances et garanties du constructeur (RC professionnelle, décennale, dommage ouvrage, garantie de remboursement de l'acompte, livraison à prix et délai convenu) : https://www.maisons-france-confort.fr/mentions-legales/. HEXAOM Services est enregistré auprès de l'ORIAS en tant que Courtier en financement, Niveau 1, sous le numéro 14001345.

Les informations sur les risques auxquels ce bien est exposé sont disponibles sur le site Géorisques : www.georisques.gouv.fr


Prix
  • Prix total : 791 000 €
  • Prix du modèle de maison : 401 000 €
  • Prix du terrain : 390 000 €

Terrain
  • Surface : 1 061 m²

Maison
  • Surface : 120 m²
  • Pièces : 6
  • Chambres : 4

  • Être rappelé par un conseiller
  • Demander plus d’infos
  • Demande d'information
Ventabren (13122)

Maisons à proximité

Programmes à proximité

L'Écrin Azur
L'Écrin Azur
Eguilles (13510)

Appartements de 1 à 4 pièces
Livraison 2ème trimestre 2027

Domaine de l'Oratoire
Domaine de l'Oratoire
Aix-en-Provence (13090)

Appartements de 3 à 4 pièces et maisons de 4 à 5 pièces
Livraison 4ème trimestre 2026

Signature - Célony
Signature - Célony
Aix-en-Provence (13090)

Appartements de 2 à 4 pièces
Livraison 2ème trimestre 2028

88 Gambetta
88 Gambetta
Aix-en-Provence (13080)

Appartement de 6 pièces et maisons de 6 pièces
Livraison 2ème trimestre 2027

102 Gambetta
102 Gambetta
Aix-en-Provence (13090)

Appartements de 3 à 5 pièces
Livraison 2ème trimestre 2026

Roucas
Roucas
Vitrolles (13127)

Appartements de 2 à 4 pièces
Livraison 2ème trimestre 2028

Contacter MAISONS FRANCE CONFORT pour recevoir plus d'informations

Remplissez le formulaire ci-dessous, vos informations sont transmises directement au constructeur qui vous contactera par email ou par téléphone afin de traiter votre demande. En savoir plus.

Voir tous nos programmes immobiliers neufs à Ventabren