Maison neuve, 92 m² - Vallères (37190)

246 200 €
Vallères (37190)

Proposée par CONSTRUCTIONS IDEALE DEMEURE – 4 pièces - 3 chambres - terrain 488 m²

CONSTRUCTIONS IDEALE DEMEURE
CONSTRUCTIONS IDEALE DEMEURE
  • Demande d'information
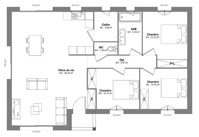
MAISON À CONSTRUIRE : ceci est une annonce d'une maison neuve à construire.
Cette magnifique maison à construire en L de 93m² offre un cadre de vie idéal. Sa pièce de vie spacieuse de plus de 46m² bénéficie d'une triple exposition, garantissant une luminosité optimale tout au long de la journée. Elle comprend également trois belles chambres, parfaites pour accueillir toute la famille. Un projet harmonieux alliant confort, espace et lumière naturelle.
Maison entièrement personnalisable.
Je reste disponible pour toutes demandes de renseignements, n'hésitez pas me contacter : Stéphane Digneton : O6.64.92.89.69.
Référence : SD2356725_2
Terrain proposé par un partenaire foncier selon disponibilités et autorisation de publicité au prix de 69 500 €. Hors droit d'enregistrement et frais de notaire. Terrain + Maison proposés au prix de 176 700 € (Hors branchements et raccordements, papiers peints, peintures, revêtement de sol dans les chambres. Tarif modifiable sans préavis). Etiquette énergie : A. Différents modèles disponibles pour ce terrain. Assurances et garanties du constructeur (RC professionnelle, décennale, dommage ouvrage, garantie de remboursement de l'acompte, livraison à prix et délai convenu) : https://www.constructions-ideale-demeure.fr/mentions-legales/.

Les informations sur les risques auxquels ce bien est exposé sont disponibles sur le site Géorisques : www.georisques.gouv.fr


Prix
  • Prix total : 246 200 €
  • Prix du modèle de maison : 176 700 €
  • Prix du terrain : 69 500 €

Terrain
  • Surface : 488 m²

Maison
  • Surface : 92 m²
  • Pièces : 4
  • Chambres : 3

  • Être rappelé par un conseiller
  • Demander plus d’infos
  • Demande d'information
Vallères (37190)

Programmes à proximité

Les Jardins de Musset
Les Jardins de Musset
Fondettes (37230)

Appartements de 2 à 5 pièces
Livraison 2ème trimestre 2026

Verdéa
Verdéa
Joué-lès-Tours (37300)

Appartements de 1 à 2 pièces
Livraison 2ème trimestre 2027

My Campus Jean Jaurès
My Campus Jean Jaurès
Joué-lès-Tours (37300)

Appartement de 1 pièce
Livraison 1er trimestre 2026

Coeur de Ville
Coeur de Ville
Joué-lès-Tours (37300)

Appartements de 2 à 5 pièces
Livraison 4ème trimestre 2026

APPARTEMENT TERRASSE/LIBERTE
APPARTEMENT TERRASSE/LIBERTE
La Riche (37520)

Appartement de 4 pièces
Livraison 3ème trimestre 2024

EMBLEM
EMBLEM
La Riche (37520)

Appartements de 3 à 5 pièces
Livraison 1er trimestre 2026

Contacter CONSTRUCTIONS IDEALE DEMEURE pour recevoir plus d'informations

Remplissez le formulaire ci-dessous, vos informations sont transmises directement au constructeur qui vous contactera par email ou par téléphone afin de traiter votre demande. En savoir plus.

Voir tous nos programmes immobiliers neufs à Vallères