Maison neuve, 100 m² - Toulouse (31100)

468 741 €
Toulouse (31100)

Proposée par MAISONS FRANCE CONFORT – 5 pièces - 3 chambres - terrain 670 m²

MAISONS FRANCE CONFORT
MAISONS FRANCE CONFORT
(169 avis)
  • Demande d'information
MAISON À CONSTRUIRE : ceci est une annonce d'une maison neuve à construire.
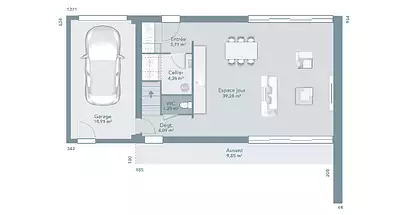
À découvrir à Toulouse (31100) : maison neuve 5 pièces en vente. 2 niveaux, surface de 100 m² sur 670 m² de terrain. Elle inclut trois chambres, une cuisine et trois salles de bains.
À dix minutes : gares, établissements scolaires, crèches, tennis, bassin de natation, commerces, boulangeries, supermarchés, boucheries-charcuteries et épiceries. Accès autoroutes et nationale N124 à 8 km.
Cette maison de 5 pièces est à vendre pour la somme de 468 741 €.
. Maisons France Confort Tournefeuille est là pour vous accompagner dans toutes vos démarches.
Annonce proposée par un Agent Commercial Partenaire.
Référence : CE2266647_1
Terrain proposé par un partenaire foncier selon disponibilités et autorisation de publicité au prix de 178 000 €. Hors droit d'enregistrement et frais de notaire. Maison proposée, avec un contrat de construction de maison individuelle, dans le cadre de la loi du 19/12/1990, au prix de 290 741 € (Hors branchements et raccordements, papiers peints, peintures, revêtement de sol dans les chambres, qui sont chiffrés dans les travaux qui restent à charge du client. Tarif modifiable sans préavis). Étiquette énergie : A. Différents modèles disponibles pour ce terrain. Assurances et garanties du constructeur comprises (RC professionnelle, décennale, dommage ouvrage).

Les informations sur les risques auxquels ce bien est exposé sont disponibles sur le site Géorisques : www.georisques.gouv.fr


Prix
  • Prix total : 468 741 €
  • Prix du modèle de maison : 290 741 €
  • Prix du terrain : 178 000 €

Terrain
  • Surface : 670 m²

Maison
  • Surface : 100 m²
  • Pièces : 5
  • Chambres : 3
  • Garage : 1

  • Être rappelé par un conseiller
  • Demander plus d’infos
  • Demande d'information
Toulouse (31100)

Maisons à proximité

Rose Place 2
Rose Place 2
Toulouse (31000)

Appartements de 2 à 4 pièces et maison
Livraison 4ème trimestre 2025

SUZAN GARDEN
SUZAN GARDEN
Toulouse (31400)

Appartements de 4 à 9 pièces et maisons de 5 pièces
Livraison 1er trimestre 2026

Programmes à proximité

Clos des Roses
Clos des Roses
Toulouse (31000)

Appartements de 2 à 4 pièces
Livraison 3ème trimestre 2026

Rose Place 2
Rose Place 2
Toulouse (31000)

Appartements de 2 à 4 pièces et maison
Livraison 4ème trimestre 2025

Nouvel'ere
Nouvel'ere
Toulouse (31200)

Appartements de 2 à 4 pièces
Livraison 4ème trimestre 2027

Horizon Boisé
Horizon Boisé
Toulouse (31300)

Appartements de 2 à 4 pièces

Impérial
Impérial
Toulouse (31500)

Appartements de 1 à 4 pièces
Livraison 4ème trimestre 2027

RÉVÉLATION
RÉVÉLATION
Toulouse (31400)

Appartements de 3 à 5 pièces
Livraison 2ème trimestre 2026

Contacter MAISONS FRANCE CONFORT pour recevoir plus d'informations

Remplissez le formulaire ci-dessous, vos informations sont transmises directement au constructeur qui vous contactera par email ou par téléphone afin de traiter votre demande. En savoir plus.

Voir tous nos programmes immobiliers neufs à Toulouse