Maison neuve, 118 m² - Soignolles-en-Brie (77111)

393 878 €
Soignolles-en-Brie (77111)

Proposée par BABEAU SEGUIN AGENCE DE MELUN -SEINE ET MARNE (77) – 5 pièces - 4 chambres - terrain 900 m²

Babeau Seguin Agence de Melun -Seine et Marne (77)
Babeau Seguin Agence de Melun -Seine et Marne (77)
  • Demande d'information
MAISON À CONSTRUIRE : ceci est une annonce d'une maison neuve à construire.
Sur ce terrain, nous vous proposons cette maison neuve : la Chacenière, un modèle exclusif de Babeau-Seguin, constructeur reconnu pour offrir le meilleur rapport qualité/prix du marché.
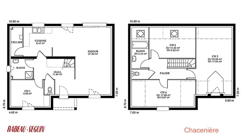
Cette maison en L, d'une surface de 118 m², est conçue pour répondre aux attentes des familles modernes. Elle dispose de 4 chambres spacieuses et de 4 pièces bien agencées, offrant un espace de vie confortable et fonctionnel.
La Chacenière se distingue par son étage composé d'un plancher avec une dalle étage en béton, garantissant robustesse et durabilité. La charpente traditionnelle et la lucarne maçonnée ajoutent une touche d'élégance et de caractère à l'ensemble.
L'intérieur de la maison est pensé pour maximiser le confort et la convivialité. La cuisine ouverte sur le séjour crée un espace de vie lumineux et accueillant, idéal pour les moments en famille ou entre amis.
Le garage intégré est une option très appréciée, offrant un espace de rangement supplémentaire et une protection pour votre véhicule.
En choisissant la Chacenière, vous optez pour une maison basse consommation, conforme à la réglementation environnementale RE2020. Cette maison neuve est conçue pour minimiser votre empreinte écologique tout en maximisant votre confort thermique et acoustique.
Ne manquez pas cette opportunité unique de faire construire votre maison familiale avec Babeau-Seguin, et profitez d'un habitat à la fois original, accueillant et respectueux de l'environnement. Contactez-nous dès aujourd'hui pour plus d'informations et pour personnaliser ce modèle selon vos envies.
Référence : 67989

Les informations sur les risques auxquels ce bien est exposé sont disponibles sur le site Géorisques : www.georisques.gouv.fr


Prix
  • Prix total : 393 878 €
  • Prix du modèle de maison : 228 878 €
  • Prix du terrain : 165 000 €

Terrain
  • Surface : 900 m²

Maison
  • Surface : 118 m²
  • Pièces : 5
  • Chambres : 4

  • Être rappelé par un conseiller
  • Demander plus d’infos
  • Demande d'information
Soignolles-en-Brie (77111)

Programmes à proximité

Les Jardins Jasmin
Les Jardins Jasmin
Tournan-en-Brie (77220)

Appartements de 2 à 4 pièces
Livraison 4ème trimestre 2026

Qadence
Qadence
Lieusaint (77127)

Appartements de 2 à 5 pièces

Naturéva
Naturéva
Lieusaint (77127)

Appartements de 3 à 5 pièces
Livraison 1er trimestre 2027

L'OREE DU PARC
L'OREE DU PARC
Lieusaint (77127)

Appartements de 4 pièces
Livraison 3ème trimestre 2026

Le Parc des Lumières
Le Parc des Lumières
Vert-Saint-Denis (77240)

Appartements de 2 à 4 pièces
Livraison 3ème trimestre 2026

Contacter BABEAU SEGUIN AGENCE DE MELUN -SEINE ET MARNE (77) pour recevoir plus d'informations

Remplissez le formulaire ci-dessous, vos informations sont transmises directement au constructeur qui vous contactera par email ou par téléphone afin de traiter votre demande. En savoir plus.

Voir tous nos programmes immobiliers neufs à Soignolles-en-Brie