Maison neuve, 140 m² - Savonnières (37510)

399 000 €
Savonnières (37510)

Proposée par MAISONS FRANCE CONFORT – 5 pièces - 4 chambres - terrain 735 m²

MAISONS FRANCE CONFORT
MAISONS FRANCE CONFORT
  • Demande d'information
MAISON À CONSTRUIRE : ceci est une annonce d'une maison neuve à construire.
Jolie maison tradi-moderne sur étage d'une superficie globale de 143m².
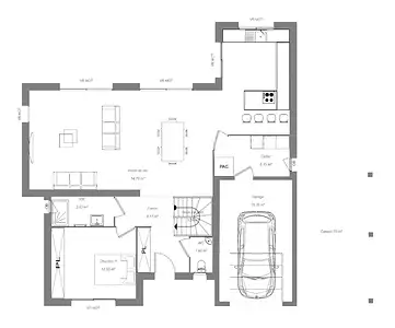
Au rez-de-chaussée, vous trouverez un garage spacieux ainsi qu'un carport en toit terrasse, une belle pièce de vie de 55m², deux grandes chambres, une salle d'eau commune, un cellier et un WC.
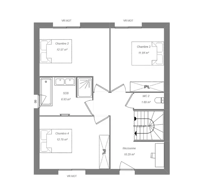
A l'étage, vous trouverez trois grandes chambres ainsi qu'une belle salle de bain et une mezzanine.
Concernant les prestations de la maison, vous retrouverez une pompe à chaleur couplée avec un plancher chauffant, des menuiseries de couleur en aluminium, un plancher béton, des ardoises artificielles, toiture 4 pans, carport en toit plat...
Référence : AG2289577_3
Terrain proposé par un partenaire foncier selon disponibilités et autorisation de publicité au prix de 130 000 €. Hors droit d'enregistrement et frais de notaire. Maison proposée, avec un contrat de construction de maison individuelle, dans le cadre de la loi du 19/12/1990, au prix de 269 000 € (Hors branchements et raccordements, papiers peints, peintures, revêtement de sol dans les chambres, qui sont chiffrés dans les travaux qui restent à charge du client. Tarif modifiable sans préavis). Étiquette énergie : A. Différents modèles disponibles pour ce terrain. Assurances et garanties du constructeur comprises (RC professionnelle, décennale, dommage ouvrage).

Les informations sur les risques auxquels ce bien est exposé sont disponibles sur le site Géorisques : www.georisques.gouv.fr


Prix
  • Prix total : 399 000 €
  • Prix du modèle de maison : 269 000 €
  • Prix du terrain : 130 000 €

Terrain
  • Surface : 735 m²

Maison
  • Surface : 140 m²
  • Pièces : 5
  • Chambres : 4
  • Garage : 1

  • Être rappelé par un conseiller
  • Demander plus d’infos
  • Demande d'information
Savonnières (37510)

Programmes à proximité

Les Jardins de Musset
Les Jardins de Musset
Fondettes (37230)

Appartements de 3 à 5 pièces
Livraison 2ème trimestre 2026

Verdéa
Verdéa
Joué-lès-Tours (37300)

Appartements de 1 à 2 pièces
Livraison 2ème trimestre 2027

Coeur de Ville
Coeur de Ville
Joué-lès-Tours (37300)

Appartements de 2 à 5 pièces
Livraison 4ème trimestre 2026

My Campus Jean Jaurès
My Campus Jean Jaurès
Joué-lès-Tours (37300)

Appartement de 1 pièce
Livraison 4ème trimestre 2025

APPARTEMENT TERRASSE/LIBERTE
APPARTEMENT TERRASSE/LIBERTE
La Riche (37520)

Appartement de 4 pièces
Livraison 3ème trimestre 2024

Les Dryades
Les Dryades
La Riche (37520)

Appartements de 3 à 4 pièces
Livraison 3ème trimestre 2025

Contacter MAISONS FRANCE CONFORT pour recevoir plus d'informations

Remplissez le formulaire ci-dessous, vos informations sont transmises directement au constructeur qui vous contactera par email ou par téléphone afin de traiter votre demande. En savoir plus.

Voir tous nos programmes immobiliers neufs à Savonnières